Let op: genoemde prijs betreft een “bieden vanaf prijs”.
Wonen in alle rust, midden in het groen met voorzieningen als een tennisbaan, midgetgolf en een verwarmd zwembad op loopafstand? Dat klinkt als vakantie! Deze moderne semi-bungalow heeft je veel te bieden zoals een vernieuwde keuken en badkamer, 3 slaapkamers en een zeer royale tuin. De woning maakt onderdeel uit van park ‘’De Boschberg’’ en mag permanent bewoond worden. Kortom: ben jij op zoek naar een rustige woonomgeving in een keurige woning? Zoek dan niet verder!
Omgeving:
Bungalowpark ‘’De Boschberg’’ is op loopafstand gelegen van het Veluwemeer, waar je kunt varen, watersporten en zwemmen. Attractiepark Walibi, het gezellige...
Let op: genoemde prijs betreft een “bieden vanaf prijs”.
Wonen in alle rust, midden in het groen met voorzieningen als een tennisbaan, midgetgolf en een verwarmd zwembad op loopafstand? Dat klinkt als vakantie! Deze moderne semi-bungalow heeft je veel te bieden zoals een vernieuwde keuken en badkamer, 3 slaapkamers en een zeer royale tuin. De woning maakt onderdeel uit van park ‘’De Boschberg’’ en mag permanent bewoond worden. Kortom: ben jij op zoek naar een rustige woonomgeving in een keurige woning? Zoek dan niet verder!
Omgeving:
Bungalowpark ‘’De Boschberg’’ is op loopafstand gelegen van het Veluwemeer, waar je kunt varen, watersporten en zwemmen. Attractiepark Walibi, het gezellige stadje Harderwijk en verschillende bossen zijn op korte afstand bereikbaar. Genoeg te beleven dus!
Indeling:
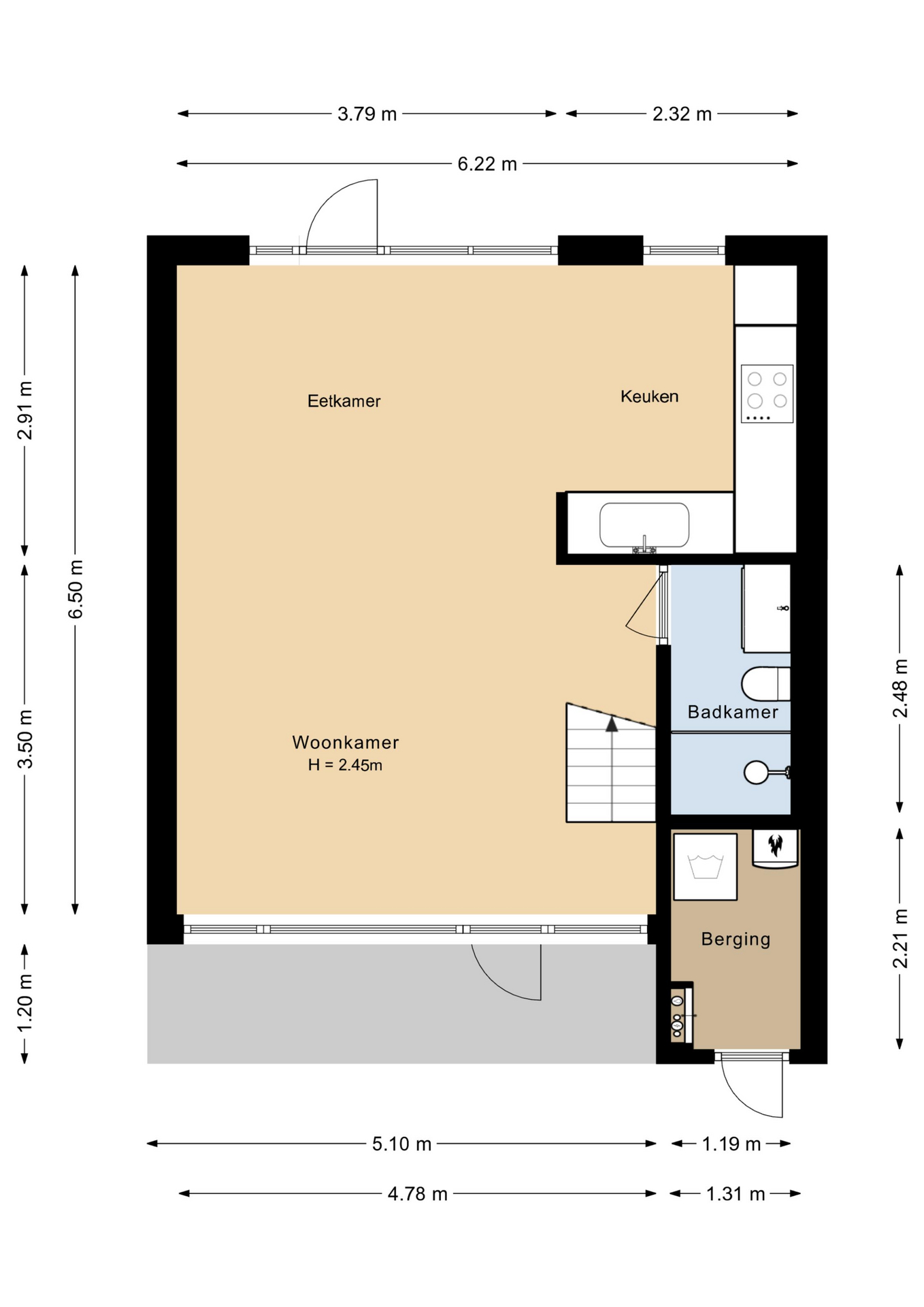
Begane grond:
Aankomst bij de woning in de zeer diepe voortuin. Binnenkomst in de woonkamer, waar meteen de open indeling en het vele daglicht door de grote raampartijen opvalt. Wat een heerlijke ruimte is dit! Je treft hier de trapopgang naar de verdieping, de toegang tot de badkamer, voldoende ruimte voor het plaatsen van verschillende meubels, airconditioning (kan ook verwarmen) en een laminaatvloer, die is doorgelegd tot in de eethoek en de keuken. Ter plaatse van de eethoek plaats je met gemak een grote eettafel, waar je familie en vrienden aan kunt ontvangen. De open, moderne keuken bevindt zich in een hoekopstelling en beschikt over inbouwapparatuur zoals een koel-vriescombinatie, een stoomoven, een luxe kraan, een vaatwasser, een 4-pits inductiekookplaat en een RVS-afzuigschouw. De tuin is bereikbaar middels een deur vanuit de eethoek. De vernieuwde, luxe badkamer is betegeld in antracietgekleurde en witte tegels en is ingericht met een inloopdouche met draingoot, een zwevend toilet, een designradiator, een wastafel met meubel en een spiegelkast. De van buitenaf bereikbare berging biedt opslagruimte voor extra spullen en hier tref je de meterkast, de elektrische boiler (50 liter) en de aansluitingen voor de was- en droogapparatuur.
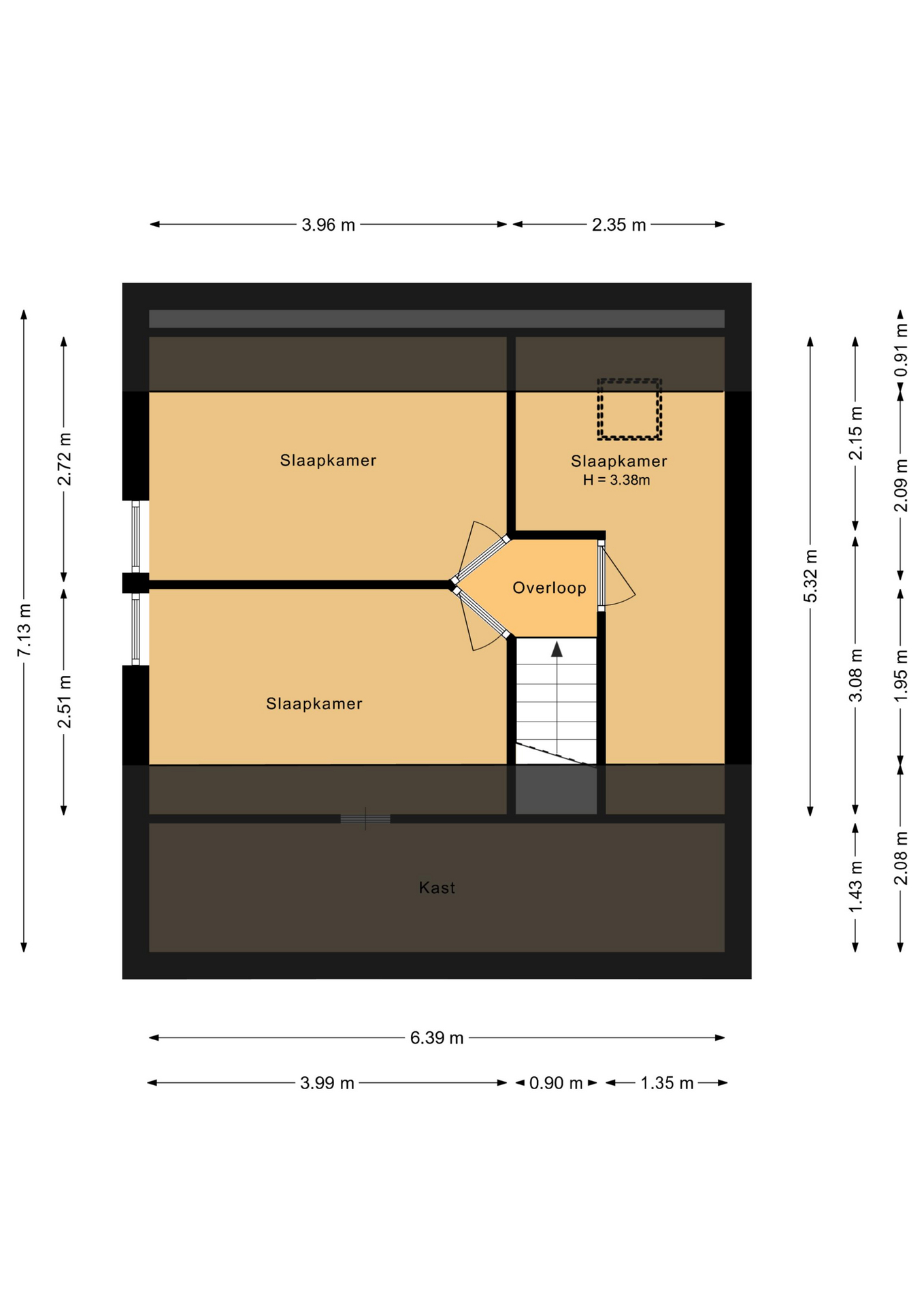
1e Verdieping:
Vanaf de overloop zijn de 3 slaapkamers bereikbaar, die allemaal beschikken over een laminaatvloer, veel daglicht en voldoende ruimte voor het plaatsen van een bed en een (kleding)kast. Liever wat spullen uit het zicht opbergen? Dan maak je gemakkelijk gebruik van de knieschotten bergruimte!
Tuin:
Deze tuin is toch om van te dromen? Hier kom je helemaal tot rust! De tuin biedt enorm veel privacy en is aangelegd met gras, beplanting en een terras aan de voorzijde van de woning. Achter de woning bevindt zich een houten berging, die voorzien is van elektra. Ideaal voor het stallen van de fiets en het opbergen van tuingereedschap!
Bijzonderheden:
* Deze woning heeft energielabel G
* Een gedeelte van de tuin hoort officieel niet bij het perceel, maar mag gebruikt worden indien deze wordt bijgehouden
* Parkbijdrage ca. € 2.100,- per jaar
* Aanvaarding in overleg
* Het financieren van deze woning met hypotheek is slechts beperkt mogelijk en vereist inbreng van eigen middelen, neem contact met ons op voor meer informatie