Let op: genoemde prijs betreft een “bieden vanaf prijs”.
Wonen in de natuur en iedere dag een vakantiegevoel ervaren? Maak dan kennis met deze sfeervolle en moderne semi-bungalow op park “De Boschberg”, waar voor deze specifieke woning permanente bewoning is toegestaan. De woning beschikt onder andere over een vernieuwde keuken met eiland, een zonnig gelegen en groene tuin, een bad- en slaapkamer op de begane grond, airconditioning en nog eens 2 slaapkamers op de verdieping. Het park biedt daarnaast fijne extra’s, zoals een verwarmd buitenzwembad, een tennisbaan en een midgetgolfbaan.
Omgeving
Bungalowpark ‘’De Boschberg’’ ligt op loopafstand van het Veluwemeer, waar je kunt varen,...
Let op: genoemde prijs betreft een “bieden vanaf prijs”.
Wonen in de natuur en iedere dag een vakantiegevoel ervaren? Maak dan kennis met deze sfeervolle en moderne semi-bungalow op park “De Boschberg”, waar voor deze specifieke woning permanente bewoning is toegestaan. De woning beschikt onder andere over een vernieuwde keuken met eiland, een zonnig gelegen en groene tuin, een bad- en slaapkamer op de begane grond, airconditioning en nog eens 2 slaapkamers op de verdieping. Het park biedt daarnaast fijne extra’s, zoals een verwarmd buitenzwembad, een tennisbaan en een midgetgolfbaan.
Omgeving
Bungalowpark ‘’De Boschberg’’ ligt op loopafstand van het Veluwemeer, waar je kunt varen, watersporten en zwemmen. Attractiepark Walibi, het gezellige Harderwijk en diverse bosgebieden bevinden zich op korte afstand. Er is hier dan ook altijd iets te beleven!
Indeling
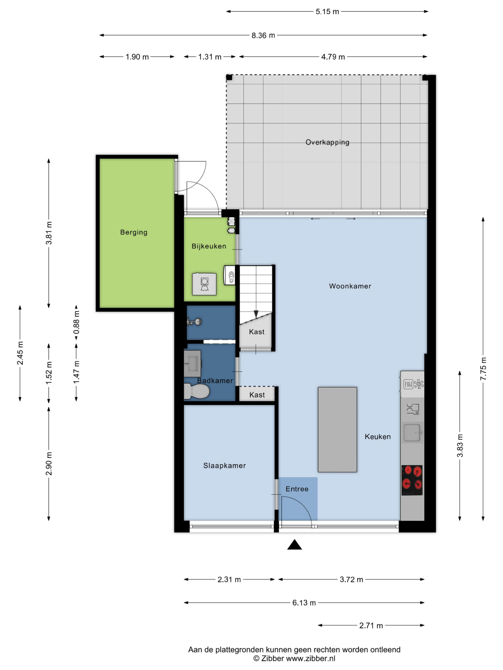
Begane grond
Je komt binnen in de keuken, waar direct de warme en sfeervolle uitstraling van de woning opvalt. De moderne keuken is uitgevoerd in een rechte opstelling en voorzien van inbouwapparatuur, waaronder een koelkast, een vaatwasser, een combimagnetron, een 4-pits inductiekookplaat en een zwarte recirculatie afzuigschouw. In het midden bevindt zich het eiland, dat doorloopt in een eettafel waar met gemak 4 stoelen geplaatst kunnen worden.
De tuingerichte woonkamer biedt via de grote kunststof schuifpui directe toegang tot de tuin en wanneer je op de bank zit je in verbinding blijft met de natuur. De ruimte is afgewerkt met een nette laminaatvloer en geeft toegang tot de bijkeuken, de bad- en slaapkamer en de trapopgang naar de verdieping. De trap is keurig weggewerkt achter een wand, waardoor een extra muur is gecreëerd. Ideaal voor het plaatsen van bijvoorbeeld de televisie! Daarnaast is er een praktische trapkast gerealiseerd voor extra bergruimte. De slaapkamer op de begane grond is tevens geschikt als werk- of hobbykamer. De badkamer is uitgevoerd in een rustige kleurstelling en ingericht met een staand toilet, wastafelmeubel en een inloopdouche. In de bijkeuken bevinden zich de cv-installatie, de groepenkast, de aansluitingen voor de was apparatuur en een deur naar de tuin.
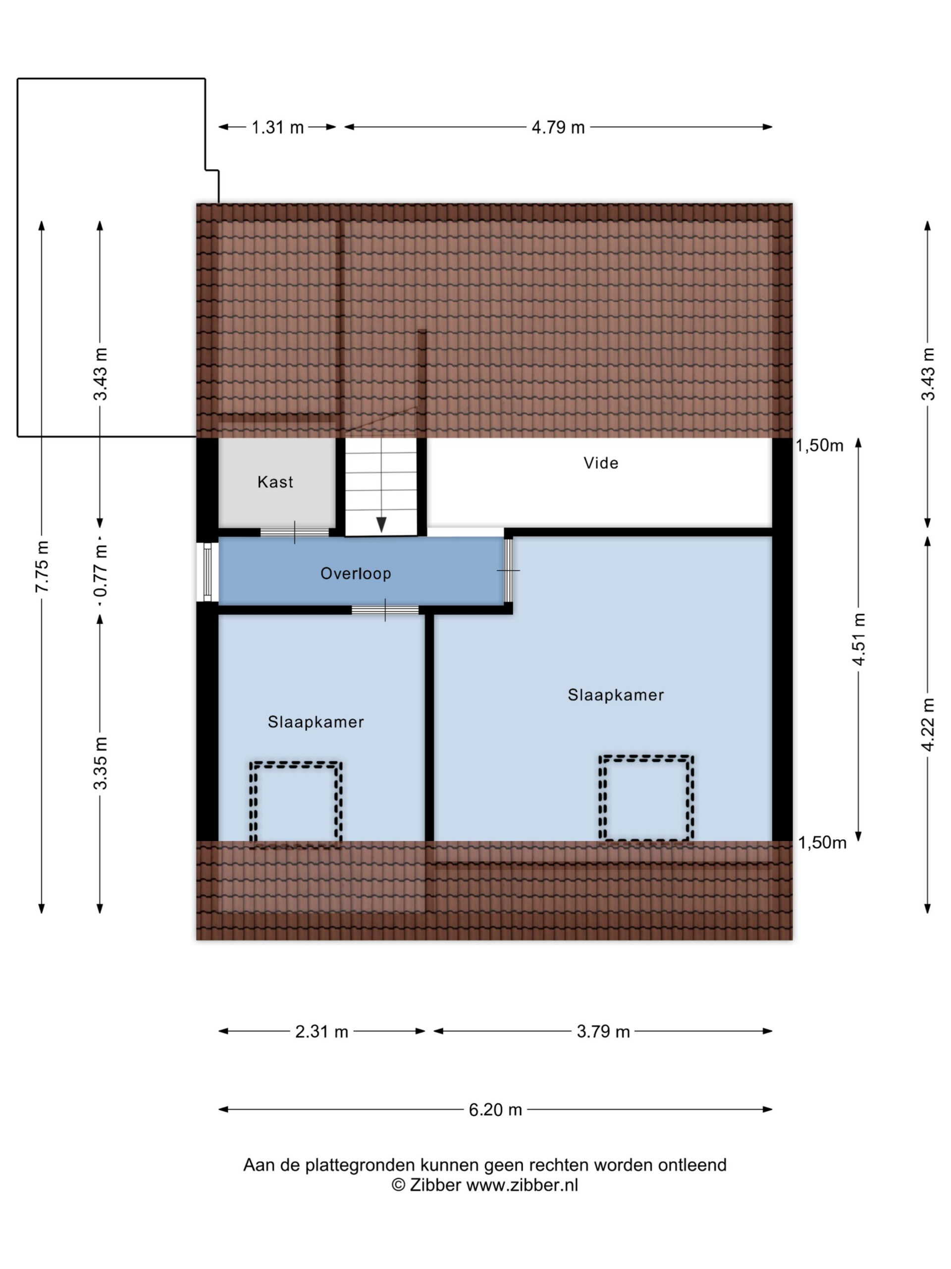
1e Verdieping
Vanaf de overloop heb je toegang tot 2 slaapkamers en een berging. Beide slaapkamers zijn van goed formaat en hebben een sfeervolle uitstraling dankzij de schuine daken en grote dakramen. De kamers zijn voorzien van een laminaatvloer en de grootste slaapkamer beschikt over airconditioning, die kan zowel koelen als verwarmen.
Tuin
De woning beschikt over zowel een royale voor- als achtertuin. De achtertuin is ruim opgezet en ligt op het zonnige zuiden, waardoor je hier al vroeg in het voorjaar heerlijk buiten kunt zitten en dankzij de recent geplaatste overkapping kan je hier tot in de late uurtjes heerlijk zitten. Op warme zomerdagen biedt juist de voortuin een fijne plek in de schaduw — plaats een gezellig zitje en geniet.
Aan de zijkant van de woning is een grote, geïsoleerde berging geplaatst, ideaal voor het opbergen van tuinkussens, fietsen of tuingereedschap.
Bijzonderheden:
* Deze woning heeft energielabel C
* Unieke woning midden in het groen met iedere dag een vakantiegevoel
* Alle meubilair zijn ter overname.
* Gemoderniseerd met onder andere een nieuwe keuken
* Voorzien van 3 slaapkamers
* Glasvezelaansluiting aanwezig
* Gedeeltelijk voorzien van kunststof kozijnen met HR++ beglazing
* Parkbijdrage ca. € 2.100,- per jaar
* Aanvaarding in overleg