Let op: genoemde prijs betreft een “bieden vanaf prijs”.
Ben je op zoek naar een woning waar je zo in kunt? Dan is deze verrassend ruime twee-onder-een-kapwoning precies wat je zoekt. Hier woon je in een rustige, kindvriendelijke buurt met alle voorzieningen op loopafstand. De woning is met zorg bewoond en biedt een zee aan ruimte, zowel binnen als buiten. Met 3 royale slaapkamers, een bijkeuken, binnendoor bereikbare garage én een zonnige tuin op het zuidoosten is dit een huis om jarenlang van te genieten.
Indeling:
Begane grond:
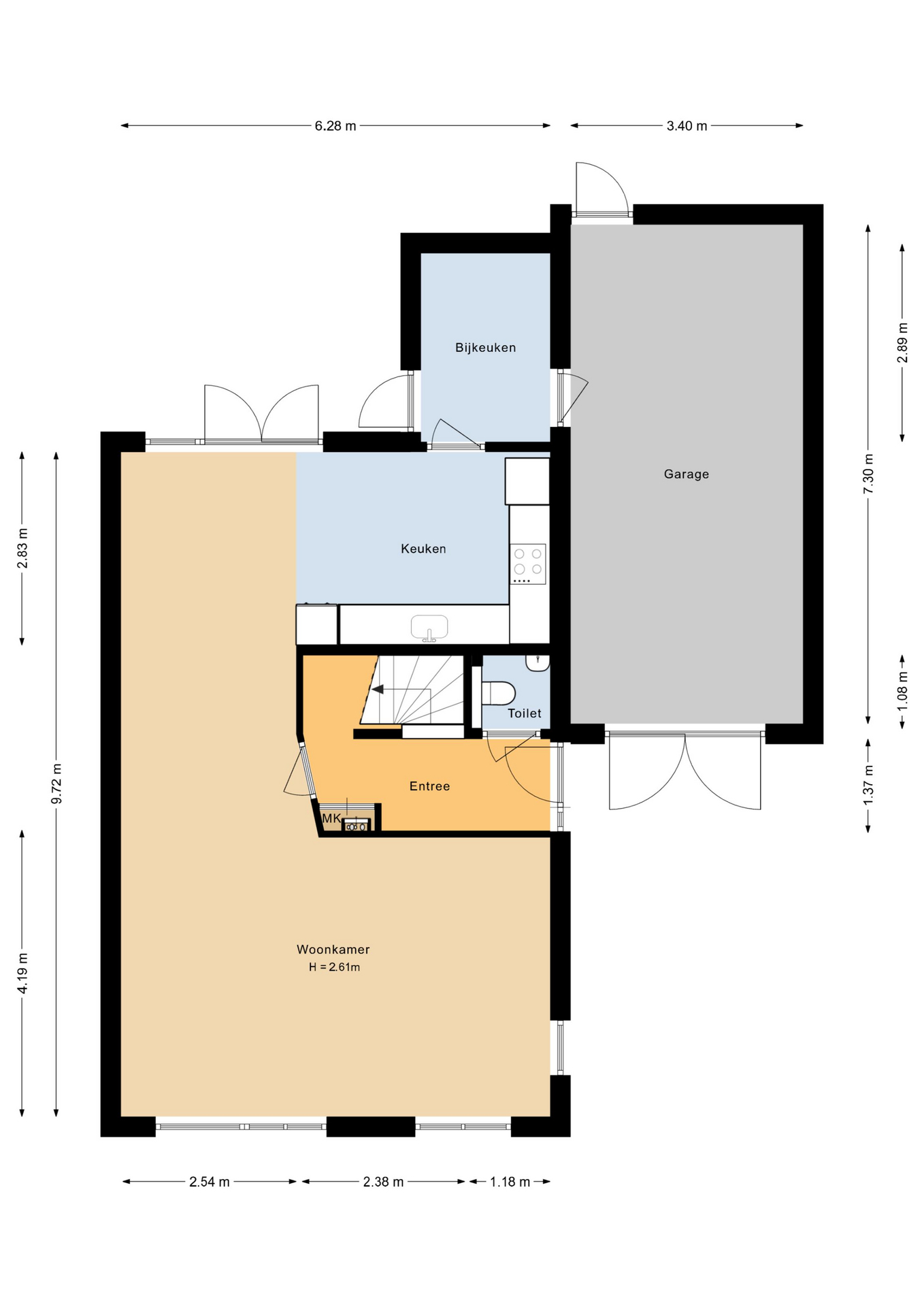
Via de overdekte entree stap je binnen in een ruime hal met meterkast en een modern afgewerkte toiletruimte voorzien van zwevend toilet, fonteintje, antraciet...
Let op: genoemde prijs betreft een “bieden vanaf prijs”.
Ben je op zoek naar een woning waar je zo in kunt? Dan is deze verrassend ruime twee-onder-een-kapwoning precies wat je zoekt. Hier woon je in een rustige, kindvriendelijke buurt met alle voorzieningen op loopafstand. De woning is met zorg bewoond en biedt een zee aan ruimte, zowel binnen als buiten. Met 3 royale slaapkamers, een bijkeuken, binnendoor bereikbare garage én een zonnige tuin op het zuidoosten is dit een huis om jarenlang van te genieten.
Indeling:
Begane grond:
Via de overdekte entree stap je binnen in een ruime hal met meterkast en een modern afgewerkte toiletruimte voorzien van zwevend toilet, fonteintje, antraciet vloertegels en witte wandbetegeling. De hardhouten trap geeft direct een solide indruk, dit is een degelijk gebouwde woning! De L-vormige woonkamer is royaal van opzet, met veel lichtinval en een laminaatvloer die doorloopt in de hal. De wanden zijn afgewerkt met spachtelputz en creëren een rustige basis. Aan de tuinzijde beschik je over dubbele tuindeuren en is er ruimte voor een royale eethoek en een extra ontbijttafel. Hier start je de dag goed met een kop koffie en het ochtendzonnetje. De open keuken in hoekopstelling is goed onderhouden en van alle gemakken voorzien: een koel-/vriescombinatie, vaatwasser, combimagnetron, inductiekookplaat, RVS afzuigschouw en veel werkruimte. Aangrenzend vind je de praktische bijkeuken met plavuizenvloer, volledig betegelde wanden en de aansluitingen voor wasmachine en droger. Vanuit hier bereik je de achtertuin en de aangebouwde garage. De garage beschikt over een keukenblok, een deur naar de tuin en dubbele deuren naar de oprit. Ideaal voor hobby’s én opslag.
1e Verdieping:
De overloop is licht en ruim en voorzien van een laminaatvloer en een leidingenkast. De drie slaapkamers zijn stuk voor stuk ruim bemeten en keurig afgewerkt met tapijt en behang. Dankzij het royale formaat is er in elke kamer moeiteloos plaats voor een tweepersoonsbed en een kledingkast. Bovendien zijn alle ramen voorzien van horren. Wel zo prettig in de zomermaanden! De badkamer is stijlvol betegeld in een rustige antraciet-wit combinatie en voorzien van een ligbad, aparte douche met glazen deur, een tweede zwevend toilet en een wastafelmeubel met twee kranen en een grote spiegel.
2e Verdieping:
Via een vaste trap bereik je de tweede verdieping. Deze open zolderruimte is voorzien van een laminaatvloer, een dakraam en knieschotten voor extra bergruimte. Je treft hier de WTW-unit en de cv-ketel. Of je hier nu een werkplek, speelkamer of extra slaapkamer van maakt, de ruimte is er!
Tuin:
De goed verzorgde tuin ligt op het zuidoosten en is een heerlijke plek om te genieten van het buitenleven. Een prettige mix van bestrating, gras en beplanting zorgt voor zowel ruimte als groen, terwijl je dankzij de ligging al vroeg op de dag kunt genieten van de eerste zonnestralen. Het terras bij de woning is voorzien van een zonnescherm. Achterin de tuin staat een houten berging met elektra, ideaal voor het tuingereedschap.
Bijzonderheden:
* Deze woning heeft energielabel A
* Ruime oprit met plek voor meerdere auto’s
* Het woonoppervlak betreft de ruimte op de begane grond en de 1e verdieping
* 3 Royale slaapkamers en mogelijkheid voor een extra kamer
* Kindvriendelijke wijk
* Aanvaarding in overleg, op korte termijn mogelijk