Let op: genoemde prijs betreft een “bieden vanaf prijs”.
Wonen in een recent opgeleverde woning met vrij uitzicht aan de voorzijde, wie droomt daar nu niet van? Deze gasloze tussenwoning met energielabel A+++ in ‘’Het Palet’’ kan zomaar jouw nieuwe woning zijn! Voorzien van onder andere een moderne keuken, 2 slaapkamers, een royale zolderverdieping waar je nog alle kanten mee op kunt en een fijne tuin op het zuiden. Het winkelcentrum van Dronten-west en uitvalswegen richting nabijgelegen plaatsen tref je op korte afstand. Kortom: dit is een woning die je wil ontdekken!
Indeling:
Begane grond:
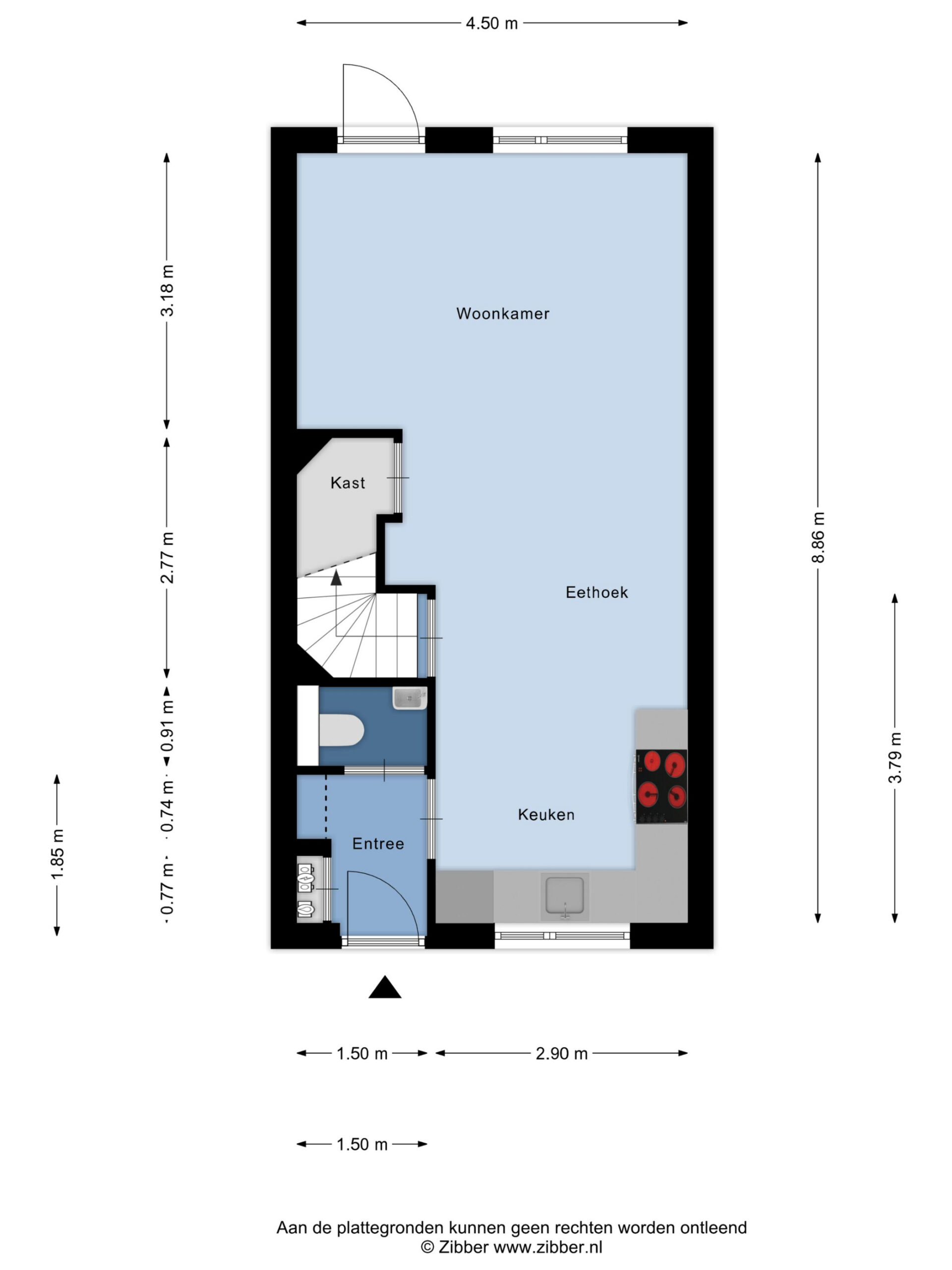
Binnenkomst in de hal met de meterkast, de garderobe, de toegang tot de keuken/woonkamer en de...
Let op: genoemde prijs betreft een “bieden vanaf prijs”.
Wonen in een recent opgeleverde woning met vrij uitzicht aan de voorzijde, wie droomt daar nu niet van? Deze gasloze tussenwoning met energielabel A+++ in ‘’Het Palet’’ kan zomaar jouw nieuwe woning zijn! Voorzien van onder andere een moderne keuken, 2 slaapkamers, een royale zolderverdieping waar je nog alle kanten mee op kunt en een fijne tuin op het zuiden. Het winkelcentrum van Dronten-west en uitvalswegen richting nabijgelegen plaatsen tref je op korte afstand. Kortom: dit is een woning die je wil ontdekken!
Indeling:
Begane grond:
Binnenkomst in de hal met de meterkast, de garderobe, de toegang tot de keuken/woonkamer en de toiletruimte. De toiletruimte is betegeld in grijstinten en voorzien van een zwevend toilet en een fonteintje. De keuken is straatgericht en bevindt zich in een hoekopstelling. De witte fronten gecombineerd met het grijsgekleurde aanrechtblad maakt de uitstraling strak en modern. De aanwezige inbouwapparatuur betreft een koel-vriescombinatie, een vaatwasser, een combi-oven, een 4-pits inductiekookplaat en een zwarte RVS-afzuigschouw. Ter plaatse van de eethoek heb je voldoende ruimte voor het plaatsen van een eettafel, of je nu voor rechthoekig, rond of ovaal kiest. Je treft hier verder een praktische trapkast en de afgesloten trapopgang naar de 1e verdieping. De woonkamer biedt mogelijkheid voor het plaatsen van een royale bank of meerdere losse meubels en hier komt door de grote raampartijen een fijne portie daglicht binnen. De gehele begane grond is voorzien van een mooie laminaatvloer met vloerverwarming.
1e Verdieping:
Vanaf de overloop zijn de 2 slaapkamers, de vaste trap naar de 2e verdieping en de badkamer bereikbaar. Beide slaapkamers zijn lekker ruim en bieden ruimte voor het plaatsen van een (tweepersoons)bed en een kledingkast. De grootste slaapkamer, die aan de achterzijde is gelegen, beschikt over elektrisch bedienbare rolluiken. De overloop en de slaapkamers zijn, net als de begane grond, voorzien van een laminaatvloer met vloerverwarming. De badkamer is van vloer tot plafond betegeld met grijsgekleurde tegels en is ingericht met een inloopdouche met draingoot, een dubbele wastafel met meubel, een wandkast, een designradiator, een zwevend toilet en vloerverwarming.
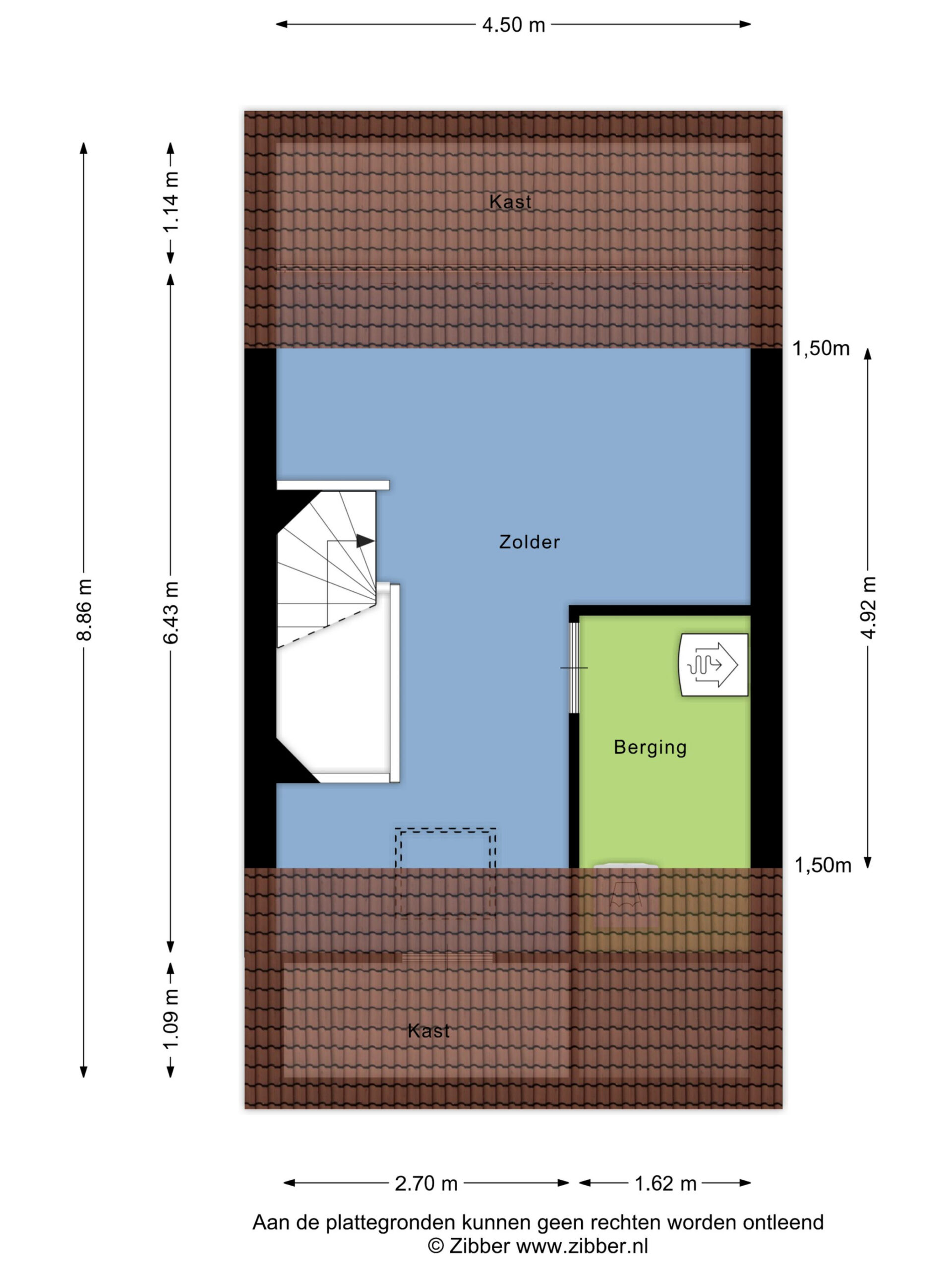
2e Verdieping:
Maak gebruik van de vaste trap op de 1e verdieping en je bereikt de zolderverdieping. Met deze ruimte kun je alle kanten nog op! De ruimte is in ieder geval al netjes afgewerkt met een groot dakraam, veel bergruimte achter de knieschotten en een laminaatvloer. De warmtepomp, WTW-unit, de omvormer voor de zonnepanelen en de wasmachine zijn netjes weggewerkt in een separate berging.
Tuin:
Vanuit de woonkamer stap je zo de achtertuin in. En hier is het volop genieten! Met de zuidelijke ligging geniet je hier volop van de zon en op de warmere dagen van het jaar maak je gemakkelijk gebruik van het elektrisch bedienbare zonnescherm. Bij de woning bevindt zich een terras waar je de mogelijkheid hebt een eettafel of loungeset te plaatsen. De tuin is verder mooi in balans met staptegels, gras en beplanting. Achter in de tuin tref je de berging (voorzien van elektra) en de afsluitbare achterom.
Bijzonderheden:
* Deze woning heeft energielabel A+++
* Recent opgeleverde woning
* Voorzien van een warmtepomp en 9 zonnepanelen, zeer energiezuinig dus!
* Vrij uitzicht aan de voorzijde
* Aanvaarding in overleg