Let op: genoemde prijs betreft een “bieden vanaf prijs”.
In de groene omgeving van wijk ‘’De Boeg’’ staat deze ruime, netjes onderhouden hoekwoning. Hier woon je centraal met het kleinschalige winkelcentrum van Dronten-zuid, het centrum van Dronten en uitvalswegen richting nabijgelegen plaatsen op korte afstand. De woning zelf heeft je ook nog eens veel te bieden, waaronder lichte leefruimtes, een royale en zonnige tuin en 3 slaapkamers. Deze woning wil je leren kennen!
Indeling:
Begane grond:
Binnenkomst in de hal met de meterkast, de toegang tot de woonkamer en de toiletruimte, die is betegeld in een rustige kleurstelling en is voorzien van een staand toilet, een fonteintje en een...
Let op: genoemde prijs betreft een “bieden vanaf prijs”.
In de groene omgeving van wijk ‘’De Boeg’’ staat deze ruime, netjes onderhouden hoekwoning. Hier woon je centraal met het kleinschalige winkelcentrum van Dronten-zuid, het centrum van Dronten en uitvalswegen richting nabijgelegen plaatsen op korte afstand. De woning zelf heeft je ook nog eens veel te bieden, waaronder lichte leefruimtes, een royale en zonnige tuin en 3 slaapkamers. Deze woning wil je leren kennen!
Indeling:
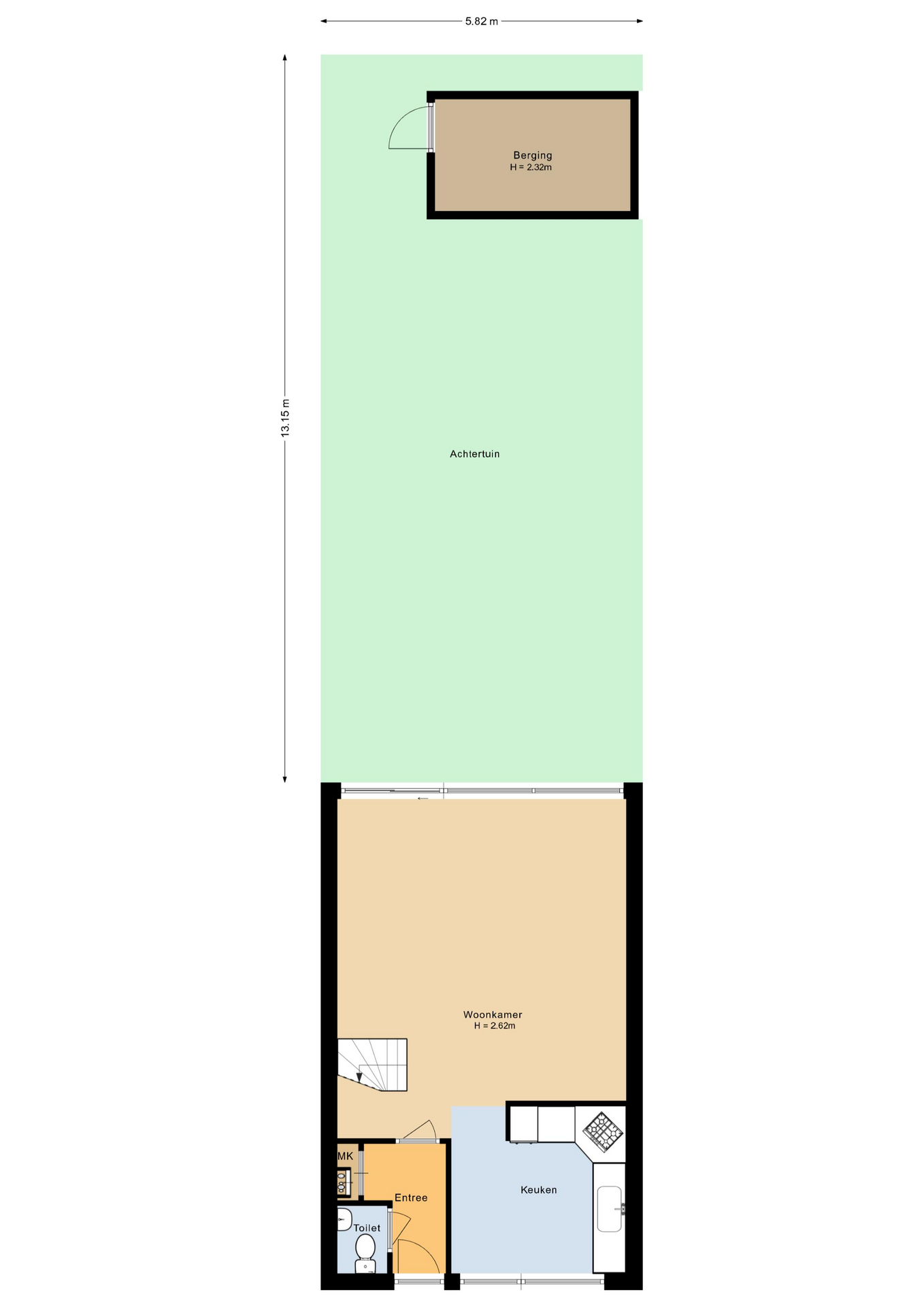
Begane grond:
Binnenkomst in de hal met de meterkast, de toegang tot de woonkamer en de toiletruimte, die is betegeld in een rustige kleurstelling en is voorzien van een staand toilet, een fonteintje en een raampje. De half-open keuken is aan de voorzijde van de woning gesitueerd, beschikt over een plavuizenvloer en is in een hoek opgesteld. De aanwezige inbouwapparatuur betreft een koelkast, een 4-pits gaskookplaat, een afzuigschouw en een combimagnetron. De royale raampartijen maken dit een fijne, lichte ruimte die uitzicht biedt op het openbaar groen. De woonkamer is ruim te noemen en volledig naar eigen wens in te delen, of je nu voor die grote hoekbank of meerdere, losse meubels kiest! Verder tref je hier de open trapopgang naar de 1e verdieping, een laminaatvloer en een schuifpui naar de tuin.
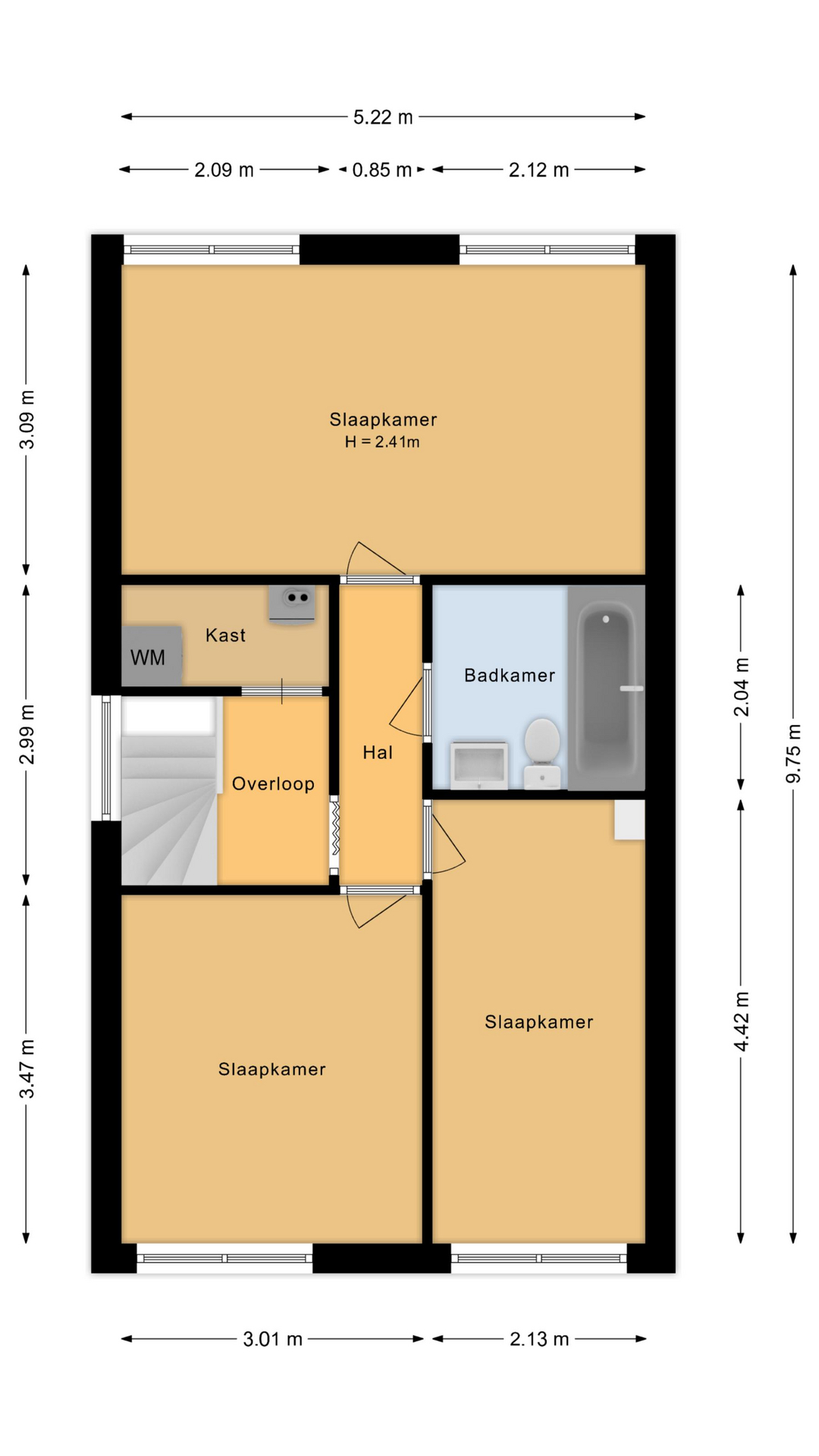
1e Verdieping:
Vanaf de overloop, die voorzien is van een lichtkoepel, heb je allereerst toegang tot de berging, waar je de opstelling voor de cv-installatie en de aansluitingen voor de was- en droogapparatuur treft. Vervolgens zijn de 3 slaapkamers en de badkamer bereikbaar. De grootste slaapkamer is aan de achterzijde van de woning gesitueerd en is over de volledige breedte gelegen. Alle ruimte dus voor een tweepersoons bed en een grote kledingkast! De andere 2 slaapkamers bevinden zich aan de voorzijde en zijn ook goed in te delen. De badkamer is in een neutrale kleurstelling betegeld en is ingericht met een ligbad met douchefunctie, een tweede toilet, een designradiator en een wastafel met meubel.
Tuin:
De onderhoudsvriendelijke tuin is heerlijk ruim en vrij gelegen. Op verschillende plekken zijn planten aanwezig, die in de warmere seizoenen prachtig in bloei staan. In het verleden is er een stukje grond bij gekocht, waardoor je gebruik kunt maken van een handige achterom en een opstelplaats voor de containers. De tuin is op het westen gesitueerd, waardoor je tot laat in de avond optimaal van de zon kunt genieten. Het terras bij de woning is voorzien van een zonnescherm. Achter in de tuin bevindt zich een stenen berging, die is voorzien van elektra.
Bijzonderheden:
* Deze woning heeft energielabel C
* Nette, ruime hoekwoning
* Voorzien van 3 slaapkamers
* Gevels voorzien van na-isolatie
* Gelegen aan een openbare groenstrook
* Aanvaarding in overleg