Let op: genoemde prijs betreft een “bieden vanaf prijs”.
In de gemoedelijke en populaire Manegewijk staat deze goed onderhouden, energiezuinige 2-onder-1-kap woning met een flinke uitbouw aan de achterzijde, een in 2025 vernieuwde badkamer, een kantoor op de begane grond, 4 slaapkamers en een zonnige tuin. Hier woon je op korte afstand van het centrum van Dronten, maar geniet je toch van rust, ruimte en privacy. De woning is licht, praktisch ingedeeld en gasloos dankzij de warmtepomp en boiler. Dit zou zomaar eens jouw nieuwe thuis kunnen zijn!
Indeling:
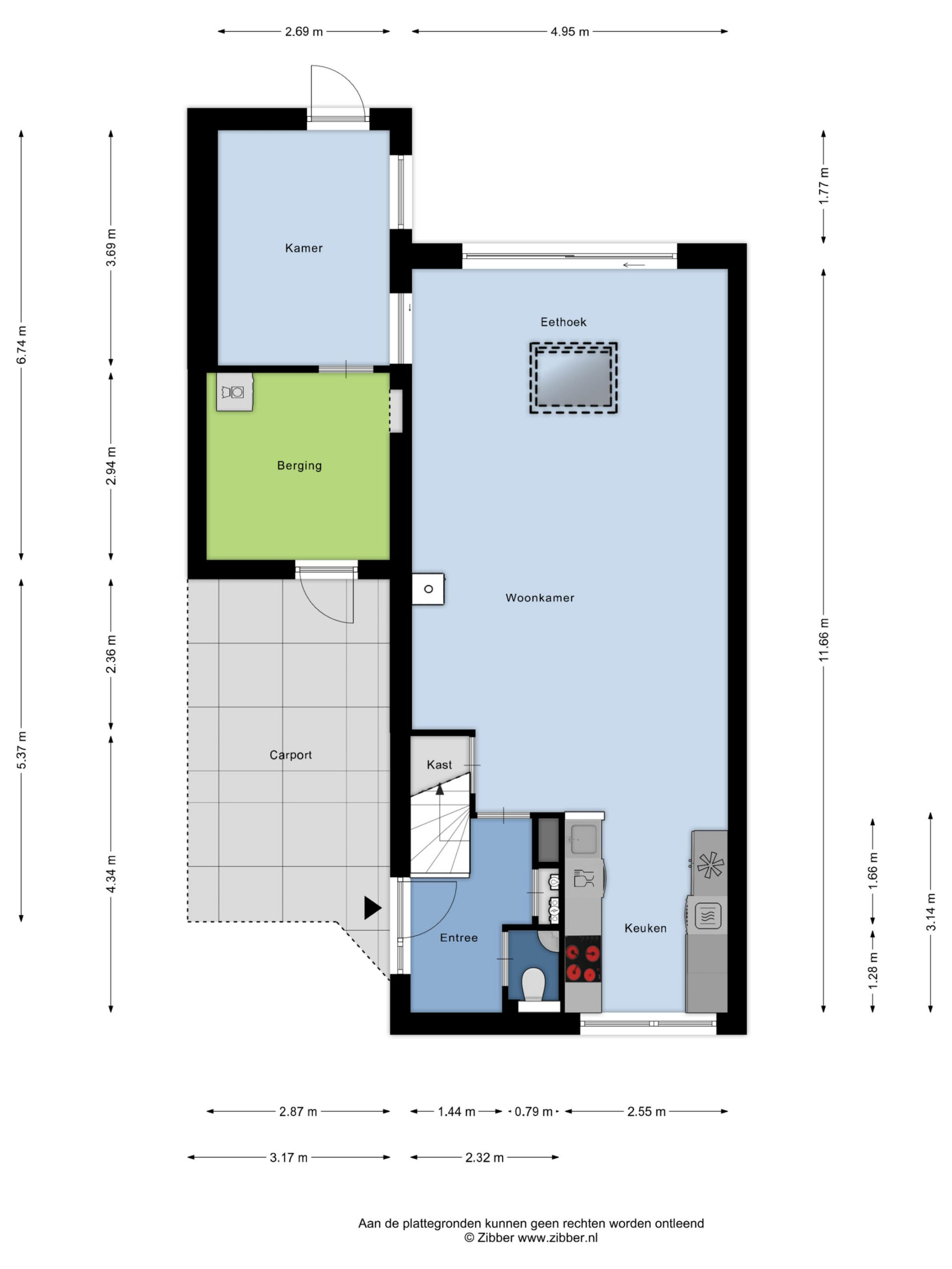
Begane grond:
Aankomst bij de woning op de ruime oprit met carport, waar er plaats is voor 2 auto’s. Binnenkomst in de...
Let op: genoemde prijs betreft een “bieden vanaf prijs”.
In de gemoedelijke en populaire Manegewijk staat deze goed onderhouden, energiezuinige 2-onder-1-kap woning met een flinke uitbouw aan de achterzijde, een in 2025 vernieuwde badkamer, een kantoor op de begane grond, 4 slaapkamers en een zonnige tuin. Hier woon je op korte afstand van het centrum van Dronten, maar geniet je toch van rust, ruimte en privacy. De woning is licht, praktisch ingedeeld en gasloos dankzij de warmtepomp en boiler. Dit zou zomaar eens jouw nieuwe thuis kunnen zijn!
Indeling:
Begane grond:
Aankomst bij de woning op de ruime oprit met carport, waar er plaats is voor 2 auto’s. Binnenkomst in de hal met de trapopgang naar de 1e verdieping, de meterkast, de toegang tot de living en de toiletruimte (2017 gerenoveerd), die is voorzien van een zwevend toilet en een fonteintje. Bij binnenkomst in de open ingedeelde keuken en woonkamer is de ruimte die is gecreëerd door de uitbouw hetgeen dat meteen in het oog springt. Wat een prachtige ruimte is dit! De keuken is straatgericht en uitgevoerd in 2 rechte opstellingen. De aanwezige inbouwapparatuur betreft een koel-/vriescombinatie, een vaatwasser, een 4-pits inductiekookplaat, een RVS-afzuigschouw, een oven en een combi-magnetron. De woonkamer is dankzij de schuifpui en lichtkoepel ontzettend licht en geeft je de mogelijkheid om helemaal naar eigen wens in te richten. Hier hoef je niet te kiezen tussen een royale eettafel óf grote bank, maar plaats je gewoon allebei! Vanuit de eethoek heb je toegang tot het kantoor, die bijvoorbeeld ook perfect gebruikt kan worden als speelkamer of hobbyruimte. In dit kantoor tref je een deur naar de tuin en aansluitend de bijkeuken, waar je de aansluitingen voor de was- en droogapparatuur en een deur naar de oprit treft. Fijne extra: hier zijn de voorbereidingen qua leidingwerk alvast gedaan om in de toekomst een badkamer te realiseren!
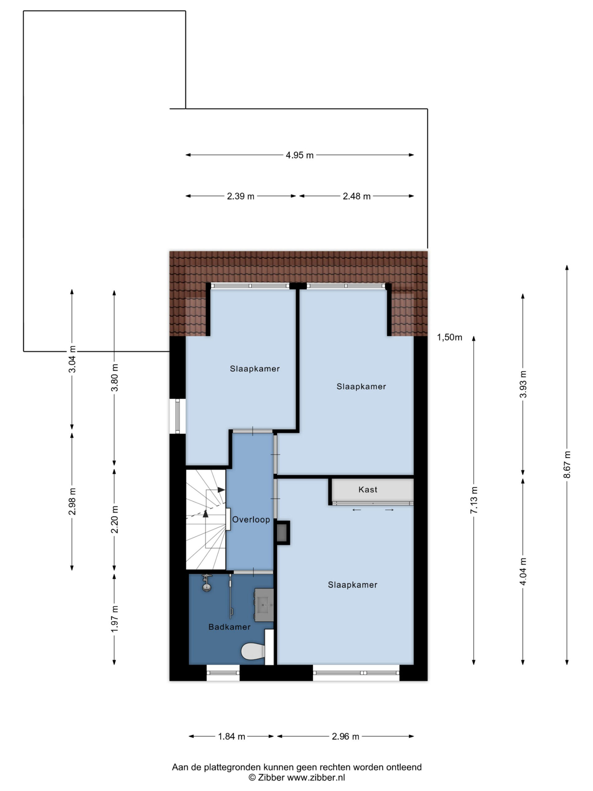
1e Verdieping:
Vanaf de overloop zijn de 3 slaapkamers, de vaste trap naar de 2e verdieping en de badkamer bereikbaar. De slaapkamers bieden stuk voor stuk een fijn indeelbare ruimte en veel daglichttoetreding. De grootste slaapkamer, die zich aan de voorzijde van de woning bevindt, beschikt over een elektrisch bedienbaar rolluik en een ingebouwde kledingkast met schuifdeuren. De, in 2025 gerenoveerde, badkamer is van vloer tot plafond betegeld in een moderne kleurstelling en ingericht met een inloopdouche met draingoot, een zwevend toilet, een designradiator, een wastafel met meubel en een spiegel met verlichting en verwarming.
2e Verdieping:
Neem de vaste trap en je bereikt de voorzolder, waar je de boiler, de mv-unit (netjes weggewerkt), een groot dakraam en de toegang tot de 4e slaapkamer treft. Deze slaapkamer is dankzij de dakkapel lekker ruim en beschikt over een elektrisch bedienbaar rolluik en airconditioning, die tevens kan verwarmen. Achter de knieschotten tref je de warmtepomp.
Tuin:
Schuif de pui open en geniet van het zonnetje! In deze op het zuidoosten georiënteerde tuin profiteer je zo lang mogelijk van de mooie dagen. De tuin is verzorgd aangelegd met een stukje gazon, beplanting en bestrating. Achter in de tuin tref je een praktische berging met elektra en aansluitend een overkapping: dat wordt gezellig borrelen met vrienden en familie!
Bijzonderheden:
* Deze woning heeft energielabel A+
* Voorzien van een warmtepomp, airconditioning en een boiler
* Aan de achterzijde uitgebouwd
* Kantoor op de begane grond
* Aanvaarding in overleg