Let op: genoemde prijs betreft een “bieden vanaf prijs”.
Zoek jij een ruime, unieke woning op een fijne locatie in Dronten? Dan zou dit zomaar eens precies kunnen zijn wat jij zoekt! Deze geschakelde 2-onder-1-kap woning heeft enorm veel te bieden, waaronder ca. 168m² woonoppervlak, een onder architectuur aangelegde tuin aan openbaar groen, 4 royale slaapkamers, een verlengde garage en een kantoor op de begane grond. Ook aan duurzaamheid is gedacht: de woning beschikt zowel over zonnecollectoren- als panelen. Plan je gauw een bezichtiging in?
Indeling:
Begane grond:
Aankomst bij de woning op de ruime oprit, waar je gemakkelijk 2 auto’s parkeert. Overdekte entree onder...
Let op: genoemde prijs betreft een “bieden vanaf prijs”.
Zoek jij een ruime, unieke woning op een fijne locatie in Dronten? Dan zou dit zomaar eens precies kunnen zijn wat jij zoekt! Deze geschakelde 2-onder-1-kap woning heeft enorm veel te bieden, waaronder ca. 168m² woonoppervlak, een onder architectuur aangelegde tuin aan openbaar groen, 4 royale slaapkamers, een verlengde garage en een kantoor op de begane grond. Ook aan duurzaamheid is gedacht: de woning beschikt zowel over zonnecollectoren- als panelen. Plan je gauw een bezichtiging in?
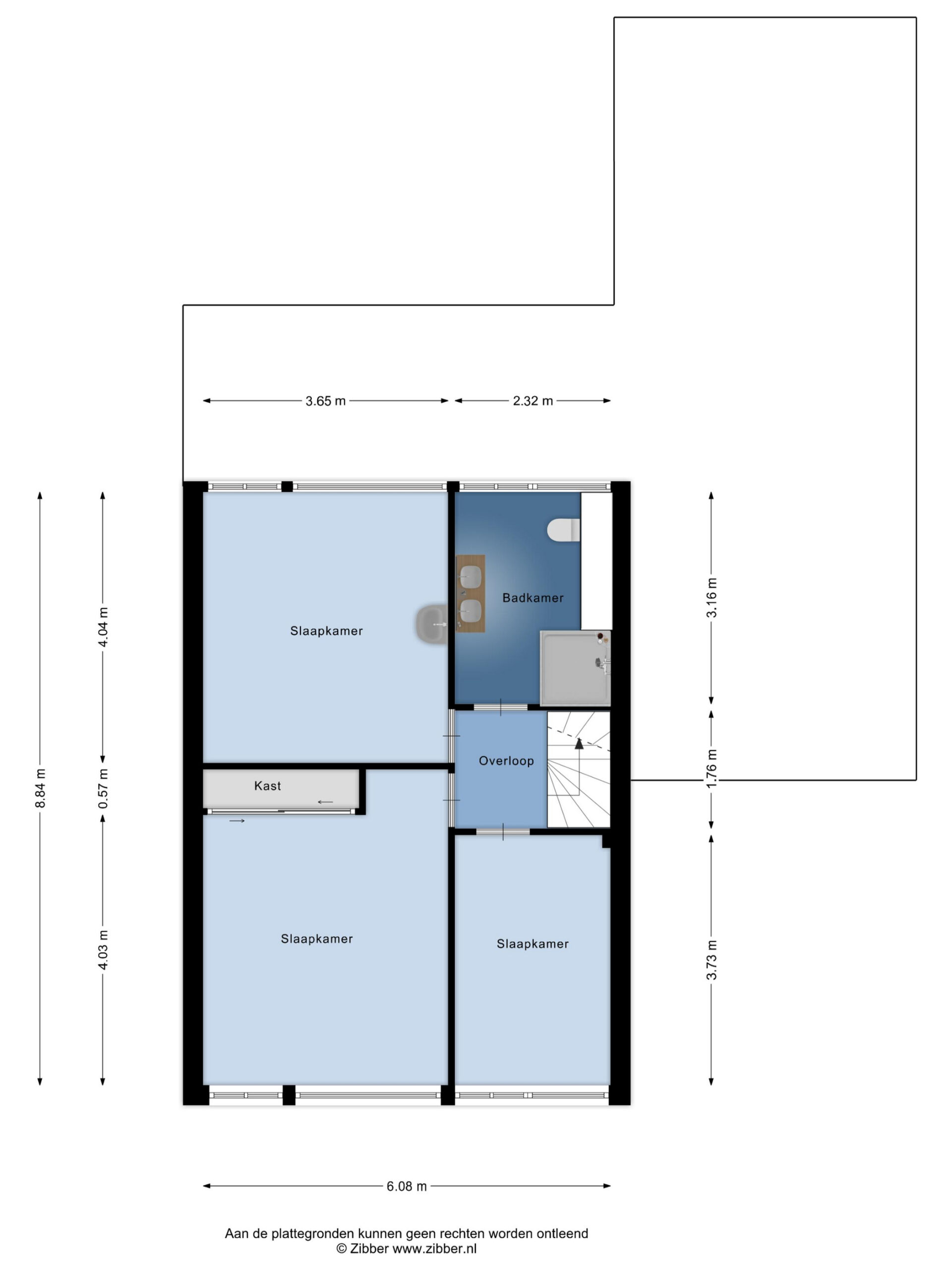
Indeling:
Begane grond:
Aankomst bij de woning op de ruime oprit, waar je gemakkelijk 2 auto’s parkeert. Overdekte entree onder de carport met binnenkomst in de hal, waar je de meterkast, de garderobe, de trapopgang naar de 1e verdieping, de binnendoor naar de garage, de toegang tot de living en de toiletruimte treft. De toiletruimte is betegeld in een moderne kleurstelling en is voorzien van een zwevend toilet en een fonteintje. Bij binnenkomst in de woonkamer kun je niet anders dan naar de tuin kijken: prachtig aangelegd en grenzend aan openbaar groen. Hier woon je midden in de natuur! Dankzij de uitbouw van 2,5 meter heb je hier alle ruimte voor het plaatsen van verschillende meubels en verder tref je hier een houten vloer en een schuifpui naar de tuin. De eethoek is eveneens ruim te noemen en vanuit hier heb je zicht op de straat en de open keuken, die in een rechte opstelling met spoel-/kookeiland is uitgevoerd. De aanwezige inbouwapparatuur betreft een oven, een stoomoven, een combi-magnetron, een koel-vriescombinatie, een vaatwasser, een ingebouwde afzuigkap, een inductiekookplaat en een Quooker. De, vanuit de hal bereikbare, garage biedt alle ruimte voor het opslaan van spullen of het uitoefenen van een hobby. De voorzieningen betreffen elektra, een betonvloer, dubbele deuren naar de oprit en een keukenblok met warm en koud water. Aansluitend is het kantoor bereikbaar, waar vanuit je kunt genieten van prachtig uitzicht op de tuin. Je treft hier verder verwarming, de omvormer voor de zonnepanelen en de aansluitingen voor de was- en droogapparatuur.
1e Verdieping:
Vanaf de overloop zijn de 3 slaapkamers, de vaste trap naar de 2e verdieping en de badkamer bereikbaar. De slaapkamers zijn stuk voor stuk lekker ruim en beschikken dankzij de grote raampartijen over veel daglicht. De slaapkamer die zich aan de achterzijde bevindt, beschikt over een wastafel. De moderne badkamer is van vloer tot plafond betegeld in natuurtinten en is ingericht met een inloopdouche met draingoot, een dubbele wastafel met wastafelmeubel, een spiegelkast, een zwevend toilet, een ingebouwde wandkast en een designradiator.
2e Verdieping:
Neem de vaste trap en je bereikt de voorzolder, waar je veel extra bergruimte tot je beschikking hebt. In één van deze bergingen bevinden zich de opstelling voor de cv-installatie, de zonneboiler (200 liter) en de 2e omvormer voor de zonnepanelen. Aansluitend is de 4e slaapkamer bereikbaar, die dankzij de dakkapel heerlijk ruim is. Je treft hier verder bergruimte achter de knieschotten en een groot dakraam.
Tuin:
Natuurliefhebbers opgelet! Dit is een heerlijke plek om te vertoeven. Dankzij de ligging op het oosten geniet je hier al vroeg op de dag van de zon. En genieten doe je hier zeker, want de tuin is onder architectuur aangelegd. Over alles is nagedacht! Prachtige beplanting, een vijver, een mooi terras, gazon en een sfeervolle blokhut achter in de tuin. Hier zit je tot in de late uurtjes gezellig met familie of vrienden en je hebt zelfs de mogelijkheid om er te slapen!
Bijzonderheden:
* Deze woning heeft energielabel A
* Voorzien van zonnecollectoren en zonnepanelen
* Sfeervolle woning grenzend aan openbaar groen
* De woning is zowel aan de voor- als aan de achterkant voorzien van handmatig bedienbare zonwering
* De blokhut is voorzien van HR++ beglazing en vloerisolatie
* Gelegen in een gemoedelijke wijk, vlakbij het centrum van Dronten
* Verlengde garage en woonkamer met 2,5 meter uitgebouwd
* Aanvaarding in overleg