Let op: genoemde prijs betreft een “bieden vanaf prijs”.
Dit moderne, instapklare appartement is ideaal voor wie op zoek is naar een lichte, praktisch ingedeelde woning op een perfecte locatie, namelijk aan de rand van het centrum van Dronten! Het appartement beschikt onder andere over een ruime woonkamer en open keuken, 2 slaapkamers, een praktische bijkeuken, royale badkamer en fijn balkon op het oosten. In de kelder heeft u een eigen parkeerplaats en een privéberging tot uw beschikking. Mogen wij u binnenkort verwelkomen voor een bezichtiging?
Indeling:
Begane grond:
Aankomst bij het appartementencomplex met het bellentableau (met videofoon in het appartement) en de brievenbussen. Binnenkomst...
Let op: genoemde prijs betreft een “bieden vanaf prijs”.
Dit moderne, instapklare appartement is ideaal voor wie op zoek is naar een lichte, praktisch ingedeelde woning op een perfecte locatie, namelijk aan de rand van het centrum van Dronten! Het appartement beschikt onder andere over een ruime woonkamer en open keuken, 2 slaapkamers, een praktische bijkeuken, royale badkamer en fijn balkon op het oosten. In de kelder heeft u een eigen parkeerplaats en een privéberging tot uw beschikking. Mogen wij u binnenkort verwelkomen voor een bezichtiging?
Indeling:
Begane grond:
Aankomst bij het appartementencomplex met het bellentableau (met videofoon in het appartement) en de brievenbussen. Binnenkomst in de gemeenschappelijke hal met de toegang tot de appartementen op de begane grond, het (dubbel) trappenhuis en de lift naar de verschillende verdiepingen.
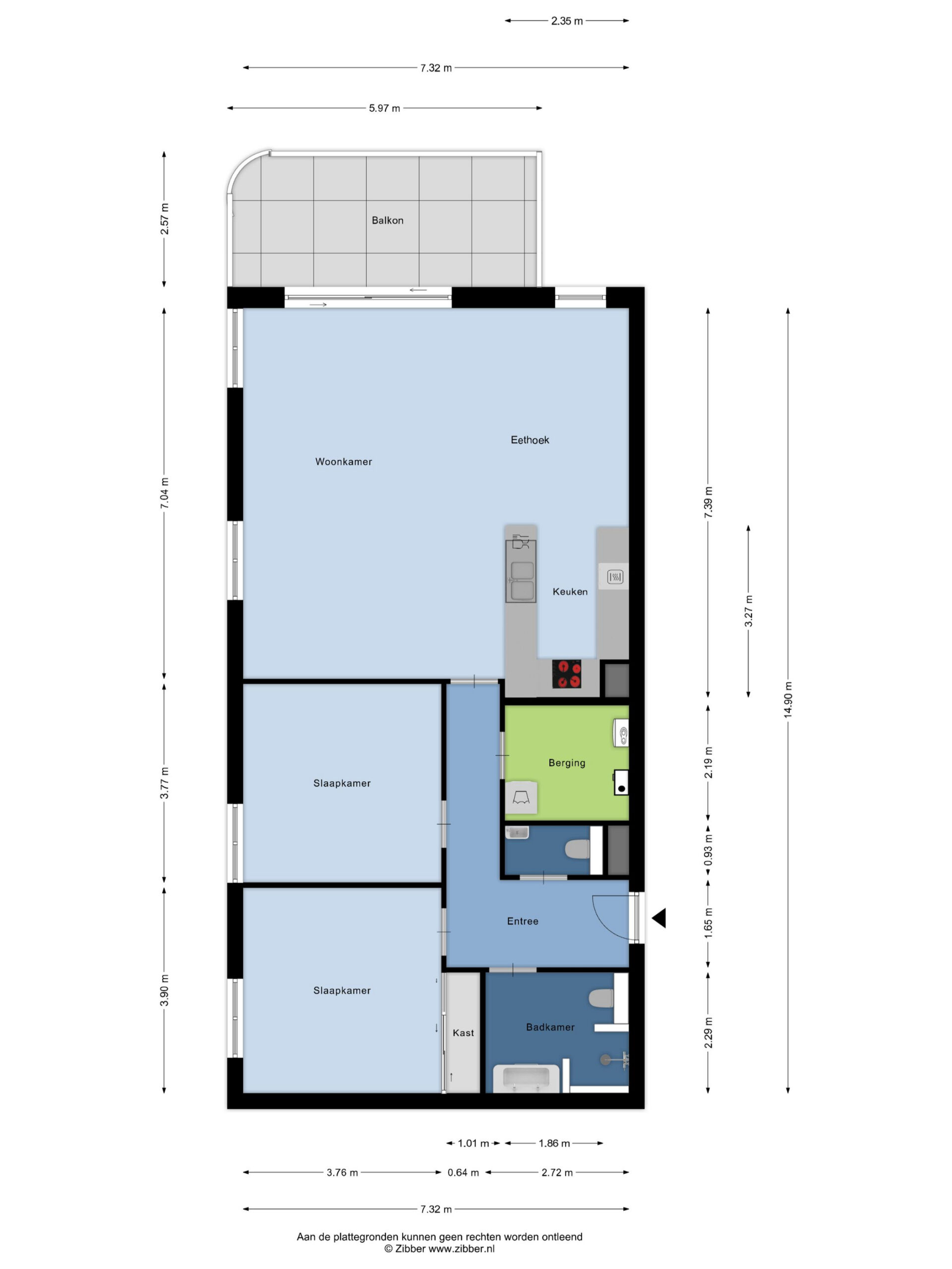
2e Verdieping/3e Woonlaag:
Eenmaal op de 2e verdieping aangekomen heeft u toegang tot uw eigen meterkast en het appartement. Binnenkomst in de hal, voorzien van sfeervolle wandverlichting, met toegang tot alle vertrekken. Bij binnenkomst in de woonkamer/keuken is het vele daglicht en de prachtige ligging hetgeen dat direct opvalt. Hier blijft u naar buiten kijken! Het grootste deel van de raampartijen reiken tot aan de grond, waardoor u vanuit iedere hoek goed zicht naar buiten hebt. Qua inrichting kunt u alle kanten op, of u nu voor grote meubels of meerdere kleinere meubels kiest. De strakke, moderne keuken bevindt zich in een U-opstelling en beschikt over inbouwapparatuur zoals een Quooker, een vaatwasser, een oven, een combimagnetron, een koel-vriescombinatie, een inductiekookplaat en een RVS-afzuigschouw. De praktische bijkeuken biedt ruimte voor extra voorraad, de wasmachine en de droger. Verder treft u hier de groepenkast, de mv-unit en de opstelling voor de cv-installatie. De toiletruimte is betegeld met moderne, taupe gekleurde tegels en is voorzien van een zwevend toilet en een fonteintje. De 2 slaapkamers zijn heerlijk ruim en bieden de mogelijkheid om een tweepersoonsbed te plaatsen. De grootste slaapkamer beschikt over een ingebouwde kledingkast. De badkamer is in dezelfde, moderne stijl betegeld als het separate toilet en is ingericht met een inloopdouche met draingoot, een dubbele wastafel met meubel, een met kleurverlichting instelbare spiegelkast, een zwevend toilet en een designradiator.
Balkon:
Middels de schuifpui heeft u toegang tot het ruime balkon. En hier is het heerlijk toeven! De ligging is namelijk op het oosten, waardoor u al vroeg op de dag in het zonnetje kunt zitten. Een comfortabele loungehoek of juist een eettafel: u kunt het hier plaatsen!
Bijzonderheden:
* Dit appartement heeft energielabel A
* Volledig voorzien van kunststof kozijnen met HR+++ beglazing
* Prachtige ligging met mooi uitzicht
* Moderne en nette afwerking
* Het raam aan de oostzijde in de woonkamer beschikt over een elektrisch bedienbaar screen
* Het appartement beschikt over een eigen parkeerplaats in het souterrain en een privéberging
* Maandelijkse bijdrage Vereniging van Eigenaren € 173,- (2025)
* Aanvaarding in overleg