Heerlijk rustig wonen én de mogelijkheid om je eigen bedrijf uit te oefenen? Het kan allemaal in deze unieke bedrijfswoning uit 2005! De woning straalt sfeer en comfort uit, biedt verrassend veel ruimte en is bovendien levensloopbestendig dankzij een slaapkamer met en-suite badkamer op de begane grond. Extra luxe: een centraal stofzuigsysteem dat het schoonmaken een stuk eenvoudiger maakt.
Op het ruime perceel staat daarnaast een indrukwekkende loods, compleet uitgerust met praktische voorzieningen en een geïsoleerde werkplaats. Op het dak liggen zonnepanelen, die bijdragen aan lagere energielasten én een duurzame bedrijfsvoering. En dat alles op korte afstand van het kleinschalige winkelcentrum van Swifterbant, met...
Heerlijk rustig wonen én de mogelijkheid om je eigen bedrijf uit te oefenen? Het kan allemaal in deze unieke bedrijfswoning uit 2005! De woning straalt sfeer en comfort uit, biedt verrassend veel ruimte en is bovendien levensloopbestendig dankzij een slaapkamer met en-suite badkamer op de begane grond. Extra luxe: een centraal stofzuigsysteem dat het schoonmaken een stuk eenvoudiger maakt.
Op het ruime perceel staat daarnaast een indrukwekkende loods, compleet uitgerust met praktische voorzieningen en een geïsoleerde werkplaats. Op het dak liggen zonnepanelen, die bijdragen aan lagere energielasten én een duurzame bedrijfsvoering. En dat alles op korte afstand van het kleinschalige winkelcentrum van Swifterbant, met uitstekende verbindingen naar omliggende plaatsen.
Benieuwd hoe het voelt om hier te wonen én te werken? We leiden je graag rond!
Indeling:
Begane grond:
Binnenkomst in de ruime hal met de meterkast (3 fase), trapopgang naar de verdieping, toegang tot de woonkeuken via dubbele glas-in-houtdeuren, de woonkamer, de slaapkamer met en-suite badkamer en een separate toiletruimte, die is betegeld in een rustige kleurstelling en is voorzien van een zwevend toilet en een fonteintje. De royale woonkeuken ligt aan de achterzijde van de woning en biedt volop ruimte voor een grote eettafel. De keuken in hoekopstelling is uitgevoerd in tijdloze kleuren en voorzien van diverse inbouwapparatuur, waaronder een 5-pits gasfornuis met oven, een afzuigschouw, een combimagnetron, een vaatwasser, een vriezer, een koelkast en een close-in boiler. Vanuit de keuken zijn de werkkamer en de bijkeuken bereikbaar. Via dubbele openslaande deuren stap je zo de ruime veranda op. De bijkeuken beschikt over vaste kasten, aansluitingen voor de was- en droogapparatuur, een gootsteen met koud water en een deur naar de veranda en tuin. De woonkamer is bereikbaar via dubbele glas-in-houtdeuren vanuit de hal. De ingebouwde houtkachel zorgt hier voor een warme, huiselijke sfeer. Via een 2e halletje zijn de slaapkamer en en-suite badkamer bereikbaar. De slaapkamer is voorzien van een houten vloer en biedt ruimte voor een tweepersoonsbed en kledingkast. De badkamer is modern betegeld in wit en antraciet en uitgerust met een inloopdouche met draingoot, een whirlpool, een zwevend toilet, een wastafel met meubel en ingebouwde radio. In de slaapkamer bevindt zich tevens een vaste kast met de verdeler voor de vloerverwarming (aanwezig op vrijwel de gehele begane grond, met uitzondering van de slaapkamer).
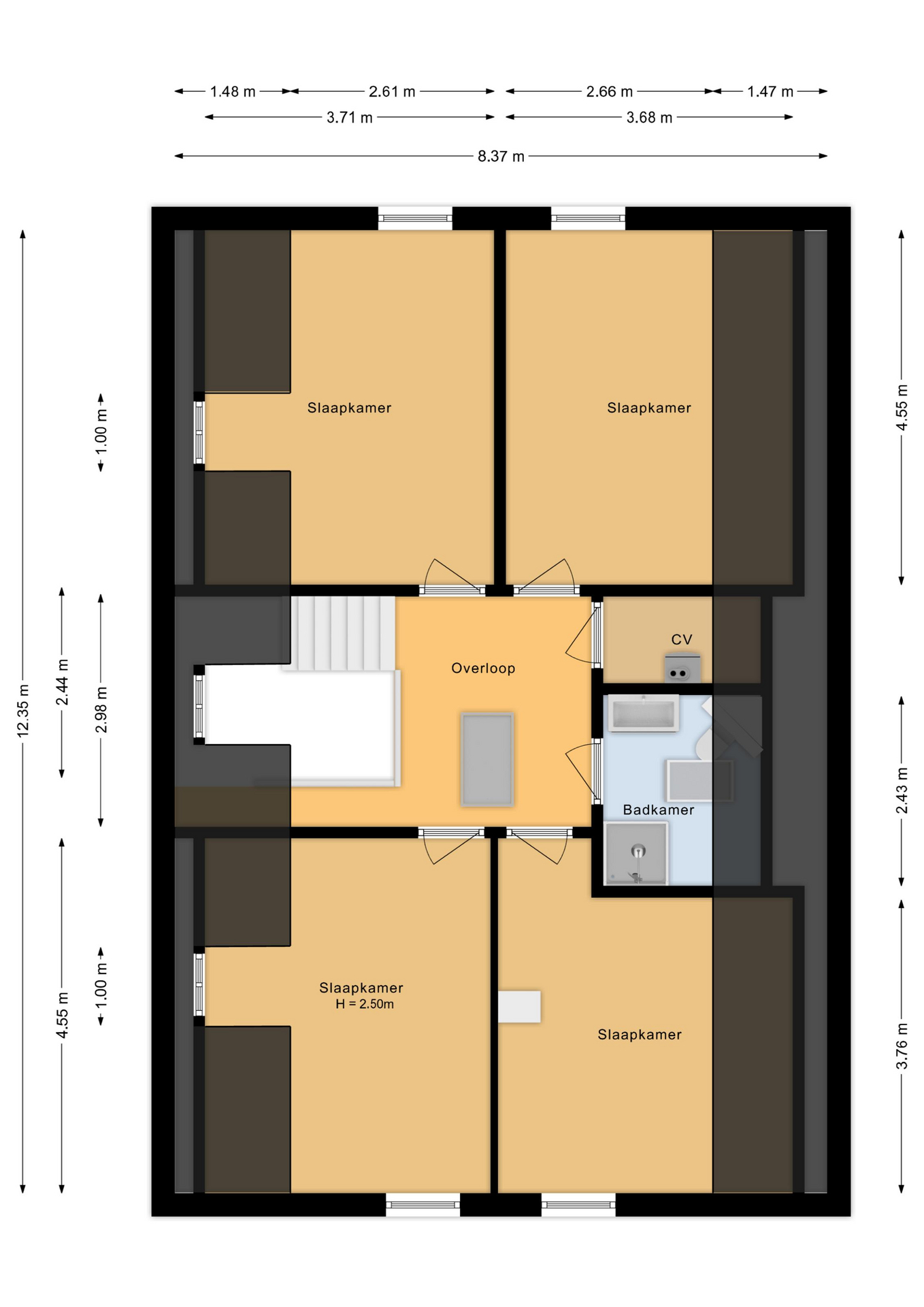
1e Verdieping:
De ruime overloop geeft toegang tot 4 royale slaapkamers, de 2e badkamer, de stookruimte en via een vlizotrap tot de vliering. De gehele verdieping is voorzien van een houten vloer. De badkamer is in dezelfde stijl als beneden uitgevoerd en beschikt over een douchecabine, een wastafel met meubel en een zwevend toilet. De stookruimte biedt naast extra bergruimte plaats aan de cv-installatie (2024, voorbereid op een hybride warmtepomp) en de mv-unit.
Vliering:
Via de vlizotrap bereik je de praktische vliering: ideale extra bergruimte!
Tuin:
Rondom de woning ligt een royale tuin met veel groen, meerdere sfeervolle zithoekjes, een vijver, houtopslagplaatsen en zelfs een groentetuin met kas om zelf groente of planten te kweken. Dankzij de ruime, overdekte veranda die om een groot deel van de woning loopt, geniet je in elk seizoen van het buitenleven. Daarnaast is er een grote parkeerplaats op eigen terrein aanwezig - ideaal voor meerdere auto’s of werkvoertuigen.
De loods:
De royale loods is voorzien van elektra, koud water, een geïsoleerde werkplaats met werkbanken en verrijdbare tafel, een aparte stofruimte, een keukenblok, een toilet en een verdieping met nog meer opslagruimte. Op het dak liggen zonnepanelen, waardoor de loods niet alleen praktisch, maar ook duurzaam in gebruik is.
Bijzonderheden:
* Deze woning heeft energielabel A
* Loods met zonnepanelen en uitgebreide werkplaatsvoorzieningen
* Grote overdekte veranda en ruime tuin met vijver, kas en meerdere zithoekjes
* Eigen parkeerplaats met ruimte voor meerdere auto’s/werkvoertuigen
* Betreft een bedrijfswoning (uitoefenen bedrijf is verplicht)
* Uniek object, gebouwd in 2005
* Houtskeletbouwwoning
* Woning zowel beneden als boven voorzien van een centraal stofzuigsysteem
* Aanvaarding in overleg