Let op: genoemde prijs betreft een “bieden vanaf prijs”.
Bekijk nu deze sfeervolle 2-onder-1-kapwoning in “De Bloemenwijk” in Swifterbant, op steenworp afstand van het Swifterbos. Niet alleen van buiten is deze woning een plaatje, ook binnen is het ruim en keurig afgewerkt. De vernieuwde keuken in combinatie met de visgraat pvc-vloer geeft de begane grond een luxe uitstraling. De nette badkamer en drie ruime slaapkamers met parketvloer op de eerste verdieping maken het geheel compleet. De woning ligt op korte fietsafstand van alle voorzieningen en uitvalswegen richting Dronten, Lelystad, Almere en Emmeloord zijn snel bereikbaar.
Indeling
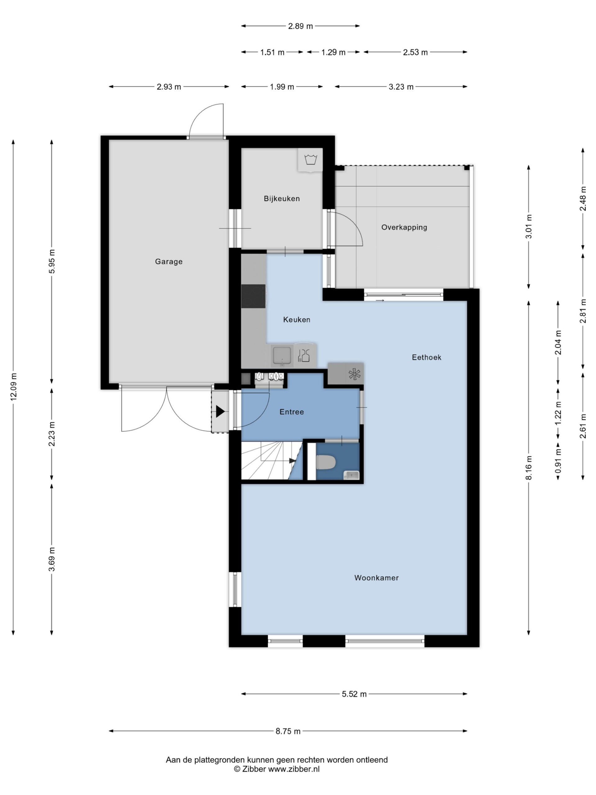
Begane grond
Bij binnenkomst in de hal vind je de...
Let op: genoemde prijs betreft een “bieden vanaf prijs”.
Bekijk nu deze sfeervolle 2-onder-1-kapwoning in “De Bloemenwijk” in Swifterbant, op steenworp afstand van het Swifterbos. Niet alleen van buiten is deze woning een plaatje, ook binnen is het ruim en keurig afgewerkt. De vernieuwde keuken in combinatie met de visgraat pvc-vloer geeft de begane grond een luxe uitstraling. De nette badkamer en drie ruime slaapkamers met parketvloer op de eerste verdieping maken het geheel compleet. De woning ligt op korte fietsafstand van alle voorzieningen en uitvalswegen richting Dronten, Lelystad, Almere en Emmeloord zijn snel bereikbaar.
Indeling
Begane grond
Bij binnenkomst in de hal vind je de meterkast, de trapopgang, toegang tot de woonkamer en de toiletruimte. De toiletruimte is betegeld in een lichte kleurstelling en voorzien van een visgraat pvc-vloer, een zwevend toilet en een fonteintje.
Je komt binnen in het midden van de woonkamer. Aan de straatzijde bevindt zich de zithoek. Dankzij het fijne formaat kun je hier alle kanten op en met drie ramen op het zuidwesten, is de lichtinval heerlijk. Toch te veel zon? Dan bieden de markiezen uitkomst.
Aan de tuinzijde vind je de eethoek met aansluitend de schuifpui naar de tuin. Deze zorgt voor veel licht én een prettige verbinding met buiten. Ruimte voor een grote eettafel is hier volop aanwezig. Direct aangrenzend ligt de vernieuwde keuken, waar je de lekkerste gerechten kunt bereiden.
De begane grond is afgewerkt met spachtelputz en een doorgelegde visgraat pvc-vloer, die perfect aansluit bij de donkere frontjes van de keuken. De keuken is uitgerust met een grote koelkast, een vaatwasser, een oven, een inductiekookplaat, een bijpassende design afzuigkap en veel opbergmogelijkheden. Vanuit de keuken loop je door naar de bijkeuken, met de aansluitingen voor de wasmachine en droger, binnendoor naar de garage en een loopdeur naar de tuin.
1e Verdieping
Vanaf de overloop heb je toegang tot 3 slaapkamers, de badkamer en de trapopgang naar zolder. Alle slaapkamers zijn ruim van formaat en strak afgewerkt met spachtelputz (overloop en grote slaapkamer) of glasvlies behang (2e en 3e slaapkamer). De doorgelegde parketvloer zorgt voor een rustige, luxe uitstraling. De badkamer is voorzien van antraciet vloertegels en een combinatie van witte en groene wandtegels, wat een stijlvol geheel oplevert. Verder vind je hier een zwevend toilet, wastafelmeubel met waskom, een douchecabine met regen- en handdouche en een radiator.
2e Verdieping
Via de vaste trap bereik je de ruime zolder. Deze grote open ruimte biedt volop mogelijkheden. Een 4e slaapkamer is eenvoudig te realiseren. Verder vind je hier de opstelling van de cv-installatie, de mv-unit en dankzij het grote dakraam is het er prettig licht.
Tuin
De tuin is bereikbaar via de schuifpui vanuit de eethoek, via de bijkeuken of middels de achterom langs de garage. Aan de achtergevel tref je de overkapping met lichtdoorlatend dak, waardoor er geen licht wordt weggenomen in de woning. De tuin is riant van formaat en biedt altijd wel een plekje in de zon. Achter in de tuin ligt een terras met houten vlonders en bevindt zich de berging, handig voor bijvoorbeeld de tuinkussens. Via staptegels op de grindpaden wandel je door de tuin, omringd door gras en een plantenbak met vaste beplanting.
Bijzonderheden:
* Deze woning heeft energielabel B
* Op steenworpafstand van het Swifterbos gelegen
* Instapklare, royale 2-onder-1-kap woning
* Visgraat PVC-vloer over de gehele begane grond
* 3 Ruime slaapkamers met de mogelijkheid tot een 4e
* Aanvaarding in overleg