Let op: genoemde prijs betreft een "bieden vanaf" prijs.
Een echte verrassing, dat is deze garage geschakelde woning op een prachtige locatie. Deze sfeervolle woning beschikt over een uitbouw van maar liefst 4 meter, een praktische bijkeuken, 3 comfortabele slaapkamers en een royale tuin. Bovendien woon je hier op een fijne, vrije locatie met uitsluitend bestemmingsverkeer. Voor kinderen zijn er volop speelmogelijkheden in de aangrenzende groenstrook. Belangrijke voorzieningen zoals scholen, een buurtwinkelcentrum, het gezondheidscentrum en het centrum van Dronten bevinden zich op korte afstand!
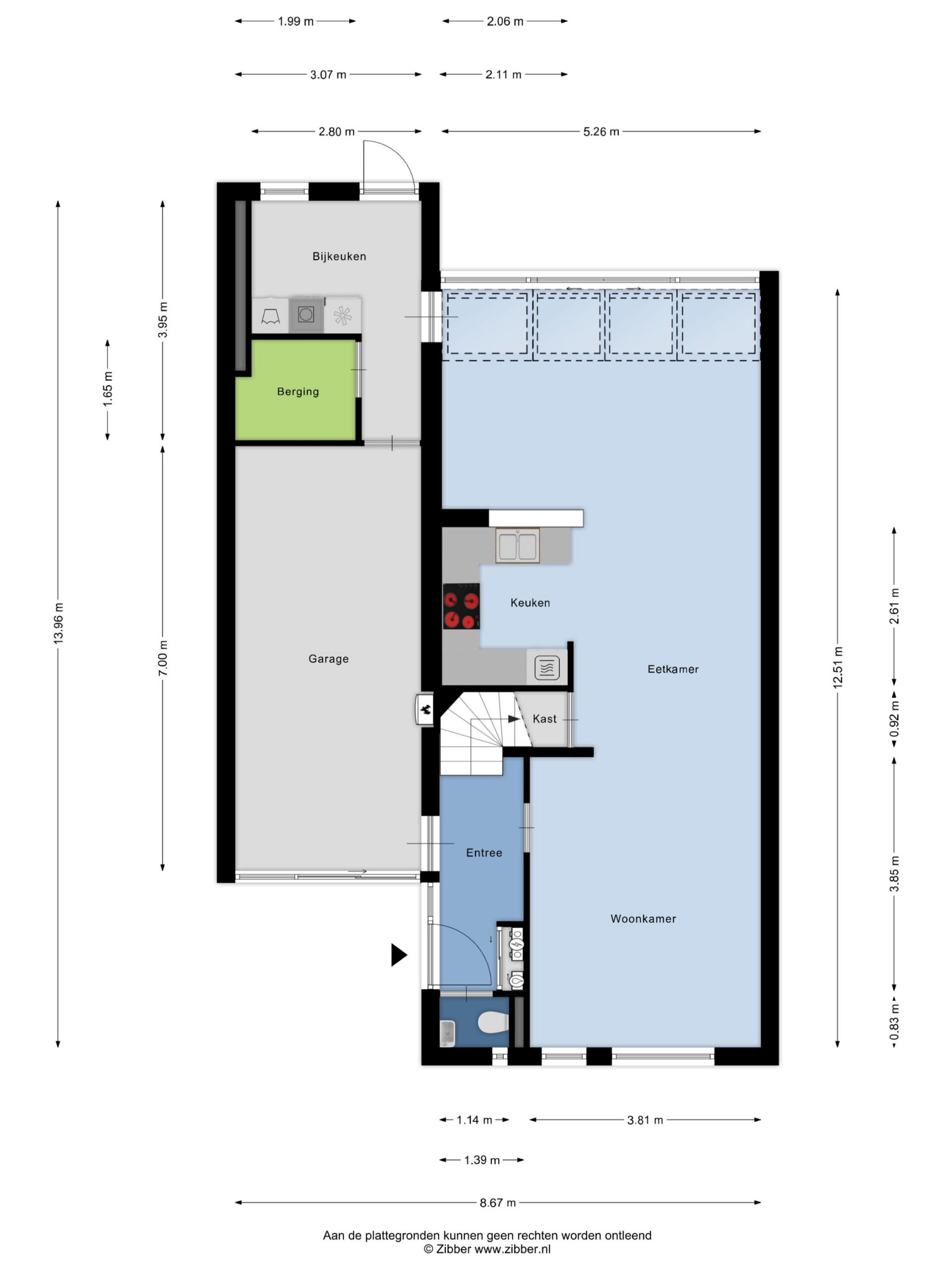
Indeling:
Begane grond:
Bij binnenkomst kom je in de hal, waar zich de meterkast, een praktische...
Let op: genoemde prijs betreft een "bieden vanaf" prijs.
Een echte verrassing, dat is deze garage geschakelde woning op een prachtige locatie. Deze sfeervolle woning beschikt over een uitbouw van maar liefst 4 meter, een praktische bijkeuken, 3 comfortabele slaapkamers en een royale tuin. Bovendien woon je hier op een fijne, vrije locatie met uitsluitend bestemmingsverkeer. Voor kinderen zijn er volop speelmogelijkheden in de aangrenzende groenstrook. Belangrijke voorzieningen zoals scholen, een buurtwinkelcentrum, het gezondheidscentrum en het centrum van Dronten bevinden zich op korte afstand!
Indeling:
Begane grond:
Bij binnenkomst kom je in de hal, waar zich de meterkast, een praktische schoenenkast en de doorgang naar de garage bevinden. Vanuit de hal heb je tevens toegang tot de trapopgang naar de verdieping, de toegang tot de woonkamer en de toiletruimte. De toiletruimte is betegeld in een rustige kleurstelling en is voorzien van een zwevend toilet en een fonteintje.
In de hal en toiletruimte ligt fraai keramisch parket met vloerverwarming, wat doorloopt in de gehele woonkamer - zowel comfortabel als praktisch! Vanuit de hal kom je in de woonkamer met de zithoek aan de voorzijde, maar dankzij de prachtige uitbouw aan de achterzijde biedt de woonkamer vele mogelijkheden. De woning is namelijk maar liefst 4 meter uitgebouwd. De uitbouw heeft veel glas, wat gedurende het gehele jaar veel licht in de woning brengt. Ook zorgt de brede schuifpui ervoor dat woning en tuin met elkaar in verbinding staan. Dankzij deze prachtige extra ruimte kies je hier zelf welke indeling jou het beste past. Aan de straatzijde kijk je vrij weg, aan de achterzijde geniet je in alle rust van de tuin. De wanden zijn afgewerkt met spachtelputz.
De keuken bevindt zich halverwege de woning en is opgesteld in een U-vorm. De keuken is voorzien van diverse inbouwapparatuur zoals een koelkast, een vriezer, een combimagnetron, een 4-pits inductiekookplaat en een RVS-afzuigschouw.
Dankzij de uitbouw heeft de woning daarnaast een functionele bijkeuken. Deze is voorzien van een tegelvloer en betegelde wanden, inbouwspots, een grote voorraadkast en de aansluitingen voor de was apparatuur.
Vanuit de bijkeuken heb je toegang tot zowel de tuin als de garage. In de garage bevinden zich de cv-installatie en voorzieningen als een geïsoleerde betonvloer, elektra en een grote schuifwandkast. De geïsoleerde garagedeur naar de oprit schuif je gemakkelijk opzij, waardoor je de fiets en andere spullen hier gemakkelijk binnen plaatst.
1e Verdieping:
Vanaf de overloop zijn de 3 slaapkamers, de badkamer en de inloopkast bereikbaar. Twee slaapkamers bevinden zich aan de voorzijde en bieden daarmee prachtig vrij uitzicht. De slaapkamers bieden alle 3 voldoende ruimte voor een bed en kledingkast en zijn voorzien van een laminaatvloer. De in 2021 volledig vernieuwde badkamer is van vloer tot plafond betegeld met een stijlvolle combinatie van grijze en witte tegels. De badkamer is uitgerust met een inloopdouche met hand- en regendouche, een brede wastafel met meubel, een spiegel met infraroodverwarming, een extra wandkast, een tweede zwevend toilet, elektrische vloerverwarming en inbouwspots.
Vliering:
Op de overloop van de eerste verdieping vind je een luik met vlizotrap, waarmee je gemakkelijk toegang krijgt tot de ruime bergzolder. Je treft hier verder de mechanische ventilatie-unit en een dakraam.
Tuin:
Dankzij de lage omliggende bebouwing zit je hier heerlijk vrij. De tuin is onderhoudsarm aangelegd en je creëert hier gemakkelijk meerdere zitjes waardoor je altijd wel een plekje in de zon weet te vinden.
Bijzonderheden:
* Deze woning heeft energielabel B
* Keurig onderhouden, ruime woning op een fijne locatie
* Met maar liefst 4 meter uitgebouwd
* Dakgoten en boeien vernieuwd in 2023
* Schilderwerk uitgevoerd in 2024
* Dichtbij praktische voorzieningen
* Aanvaarding in overleg
* Verkopende makelaar: De Makelaars van 5VOOR12 of neem je eigen NVM aankoopmakelaar mee!