Let op: genoemde prijs betreft een “bieden vanaf prijs”.
Wonen met vrij uitzicht op openbaar groen? Bekijk dan deze ruime, geschakelde 2-onder-1-kapwoning in “De Kruidenwijk”! De woning is keurig onderhouden, instap-klaar en biedt vele plussen zoals royale leefruimtes, praktische bijkeuken, garage, 3 slaapkamers, een recent geplaatste cv-installatie en 8 zonnepanelen. Voor kinderen zijn er volop speelmogelijkheden in de nabije omgeving en overige belangrijke voorzieningen zoals scholen, het buurtwinkelcentrum, het gezondheidscentrum en het centrum van Dronten zijn op korte afstand bereikbaar.
Indeling
Begane grond
Parkeer je auto gemakkelijk op eigen terrein en stap via de overdekte entree de...
Let op: genoemde prijs betreft een “bieden vanaf prijs”.
Wonen met vrij uitzicht op openbaar groen? Bekijk dan deze ruime, geschakelde 2-onder-1-kapwoning in “De Kruidenwijk”! De woning is keurig onderhouden, instap-klaar en biedt vele plussen zoals royale leefruimtes, praktische bijkeuken, garage, 3 slaapkamers, een recent geplaatste cv-installatie en 8 zonnepanelen. Voor kinderen zijn er volop speelmogelijkheden in de nabije omgeving en overige belangrijke voorzieningen zoals scholen, het buurtwinkelcentrum, het gezondheidscentrum en het centrum van Dronten zijn op korte afstand bereikbaar.
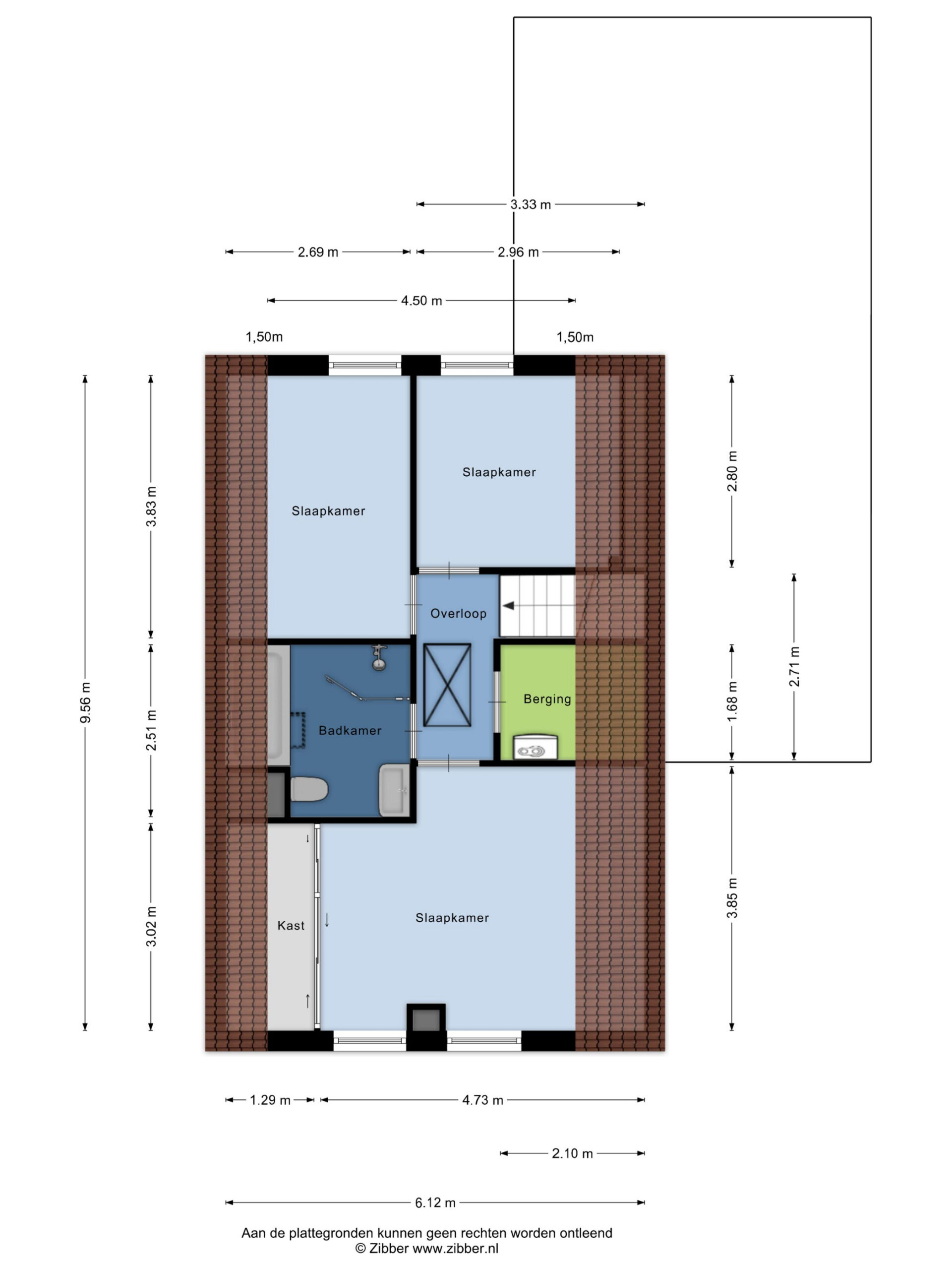
Indeling
Begane grond
Parkeer je auto gemakkelijk op eigen terrein en stap via de overdekte entree de ruime hal binnen. Hier tref je de meterkast (3-fase aansluiting, voorbereid voor een laadpaal en warmtepomp), de trapopgang, toegang tot de woonkamer en de toiletruimte. De toiletruimte is volledig betegeld met antracietkleurige tegels, een zwevend toilet en een fonteintje. Je betreedt de ruime woonkamer in het midden van de woning, met aan de straatzijde de zithoek. Wat direct opvalt is het vrije uitzicht: dankzij de grote ramen en de ligging aan openbaar groen zit je hier heerlijk rustig en vrij! De houten vloer in combinatie met de gashaard zorgt voor een warme en sfeervolle uitstraling. Aan de tuinzijde bevindt zich de eethoek, waar met gemak een riante eettafel geplaatst kan worden. Dankzij de openslaande deuren sta je hier in directe verbinding met de tuin. Aansluitend tref je de open keuken, opgesteld in een U-vorm, wat zorgt voor veel werkruimte. De bar maakt het geheel extra gezellig: zo kunnen vrienden en familie aansluiten bij het koken. De aanwezige inbouwapparatuur betreft een vaatwasser, een spoelbak met Quooker, een inductiekookplaat met afzuigschouw, een koelkast en een combimagnetron. Aansluitend tref je nog een fijne extra van deze woning: de bijkeuken! Dankzij de grote vaste kast is hier volop bergruimte aanwezig en je treft hier ook de aansluiting voor de wasmachine. Vanuit de bijkeuken heb je toegang tot zowel de tuin als de garage. De garage is uitgerust met openslaande deuren naar de oprit, elektra en water.
1e Verdieping
Vanaf de overloop heb je toegang tot 3 slaapkamers, de badkamer, de vlizotrap en de technische ruimte. Dankzij zijn maatvoering kun je extra spullen zoals de stofzuiger of voorraad opslaan. In deze ruimte bevindt zich ook de cv-installatie (2024). De slaapkamers zijn stuk voor stuk ruim en voorzien van vernieuwde binnendeuren, rolluiken en een doorgelegde laminaatvloer, wat zorgt voor een rustige uitstraling. De badkamer is in 2024 uitgebreid en gerenoveerd. Er is een ligbad geplaatst en rondom opnieuw betegeld met antracietkleurige tegels. Verder is de badkamer voorzien van een inloopdouche met regen- en handdouche inclusief inklapbare stoel, een zwevend toilet, een wastafelmeubel en een designradiator.
Vliering
Extra opbergruimte nodig? De vliering biedt volop ruimte voor het opbergen van seizoenskleding, koffers of kerstspullen.
Tuin
Stap de verzorgde, groene tuin in die net als de voorzijde vrij is gelegen! Aan de woningzijde bevindt zich een ruim terras waar je heerlijk kunt tafelen. De tuin is verder aangelegd met vaste beplanting, een groene erfafscheiding en gras. Aangrenzend aan de garage is nog een berging aanwezig: ideaal voor het opslaan van tuingereedschap.
Bijzonderheden:
* Deze woning heeft energielabel A
* Vernieuwde cv-ketel (2024)
* Voorzien van 8 zonnepanelen
* Prachtige ligging aan openbaar groen
* Aanvaarding in overleg