Let op: genoemde prijs betreft een “bieden vanaf prijs”.
Droom jij van een moderne woning met fijne leefruimtes, een prettige sfeer en een mooie locatie? Dan zou dit zomaar eens jouw nieuwe thuis kunnen zijn! Je parkeert je auto op eigen terrein, geniet van de zon in de tuin op het zuiden en hebt 3 slaapkamers tot je beschikking met mogelijkheid tot een 4e op de zolderverdieping. De woning is gelegen in “Hof van Fleur”, een kindvriendelijke woonomgeving met veel groen en zelfs een eigen buurtschuur. Op loopafstand tref je het Wisentbos en voorzieningen zoals scholen, winkels en een gezondheidscentrum.
Indeling:
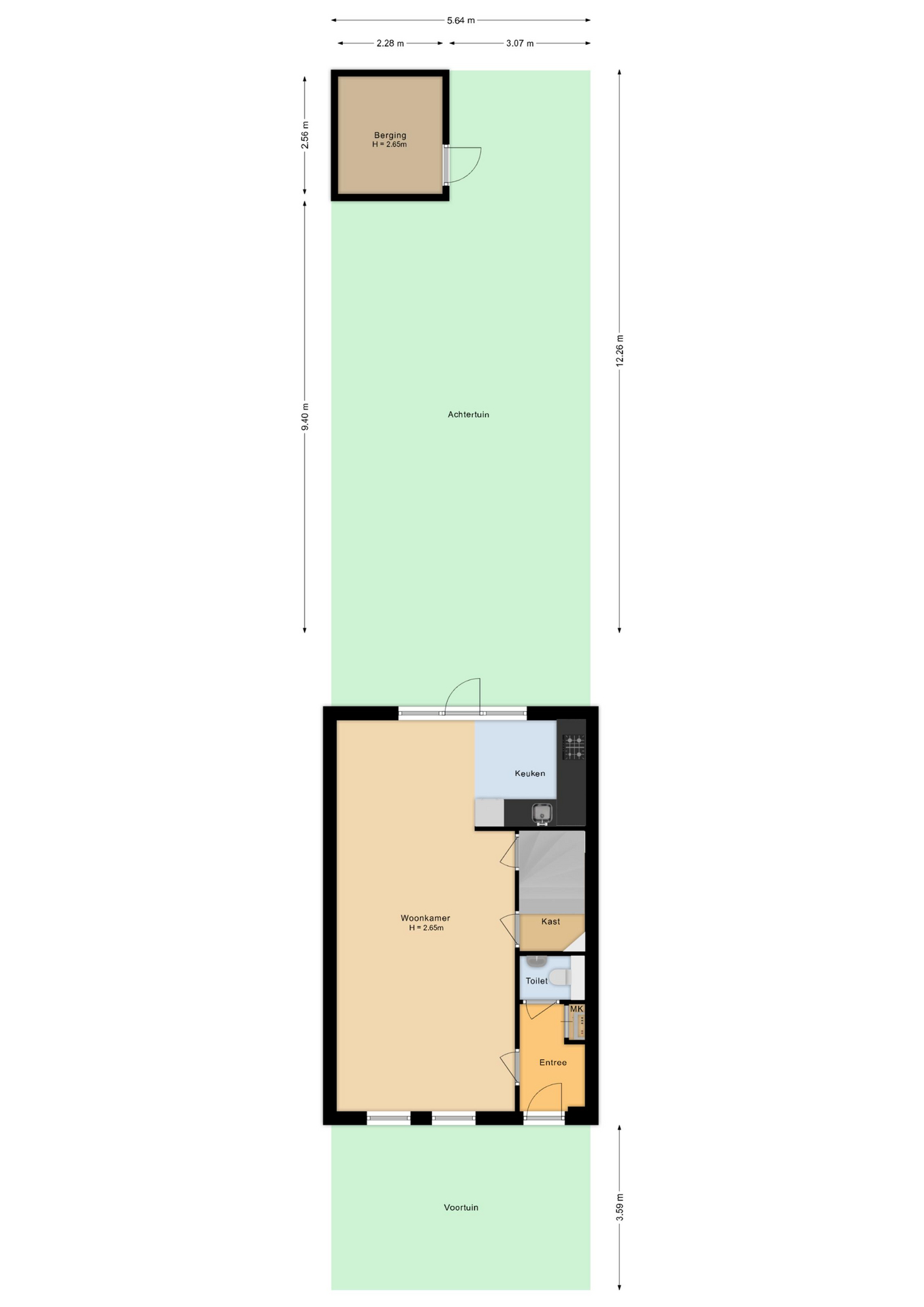
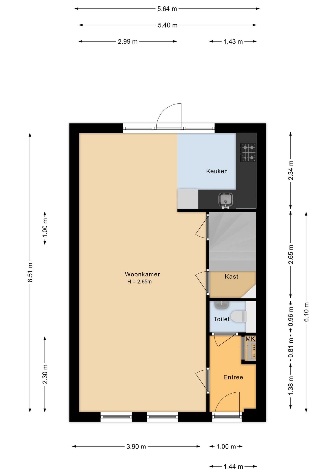
Begane grond:
Binnenkomst in de hal met de meterkast, de toegang tot de woonkamer en...
Let op: genoemde prijs betreft een “bieden vanaf prijs”.
Droom jij van een moderne woning met fijne leefruimtes, een prettige sfeer en een mooie locatie? Dan zou dit zomaar eens jouw nieuwe thuis kunnen zijn! Je parkeert je auto op eigen terrein, geniet van de zon in de tuin op het zuiden en hebt 3 slaapkamers tot je beschikking met mogelijkheid tot een 4e op de zolderverdieping. De woning is gelegen in “Hof van Fleur”, een kindvriendelijke woonomgeving met veel groen en zelfs een eigen buurtschuur. Op loopafstand tref je het Wisentbos en voorzieningen zoals scholen, winkels en een gezondheidscentrum.
Indeling:
Begane grond:
Binnenkomst in de hal met de meterkast, de toegang tot de woonkamer en de toiletruimte. De toiletruimte is betegeld in een moderne kleurstelling en is voorzien van een zwevend toilet en een fonteintje. Bij binnenkomst in de ruime en lichte woonkamer ervaar je meteen volop mogelijkheden om het helemaal naar eigen wens in te delen. Dankzij de nette laminaatvloer met V-groef (voorzien van comfortabele vloerverwarming) en strakke renovlies wandafwerking hoef je aan de afwerking niets meer te doen! Vanuit de zithoek kijk je uit over de voorgelegen groenstrook met speelgelegenheid voor de kinderen. Geen auto’s voor de deur dus! Zittend aan de eettafel kijk je uit over de tuin en vanuit hier heb je daar tevens toegang toe middels een deur (voorzien van plisséhor). De in een hoek opgestelde Bruynzeel keuken is praktisch én mooi om te zien: uitgevoerd in tijdloze en moderne kleuren en met een verhoogd aanrechtblad. Je beschikt over een le Mans hoekkast en ATAG inbouwapparatuur zoals een koelkast, een vaatwasser, een combimagnetron, een 4-pits gaskookplaat en een RVS-afzuigschouw. Halverwege de woonkamer tref je de praktische trapkast en de afgesloten trapopgang naar de 1e verdieping.
1e Verdieping:
Vanaf de overloop zijn de 3 slaapkamers, de zolderverdieping middels een vaste trap en de badkamer bereikbaar. De grootste slaapkamer, die aan de voorzijde van de woning is gesitueerd, beschikt over speelse raampartijen tot aan de grond. De andere 2 slaapkamers zijn aan de achterzijde van de woning gelegen. Alle kamers beschikken over horren. De overloop en de 3 slaapkamers zijn voorzien van een laminaatvloer. De ruime badkamer is betegeld in een rustige kleurstelling en is ingericht met een inloopdouche met glaswand, een tweede zwevend toilet, een wandkast en een wastafel met planchet en spiegel.
2e Verdieping:
Maak gebruik van de vaste trap en je bereikt de zolderverdieping, die op dit moment is ingericht als 1 grote, open ruimte waar je nog alle kanten mee op kunt. Achter de knieschotten kun je gebruik maken van extra bergruimte en verder tref je op deze verdieping de opstelling voor de cv-installatie, de omvormer voor de zonnepanelen, de mv-unit, de opstelling voor de wasapparatuur, een dakraam en een laminaatvloer.
Tuin:
In deze tuin is het de hele dag door heerlijk toeven! De tuin is namelijk op het zuiden gesitueerd, waardoor je al bijtijds de zon in de tuin zult ervaren. Op de warme dagen van het jaar maak je met een druk op de knop gebruik van het elektrische zonnescherm, die het ook binnenshuis lekker koel houdt. De tuin is sfeervol aangelegd met beplanting, bestrating en een stukje gras. Achter in de tuin parkeer je je auto op eigen terrein en heb je beschikking over een houten berging, die voorzien is van elektra.
Bijzonderheden:
* Deze woning heeft energielabel A+
* Bij deze woning is een beheervereniging van toepassing voor de gemeenschappelijke gronden en de buurtschuur. De maandelijkse bijdrage bedraagt € 37,-
* Nette, instapklare tussenwoning
* Schilderwerk buitenzijde uitgevoerd in 2024
* Parkeren op eigen terrein
* Deze woning beschikt over 5 zonnepanelen
* Aanvaarding in overleg