Deze keurig onderhouden en sfeervolle tussenwoning wacht op jou! Aan de voorzijde geniet je van een groenstrook met vrij uitzicht en aan de achterzijde vind je volop parkeergelegenheid. Daarbij beschikt de woning over een royale tuin en is de afgelopen jaren vrijwel alles vernieuwd, waardoor je hier instapklaar kunt wonen. Voorzieningen? Het winkelcentrum van Dronten-Zuid, scholen en gezondheidscentra liggen allemaal op loopafstand.
INDELING
Begane grond:
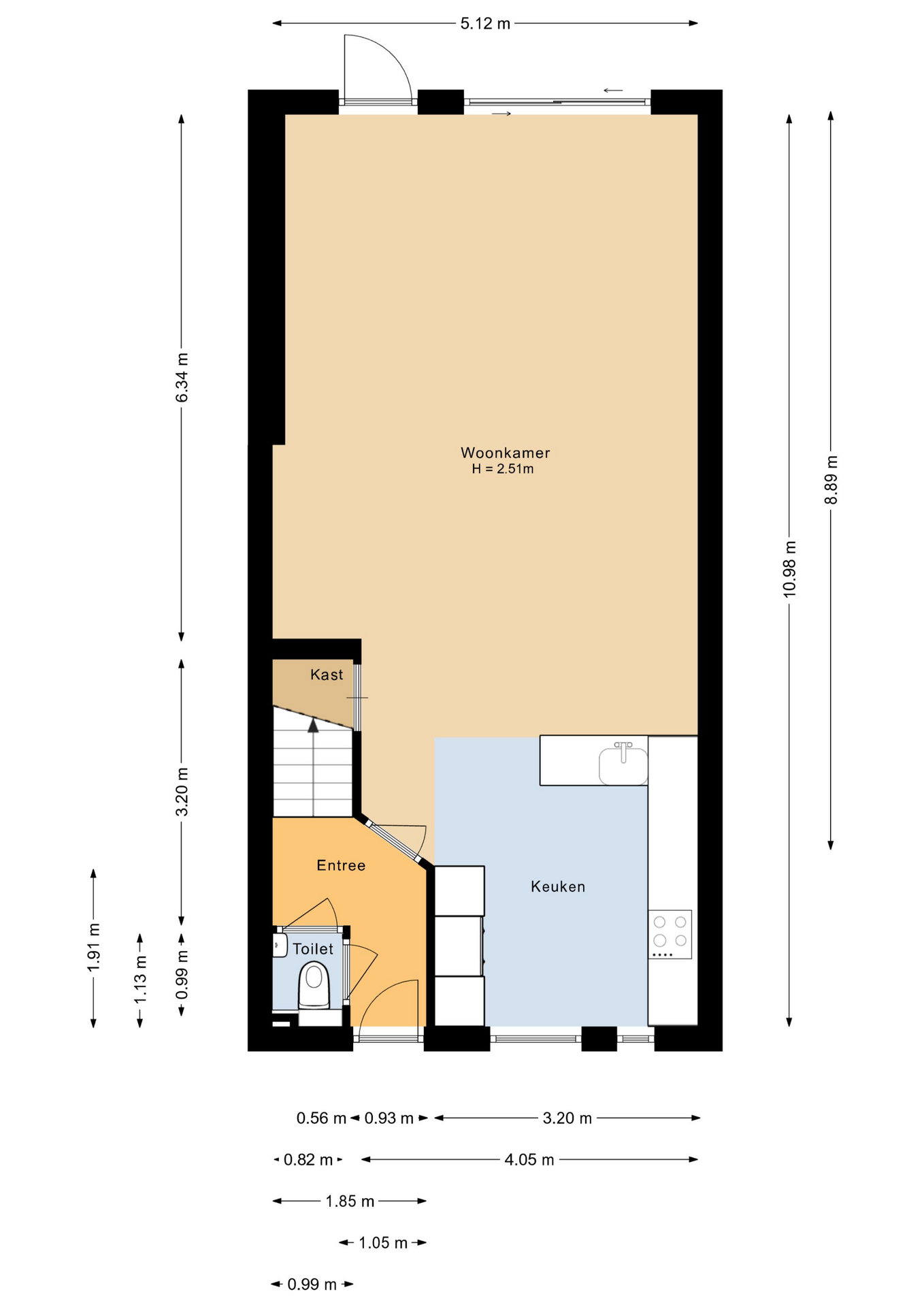
Bij binnenkomst in de hal merk je meteen hoe netjes deze woning is onderhouden en gerenoveerd dankzij de strakke afwerking. Vanuit hier heb je toegang tot de meterkast, de trapopgang, de woonkamer en het toilet. De toiletruimte is...
Deze keurig onderhouden en sfeervolle tussenwoning wacht op jou! Aan de voorzijde geniet je van een groenstrook met vrij uitzicht en aan de achterzijde vind je volop parkeergelegenheid. Daarbij beschikt de woning over een royale tuin en is de afgelopen jaren vrijwel alles vernieuwd, waardoor je hier instapklaar kunt wonen. Voorzieningen? Het winkelcentrum van Dronten-Zuid, scholen en gezondheidscentra liggen allemaal op loopafstand.
INDELING
Begane grond:
Bij binnenkomst in de hal merk je meteen hoe netjes deze woning is onderhouden en gerenoveerd dankzij de strakke afwerking. Vanuit hier heb je toegang tot de meterkast, de trapopgang, de woonkamer en het toilet. De toiletruimte is volledig betegeld in wit en antraciet, voorzien van een fonteintje en een zwevend toilet dat extra stil doorspoelt; een leuk detail!
Stap de royale woonkamer binnen, die dankzij de uitbouw extra ruim is geworden. Hier plaats je met gemak een riante zithoek. De schuifpui laat veel natuurlijk licht binnen en geeft toegang tot de tuin. Liever via de loopdeur naar buiten omdat dat beter in je indeling past? Ook dat kan. Naast de woonkamer is er volop ruimte voor een eettafel, perfect om met vrienden of familie gezellig te tafelen. Extra handig is de trapkast: nu ingericht als garderobe, maar ook ideaal als voorraadkast of opbergruimte. Ook de keuken mag er zeker zijn. Deze heeft een grote kastenwand en daar tegenover een royale L-opstelling met bar, waardoor je heerlijk aansluit als iemand aan het koken is of in de ochtend rustig van je ontbijt kunt genieten. In de kastenwand vind je de koelkast, vriezer, combimagnetron en oven. Aan de andere zijde tref je de spoelbak, een 4-pits inductiekookplaat, een rvs-afzuigschouw en een vaatwasser. De combinatie van witte fronten en een houtlook werkblad sluit perfect aan bij de pvc-vloer die door de hele begane grond is gelegd.
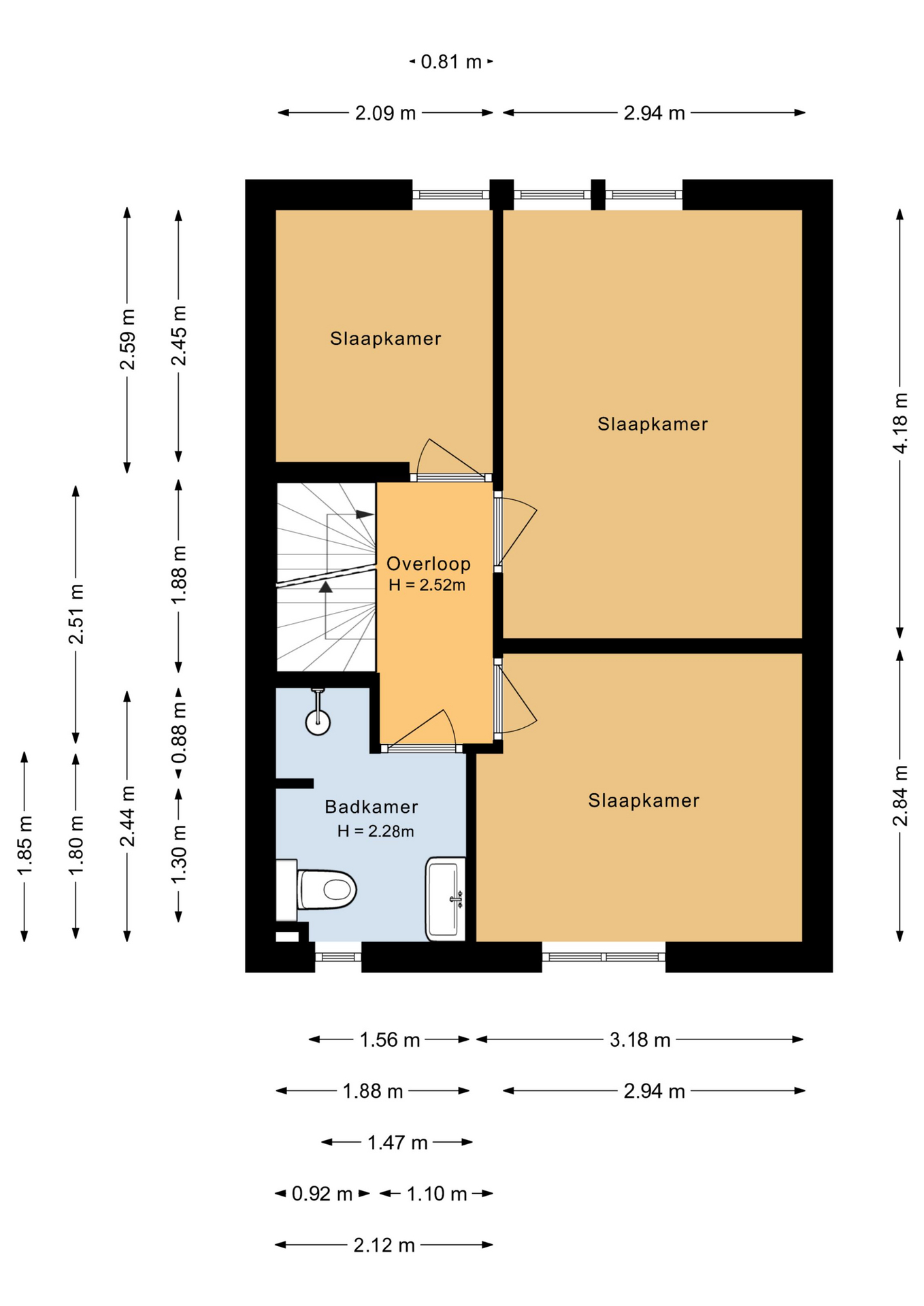
1e Verdieping:
Via de gestoffeerde trap kom je op de overloop die toegang biedt tot de drie slaapkamers en de badkamer. Twee slaapkamers liggen aan de achterzijde en de derde aan de voorzijde van de woning. Alle kamers zijn voorzien van een vinyl vloer en behang, en de kunststof draai-/kiepramen zorgen voor veel licht. De badkamer is in 2021 vernieuwd en modern uitgevoerd. Je vindt hier een inloopdouche met regen- en handdouche, een zwevend toilet(ook deze spoelt extra stil door, handig voor in de nachten), wastafelmeubel met spiegel en verlichting en een designradiator.
2e Verdieping:
De vaste trap brengt je naar de royale en keurig afgewerkte zolder. Dankzij de dakopbouw is dit een volwaardige verdieping geworden en momenteel in gebruik als vierde slaapkamer en kantoor. Verder is er volop bergruimte achter de knieschotten en tref je hier de omvormer voor de zonnepanelen en de mechanische ventilatie. In de aparte afgesloten ruimte staan de cv-installatie en de wasmachine-aansluiting, zelfs hier is een dakraam aanwezig.
Tuin:
De tuin is netjes onderhouden en biedt terrassen aan zowel de voor- als achterzijde. Zo kies je zelf of je liever in de zon of in de schaduw zit. Verder is de tuin aangelegd met vaste beplanting, gras en bestrating. Achterin staat een ruime berging met overkapping, ideaal om bijvoorbeeld de containers uit het zicht te plaatsen. Via de achterom kom je op de parkeerplaats terecht waar je gemakkelijk je auto parkeert.
Bijzonderheden:
* Deze woning heeft energielabel A
* Dankzij de uitbouw een royale woonkamer
* Modern en keurig onderhouden woning
* Voorzien van 10 zonnepanelen
* Aanvaarding in overleg