Let op: genoemde prijs betreft een “bieden vanaf prijs”.
Ben jij op zoek naar een gasloze woning die klaar is voor de toekomst, heerlijk licht is én veel ruimte heeft? Dan zou deze vrijstaande woning weleens precies kunnen zijn wat je zoekt! Deze keurige woning heeft 4 slaapkamers, een ruim kantoor op de begane grond, een woonkeuken, een verzorgde tuin en een praktische bijkeuken. Op het dak liggen maar liefst 46 zonnepanelen en de woning wordt verwarmd middels een warmtepomp. De woning is heerlijk vrij gelegen en uitvalswegen richting nabijgelegen plaatsen zijn op steenworpafstand bereikbaar. Ben jij klaar voor de volgende stap? We zien je graag!
Indeling:
Begane grond:
De woning is gelegen aan...
Let op: genoemde prijs betreft een “bieden vanaf prijs”.
Ben jij op zoek naar een gasloze woning die klaar is voor de toekomst, heerlijk licht is én veel ruimte heeft? Dan zou deze vrijstaande woning weleens precies kunnen zijn wat je zoekt! Deze keurige woning heeft 4 slaapkamers, een ruim kantoor op de begane grond, een woonkeuken, een verzorgde tuin en een praktische bijkeuken. Op het dak liggen maar liefst 46 zonnepanelen en de woning wordt verwarmd middels een warmtepomp. De woning is heerlijk vrij gelegen en uitvalswegen richting nabijgelegen plaatsen zijn op steenworpafstand bereikbaar. Ben jij klaar voor de volgende stap? We zien je graag!
Indeling:
Begane grond:
De woning is gelegen aan het einde van een doodlopende straat, waardoor het lekker rustig is en er enkel bestemmingsverkeer langskomt. Aankomst bij de woning op de ruime oprit, waar je met gemak 2 auto’s parkeert. En rijd je elektrisch? De laadpaal is al aanwezig! Binnenkomst in de hal met de meterkast (3-fase), de trapopgang naar de 1e verdieping, de toegang tot de woonkamer/keuken en de toiletruimte, die is betegeld in een rustige kleurstelling en is voorzien van een zwevend toilet en een fonteintje. Bij binnenkomst in de living is dit het gevoel wat je wilt bij een vrijstaande woning: ruimte en licht! De woonkamer is aan de voorzijde van de woning gelegen en is voorzien van een ingebouwde, elektrische haard en een mooie pvc-vloer met vloerverwarming, die overigens op de gehele begane grond aanwezig is. Ter plaatse van de eethoek zet je met gemak een royale eettafel neer, met plek voor het hele gezin, familie en vrienden. Vanuit de eethoek loop je via dubbele openslaande tuindeuren (met hordeuren) zo het terras op. De open woonkeuken biedt veel werkruimte (mede dankzij het kookeiland) en beschikt over inbouwapparatuur zoals een koelkast, een stoomoven (2025), een vaatwasser, een inductiekookplaat en een afzuigschouw (2025). Aansluitend aan de keuken is de praktische bijkeuken bereikbaar, waar je een keukenblokje met gootsteen, een vaste kast, een deur naar de tuin en de toegang tot het kantoor treft. Dit is nog eens een fijne thuiswerkplek of hobbyruimte! Ook hier tref je een deur naar de tuin, vloerverwarming, de warmtepomp en de toegang tot de handige berging. Deze berging beschikt over de aansluitingen voor de was- en droogapparatuur, het buffervat, de waterontharder en dubbele deuren naar de oprit.
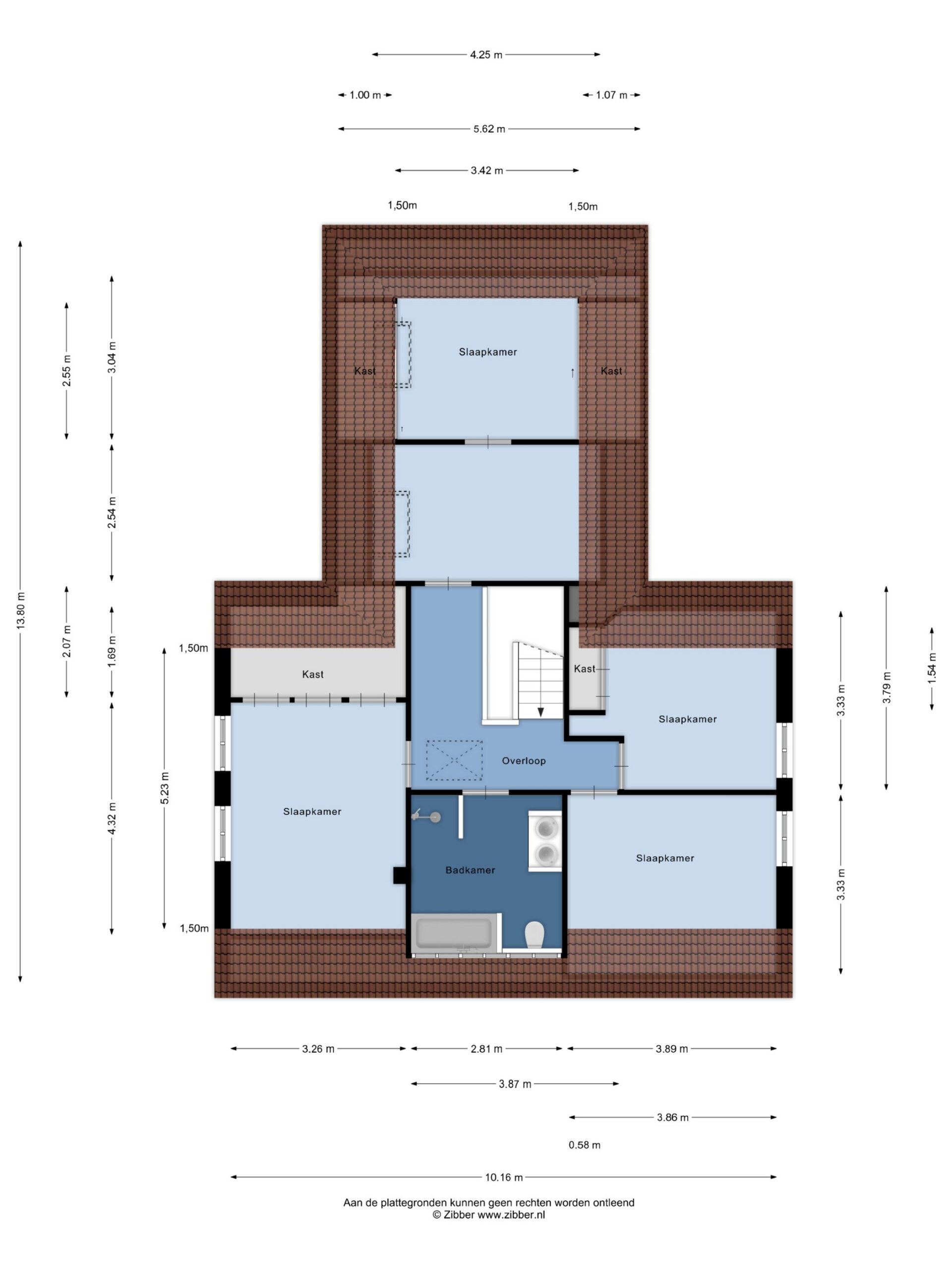
1e Verdieping:
Vanaf de overloop heb je toegang tot de 4 slaapkamers, de badkamer en de vliering middels het luik met vlizotrap. De slaapkamers zijn stuk voor stuk lekker ruim en de houten vloer die hier overal aanwezig is, maken het geheel af. De masterbedroom heeft als extra een aangrenzende inloopkast met volop opbergruimte, wat zorgt voor een rustige en opgeruimde uitstraling. De badkamer is van vloer tot plafond betegeld met moderne, grijsgekleurde tegels en is ingericht met een ligbad met jets, een inloopdouche met draingoot, een zwevend toilet, een designradiator en twee wastafels met meubel.
2e Verdieping:
Maak gemakkelijk gebruik van het luik met vlizotrap en je bereikt de vliering, die over de gehele lengte van de woning is gelegen. Deze ruimte leent zich perfect voor het opslaan van extra spullen! Je treft hier verder de omvormers voor de zonnepanelen en de mv-unit.
Tuin:
In deze rondom gelegen tuin is het heerlijk toeven! Neem plaats onder de veranda en plof neer op de comfortabele loungebank. Dankzij 2 heaters kun je al vroeg in het voorjaar buiten zitten. Op de warme dagen van het jaar maak je gemakkelijk gebruik van het elektrisch bedienbare zonnescherm. En met de afstandsbediening laat je de windscreens naar benden zakken om lekker in de luwte te zitten als het waait. De tuin is groen en toch onderhoudsarm aangelegd, waardoor je ook tijd overhoudt om te genieten van de rust en etentjes met familie en vrienden. Achter in de tuin bevindt zich een ruime, houten berging die is voorzien van elektra en verder bestaat de aanleg van de tuin uit gras, recent gelegde tegels en beplanting.
Bijzonderheden:
* Deze woning heeft energielabel A+
* Gasloze woning met warmtepomp en zonnepanelen
* Keurige staat van onderhoud: instap klaar!
* Schilderwerk 2025
* Begane grond in 2025 voorzien van een nieuwe PVC vloer in combinatie met comfortabele vloerverwarming
* Gelegen op een mooi plekje aan een doodlopende straat
* Terrastegels achtertuin 2024 vernieuwd
* Veranda voorzien van 2 heaters
* De woning is tegen inbraak beveiligd middels een alarmsysteem met bewegingssensoren voor binnen en voor buiten een systeem met camera’s
* Uitvalswegen op korte afstand bereikbaar
* Aanvaarding in overleg