Let op: genoemde prijs betreft een “bieden vanaf prijs”.
Midden in het centrum van Dronten ligt dit moderne en nette appartement dat perfect is voor degenen die centraal en comfortabel willen wonen. Met ruim 100m² aan woonoppervlak, een nette keuken en badkamer, 2 slaapkamers en een royaal balkon is dit een fijn adres! Voorzieningen zoals winkels, terrassen, het theater en gezondheidscentra zijn op steenworpafstand bereikbaar. Kortom: genoeg reden om dit appartement beter te leren kennen!
Indeling:
Begane grond:
Aankomst bij het complex met binnenkomst in de gemeenschappelijke, verzorgde hal. Hier tref je de brievenbussen, het bellentableau, de lift, de privébergingen en het trappenhuis dat...
Let op: genoemde prijs betreft een “bieden vanaf prijs”.
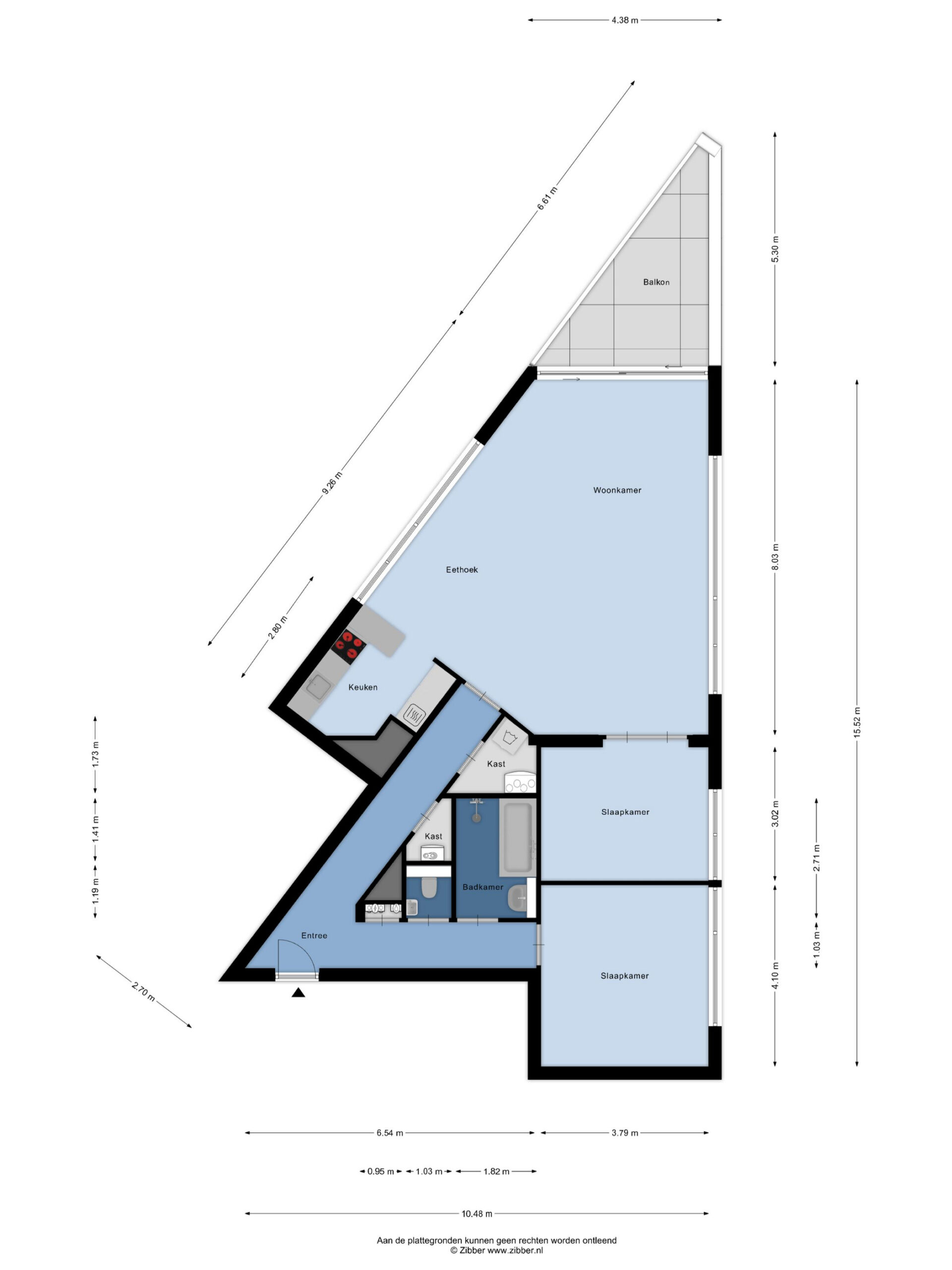
Midden in het centrum van Dronten ligt dit moderne en nette appartement dat perfect is voor degenen die centraal en comfortabel willen wonen. Met ruim 100m² aan woonoppervlak, een nette keuken en badkamer, 2 slaapkamers en een royaal balkon is dit een fijn adres! Voorzieningen zoals winkels, terrassen, het theater en gezondheidscentra zijn op steenworpafstand bereikbaar. Kortom: genoeg reden om dit appartement beter te leren kennen!
Indeling:
Begane grond:
Aankomst bij het complex met binnenkomst in de gemeenschappelijke, verzorgde hal. Hier tref je de brievenbussen, het bellentableau, de lift, de privébergingen en het trappenhuis dat toegang biedt tot de verdiepingen.
1e Verdieping/1e Woonlaag:
Binnenkomst in de ruime hal, die toegang biedt tot alle vertrekken. De toiletruimte is betegeld in een rustige kleurstelling en is voorzien van een zwevend toilet en een fonteintje. De living is ruim, licht en speels ingedeeld. Dankzij de vele raampartijen is er rondom uitzicht en verder tref je hier een nette laminaatvloer, een schuifpui naar het balkon, toegang tot de extra slaap-/werkkamer en meer dan voldoende ruimte voor het plaatsen van verschillende meubels. De keuken is in tijdloze kleuren uitgevoerd en beschikt over inbouwapparatuur zoals een vaatwasser, een koel-vriescombinatie, een inductiekookplaat, een recirculatie afzuigschouw en een combi-magnetron. De slaap-/werkkamer is bereikbaar middels dubbele deuren en biedt alle ruimte voor het plaatsen van een (tweepersoons)bed, kasten of een groot bureau. Waar je deze ruimte ook voor wilt gebruiken, het is mogelijk! De 2 bergingen die vanuit de hal bereikbaar zijn bieden ruimte voor de wasmachine, droger en extra voorraad. Verder tref je hier de WTW-unit en de opstelling van de cv-installatie. De badkamer is van vloer tot plafond betegeld in dezelfde stijl als het separate toilet en is ingericht met een ligbad, een douchehoek, een wastafel met planchet, een spiegel en inbouwspotjes. De grootste slaapkamer beschikt over een nette vloerbedekking en een grote kledingkast (ter overname).
Balkon:
Betreedt het balkon middels de schuifpui in de woonkamer en je wilt hier niet meer weg! Dankzij de centrale ligging is er altijd wel iets te zien en je hebt alle ruimte voor het plaatsen van een comfortabel zitje. Fijne extra: dankzij het glazen scherm zit je hier uit de wind.
Bijzonderheden:
* Dit appartement heeft energielabel A
* Maandelijkse bijdrage Vereniging van Eigenaren € 221,-
* Dit appartement beschikt over een privéberging op de begane grond
* Gelegen op een ideale locatie, midden in het centrum van Dronten
* Aanvaarding in overleg