Let op: genoemde prijs betreft een “bieden vanaf prijs”.
Al lange tijd op zoek naar een fijne ligging, ruimte en een nette afwerking? Dat is vanaf nu verleden tijd! Maak kennis met deze 2-onder-1-kap woning en we verzekeren je dat je verrast zult zijn. Met zijn oprit met ruimte voor in ieder geval 2 auto’s, een vergrote keuken, tuin op het zuidoosten, 8 zonnepanelen (2023), 5 (slaap)kamers en recent vernieuwde badkamer valt er nog weinig te wensen. Tel daar nog de ligging op loopafstand van het kleinschalige winkelcentrum van Dronten-Zuid bij op en het plaatje is compleet. Zien we jou snel aan dit adres?
INDELING
Begane grond:
Binnenkomst in de hal met de trapopgang naar de 1e...
Let op: genoemde prijs betreft een “bieden vanaf prijs”.
Al lange tijd op zoek naar een fijne ligging, ruimte en een nette afwerking? Dat is vanaf nu verleden tijd! Maak kennis met deze 2-onder-1-kap woning en we verzekeren je dat je verrast zult zijn. Met zijn oprit met ruimte voor in ieder geval 2 auto’s, een vergrote keuken, tuin op het zuidoosten, 8 zonnepanelen (2023), 5 (slaap)kamers en recent vernieuwde badkamer valt er nog weinig te wensen. Tel daar nog de ligging op loopafstand van het kleinschalige winkelcentrum van Dronten-Zuid bij op en het plaatje is compleet. Zien we jou snel aan dit adres?
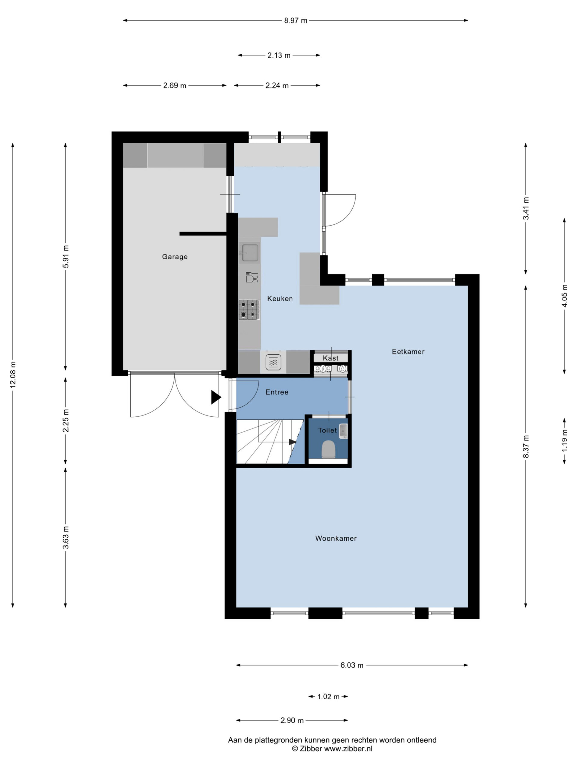
INDELING
Begane grond:
Binnenkomst in de hal met de trapopgang naar de 1e verdieping, de meterkast, de toegang tot de woonkamer/keuken en de toiletruimte, die is betegeld in een rustige kleurstelling en is voorzien van een zwevend toilet en een fonteintje. Bij binnenkomst in de woonkamer valt meteen het vrije uitzicht aan de voorzijde, het vele daglicht en de ruimte op: wat een mogelijkheden om in te richten! De prachtige massief eiken vloer, die is doorgelegd tot in de eethoek, maakt het een sfeervol geheel. Ter plaatse van de eethoek staat op dit moment een eettafel die ruimte biedt voor maar liefst 8 personen, die er met gemak kan staan. Dat zegt genoeg! Doorlopend naar de strakke, tijdloze keuken komt de ruimte die is gecreëerd, door de bijkeuken bij de keuken te trekken, goed tot zijn recht. De aanwezige inbouwapparatuur betreft een 4-pits gaskookplaat, een RVS-afzuigschouw, een vaatwasser, een koelkast, een vriezer en een combimagnetron. Vanuit de keuken bereik je de tuin en de garage middels een loopdeur. De garage is voorzien van een geïsoleerde betonvloer, elektra, een praktisch keukenblok en dubbele deuren naar de oprit.
1e Verdieping:
Vanaf de overloop zijn de 3 slaapkamers, een vaste kast, de badkamer en de vaste trap naar de 2e verdieping bereikbaar. Alle 3 de slaapkamers zijn lekker ruim en goed in te delen met een (tweepersoons)bed en een kledingkast. De in 2024 vernieuwde badkamer is betegeld in natuurtinten en is ingericht met een inloopdouche met een regendouche, inbouwkranen, een glazen wand en draingoot, een wastafel met meubel, een verwarmde spiegel en een zwevend toilet. Fijne extra: de vloer wordt dankzij de aanwezige retourleidingen comfortabel warm!
2e Verdieping:
Neem de vaste trap en je bereikt de voorzolder, waar vanuit je toegang hebt tot de overige 2 (slaap)kamers. Ter plaatse van de voorzolder tref je de aansluitingen voor de was- en droogapparatuur, de opstelling voor de cv-installatie (2023), de WTW-unit (2014), de omvormer voor de zonnepanelen en de mv-unit. Beide (slaap)kamers beschikken over een groot Velux dakraam en een laminaatvloer. Ideaal voor die extra slaap- of werkfunctie!
Tuin:
Klaar? Genieten maar! In deze onderhoudsarme en toch groene tuin op het zuidoosten hoef je niet veel te doen om er volop van te genieten. De tuin is aangelegd met een fijn terras, gras en beplanting. Dankzij de gunstige zonligging geniet je al vroeg op de dag van de eerste zonnestralen. Is het jou overdag toch wat te warm? Dan maak je gemakkelijk gebruik van het elektrisch bedienbare zonnescherm. Achter in de tuin tref je een achterom en een handige, houten berging, die voorzien is van elektra en een buitenkraan.
Bijzonderheden:
* Deze woning heeft energielabel A
* Veel ruimte binnenshuis
* Deze woning beschikt over 8 zonnepanelen (2023)
* Gelegen op een mooi plekje
* Kindvriendelijke buurt, speeltuin bereikbaar via de achterzijde en scholen op loopafstand
* Aanvaarding in overleg