Let op: genoemde prijs betreft een “bieden vanaf prijs”.
Op zoek naar een instapklare woning? Maak dan kennis met deze lichte, modern afgewerkte twee-onder-één-kapwoning in de geliefde wijk “De Gilden”. Deze woning is voorzien van een stijlvolle visgraat PVC-vloer, een sfeervolle erker, openslaande deuren en airconditioning op de begane grond. Op de eerste verdieping is het comfort helemaal compleet: elke slaapkamer is uitgerust met een eigen airco en je vindt er een luxe badkamer. De ligging? Die is werkelijk ideaal! Je beschikt over een ruime oprit, een vrijstaande garage en bent op loopafstand van winkelcentrum Dronten-West.
INDELING
Begane grond:
Parkeer je auto...
Let op: genoemde prijs betreft een “bieden vanaf prijs”.
Op zoek naar een instapklare woning? Maak dan kennis met deze lichte, modern afgewerkte twee-onder-één-kapwoning in de geliefde wijk “De Gilden”. Deze woning is voorzien van een stijlvolle visgraat PVC-vloer, een sfeervolle erker, openslaande deuren en airconditioning op de begane grond. Op de eerste verdieping is het comfort helemaal compleet: elke slaapkamer is uitgerust met een eigen airco en je vindt er een luxe badkamer. De ligging? Die is werkelijk ideaal! Je beschikt over een ruime oprit, een vrijstaande garage en bent op loopafstand van winkelcentrum Dronten-West.
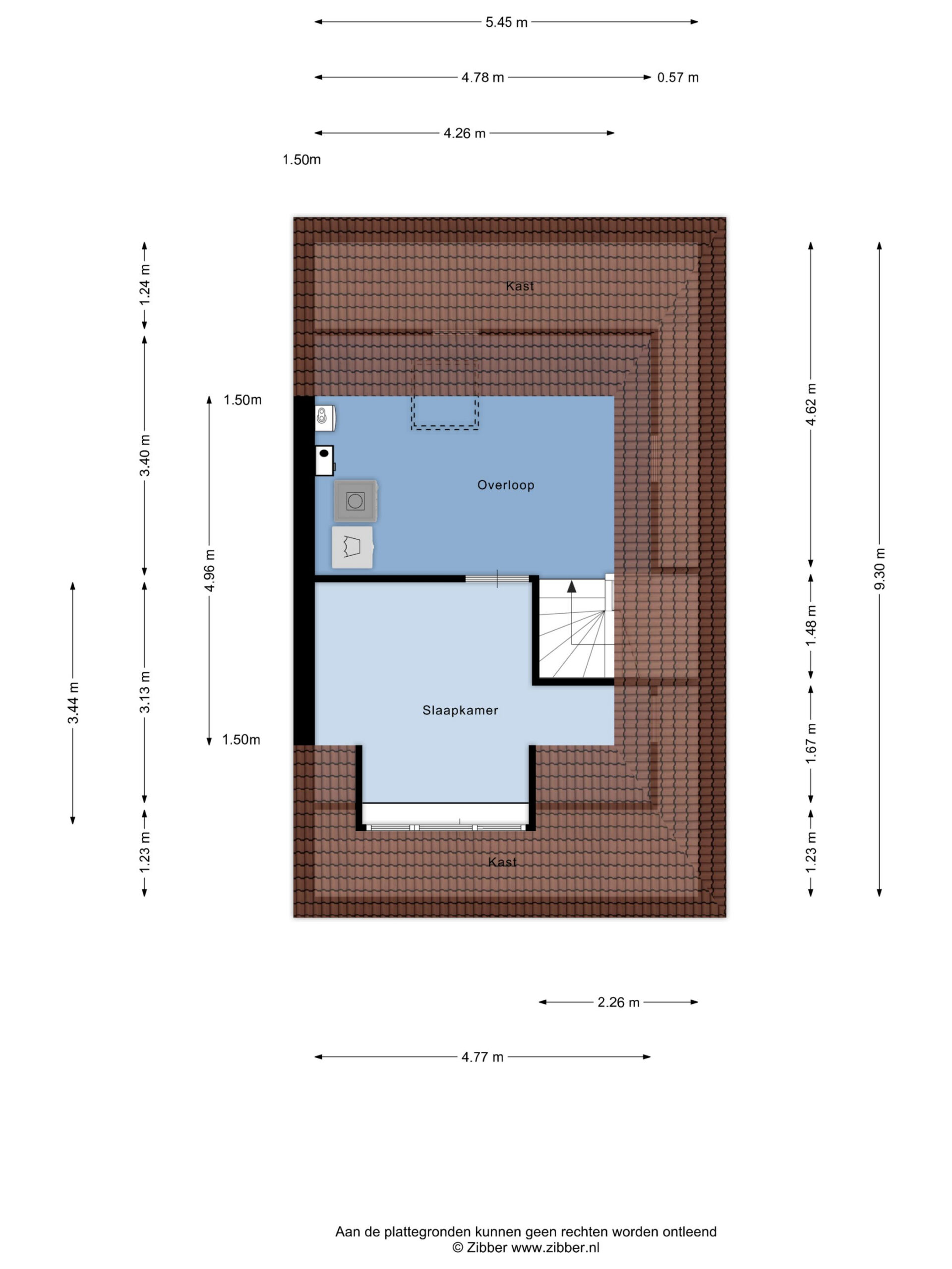
INDELING
Begane grond:
Parkeer je auto op de ruime oprit en stap via de overdekte entree de woning binnen. De hal is royaal opgezet en biedt toegang tot de trapopgang, de meterkast, het toilet, de garderobe en de woonkamer met open keuken. De toiletruimte is modern afgewerkt met een zwevend toilet, fonteintje en strak tegelwerk in wit en antraciet. De visgraat PVC-vloer loopt niet alleen door naar de woonkamer en keuken, maar het pvc loopt zelfs stijlvol door op de open trap wat zorgt voor een rustige uitstraling. Aan de voorzijde van de woning vind je de royale woonkamer. De grote erker zorgt voor veel daglicht en extra ruimte. Een echte blikvanger is de fraai afgewerkte cinewall: perfect voor filmavonden of gewoon om te genieten van een strak en modern interieur. Aan de achterzijde bevindt zich de ruime eethoek, voorzien van airconditioning en openslaande deuren. Aansluitend ligt de open keuken in praktische U-opstelling, uitgerust met een koel-vriescombinatie, combimagnetron, 4-pits inductiekookplaat en een afzuigschouw.
Eerste verdieping:
Via de lichte en ruime overloop bereik je drie slaapkamers, de badkamer en de vaste trap naar de tweede verdieping. De gehele verdieping is afgewerkt met een doorlopende laminaatvloer, wat zorgt voor een rustige en verzorgde uitstraling.
Alle drie de slaapkamers zijn voorzien van airconditioning wat zorgt voor heerlijke koele nachten in de zomer! De badkamer is modern en stijlvol ingericht. Voorzien van antracietkleurige tegels, houtlook meubels, een inloopdouche met zitgedeelte, regen- en handdouche en drie handige nissen voor je douchespullen. Verder beschikt de badkamer over een wastafelmeubel, elektrische designradiator en een zwevend toilet.
Tweede verdieping:
Op de voorzolder vind je de aansluiting voor de wasmachine en droger, de cv-installatie, de omvormer voor de 10 zonnepanelen en de mechanische ventilatie-unit. Achter de knieschotten is volop bergruimte beschikbaar. De vierde slaapkamer is verrassend ruim dankzij de kunststof dakkapel en ideaal als werk- of logeerkamer.
Tuin:
Via de openslaande deuren stap je de onderhoudsvrije tuin in. De tuin is strak aangelegd met antracietkleurige tegels en kunstgras. Zowel aan de voor- als achterzijde is een terras, zodat je altijd kunt kiezen voor zon of schaduw. Achterin de tuin bevindt zich een royale overkapping waar je tot in de late uurtjes heerlijk kunt zitten. De glazen pui kun je volledig openen of juist dichtdoen om de warmte binnen te houden. Via de tuin heb je toegang tot de oprit en de vrijstaande garage, voorzien van elektra en een kanteldeur.
Bijzonderheden:
* Deze woning heeft energielabel A
* 4 slaapkamers
* Alle airco-units kunnen ook verwarmen
* Voorzien van kunststof kozijnen
* Badkamer en keuken vernieuwd in 2021
* Modern afgewerkte woning
* Voorzien van een camerasysteem rondom de woning
* Aanvaarding in overleg