Let op: genoemde prijs betreft een “bieden vanaf prijs”.
Wonen in een duurzame, recent gebouwde woning met voorzieningen zoals een bad- en slaapkamer op de begane grond: dat tref je aan de Timmerliedengilde 58! Deze geschakelde twee-onder-een-kap woning is gelegen in de geliefde wijk ‘’De Gilden’’. De ligging biedt zowel aan de voor- als achterzijde veel vrijheid. Je beschikt verder over een royale tuin en eigen oprit, 2 slaapkamers op de verdieping en veel bergruimte op de zolder. Als kers op de taart is er ook zeker over duurzaamheid nagedacht: de woning beschikt over 10 zonnepanelen!
Indeling:
Begane grond:
Binnenkomst in de hal met de garderobe, de meterkast, de toegang tot de woonkamer...
Let op: genoemde prijs betreft een “bieden vanaf prijs”.
Wonen in een duurzame, recent gebouwde woning met voorzieningen zoals een bad- en slaapkamer op de begane grond: dat tref je aan de Timmerliedengilde 58! Deze geschakelde twee-onder-een-kap woning is gelegen in de geliefde wijk ‘’De Gilden’’. De ligging biedt zowel aan de voor- als achterzijde veel vrijheid. Je beschikt verder over een royale tuin en eigen oprit, 2 slaapkamers op de verdieping en veel bergruimte op de zolder. Als kers op de taart is er ook zeker over duurzaamheid nagedacht: de woning beschikt over 10 zonnepanelen!
Indeling:
Begane grond:
Binnenkomst in de hal met de garderobe, de meterkast, de toegang tot de woonkamer en de toiletruimte. De toiletruimte is betegeld in een rustige kleurstelling en is voorzien van een zwevend toilet en een fonteintje. Bij binnenkomst in de woonkamer is het vele daglicht en het zicht op de groen aangelegde achtertuin hetgeen dat meteen opvalt. Wat een fijne plek is dit! De zithoek is straatgericht, voorzien van ramen tot aan de grond en beschikt over een houten vloer, die tot in de eethoek en de keuken is doorgelegd. Fijne extra: er is een ruime trapkast aanwezig! De keuken is in een rechte opstelling uitgevoerd en beschikt over spotjes en inbouwapparatuur zoals een koelkast, een 4-pits inductiekookplaat, een vlakscherm afzuigkap, een vaatwasser en een combi-oven. De grote schuifpui bij de eethoek zorgt voor fijn zicht op de tuin.
Aansluitend aan de eethoek zijn de bad- en slaapkamer bereikbaar, die beiden een prettig formaat hebben. De badkamer is van vloer tot plafond betegeld en ingericht met een ligbad, een inloopdouche met glazen wand, een designradiator, een wastafel met meubel en een spiegel met verlichting. De slaapkamer is tuingericht en beschikt over grote raampartijen en een vinylvloer.
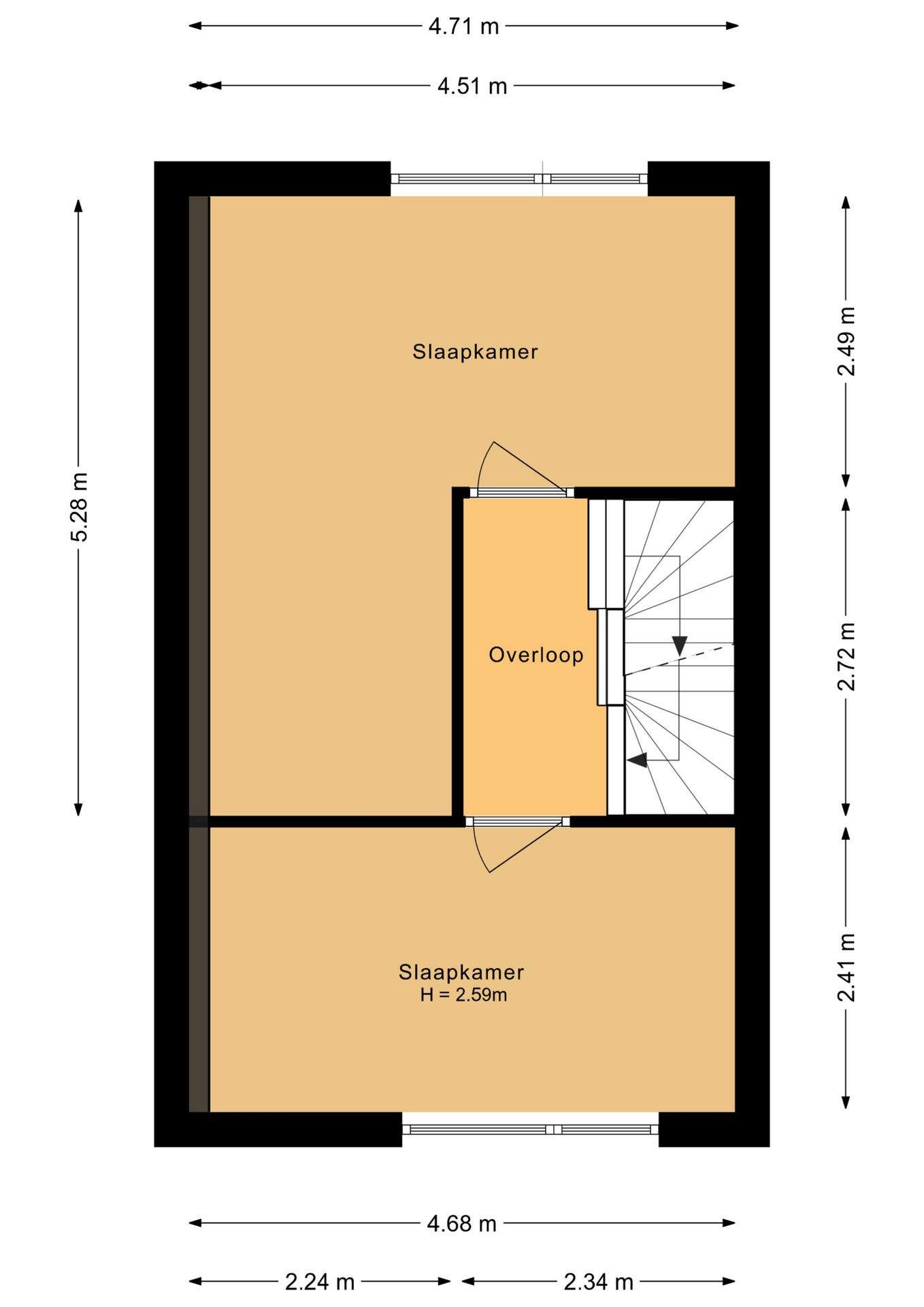
1e Verdieping:
Maak gebruik van de afgesloten trapopgang vanuit de woonkamer en je bereikt de overloop van de 1e verdieping. Vanuit hier zijn de 2 slaapkamers en de trapopgang naar de zolderverdieping bereikbaar. De slaapkamers zijn beiden over de volle breedte van de woning gesitueerd en daardoor zeer ruim. Perfect als logeer- of hobbykamer! Beide slaapkamers en de overloop beschikken over een vinylvloer.
2e Verdieping:
Maak gebruik van de vaste trap en je bereikt de zolderverdieping, die op dit moment ingericht is als 1 grote open ruimte. Dankzij een raam in zowel de voor- als achtergevel beschik je reeds over natuurlijke daglichttoetreding, waardoor je hier gemakkelijk een fijne hobby- of werkplek realiseert. Je treft hier tevens een vinylvloer, de opstelling voor de cv-installatie, de omvormer voor de zonnepanelen, de mv-unit en de aansluitingen voor de was- en droogapparatuur.
Tuin:
In deze diepe, op het noordoosten gesitueerde achtertuin is het volop genieten! Neem plaats in het zonnetje bij de vijver of ontvang familie en vrienden onder het genot van een gezellige barbecue. Er is ruimte genoeg! De tuin is aangelegd met verschillende soorten beplanting, bestrating en achter in de tuin bevindt zich een houten berging (voorzien van elektra) met aansluitend een overkapping voor de fietsen en de containers. Even de container aan de weg zetten? Dan maak je gemakkelijk gebruik van de afsluitbare, brede achterom!
Bijzonderheden:
* Deze woning heeft energielabel A+
* Woning met bad- en slaapkamer op de begane grond
* Gelegen in een geliefd stukje van ‘’De Gilden’’
* Voldoende openbare parkeergelegenheid aanwezig
* Nabij praktische voorzieningen zoals supermarkten en een gezondheidscentrum
* Aanvaarding in overleg