Let op: genoemde prijs betreft een “bieden vanaf prijs”.
Op zoek naar veel ruimte op korte afstand van het centrum? Bekijk dan deze royale hoekwoning. De woning beschikt over een ruime begane grond met bijkeuken, maar liefst 5 slaapkamers en een grote badkamer. Dit alles is gelegen op een ruim perceel met een grote overkapping met berging, een garage, een oprit geschikt voor meerdere auto’s en geniet je van een vrij uitzicht op openbaar groen, terwijl het winkelcentrum zich op korte afstand bevindt.
Indeling
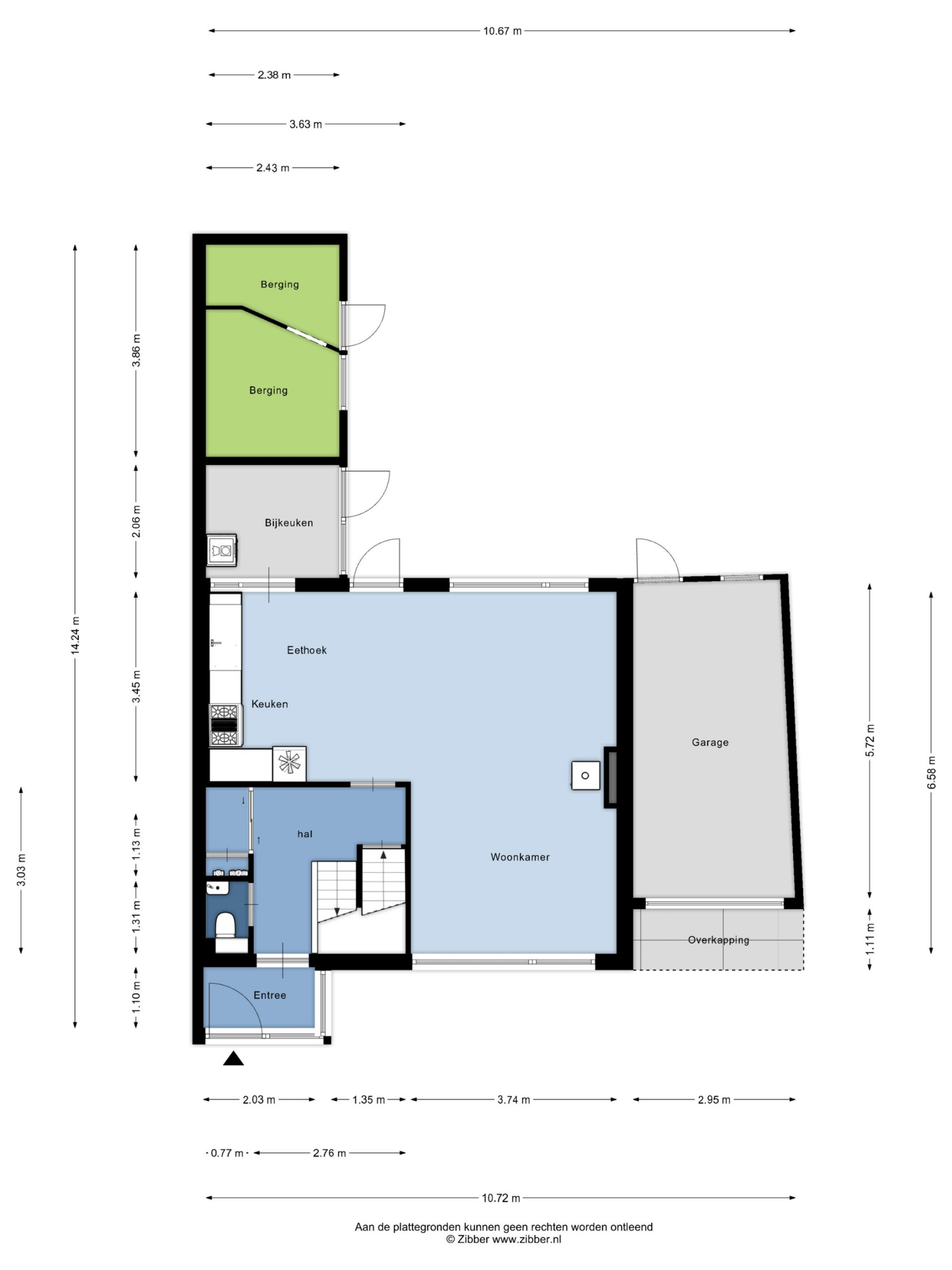
Begane grond
Via het voorportaal betreed je deze ruime woning. In de hal is dankzij de nis volop ruimte voor de garderobe, netjes afgewerkt achter een loftdeur. Hier...
Let op: genoemde prijs betreft een “bieden vanaf prijs”.
Op zoek naar veel ruimte op korte afstand van het centrum? Bekijk dan deze royale hoekwoning. De woning beschikt over een ruime begane grond met bijkeuken, maar liefst 5 slaapkamers en een grote badkamer. Dit alles is gelegen op een ruim perceel met een grote overkapping met berging, een garage, een oprit geschikt voor meerdere auto’s en geniet je van een vrij uitzicht op openbaar groen, terwijl het winkelcentrum zich op korte afstand bevindt.
Indeling
Begane grond
Via het voorportaal betreed je deze ruime woning. In de hal is dankzij de nis volop ruimte voor de garderobe, netjes afgewerkt achter een loftdeur. Hier bevindt zich tevens de meterkast. Verder tref je in de hal de trapopgang, een grote trapkast en de toiletruimte. De toiletruimte is uitgevoerd met grote antracietkleurige tegels in lichte en donkere tinten en voorzien van een zwevend toilet en fonteintje in zwart, wat zorgt voor een strak en modern geheel.
Bij binnenkomst in de woonkamer tref je de ruime zithoek aan de straatzijde en biedt volop mogelijkheden voor jouw perfecte indeling. Dankzij ramen aan zowel de voor- als achterzijde is er veel natuurlijke lichtinval. In de wintermaanden zorgt de houtkachel voor extra sfeer en warmte. De doorgelegde laminaatvloer over de gehele begane grond maakt het geheel compleet. Aan de tuinzijde tref je de eethoek waar voldoende ruimte is voor een zespersoons eettafel. Dit vormt een gezellige verbinding met de open keuken. De keuken is uitgerust met een vaatwasser, een koelkast, een oven, een gasfornuis en een afzuigschouw. Aangrenzend bevindt zich de praktische bijkeuken, ideaal voor extra voorraad of een koel-/vriescombinatie. Vanuit hier heb je via de loopdeur toegang tot de tuin.
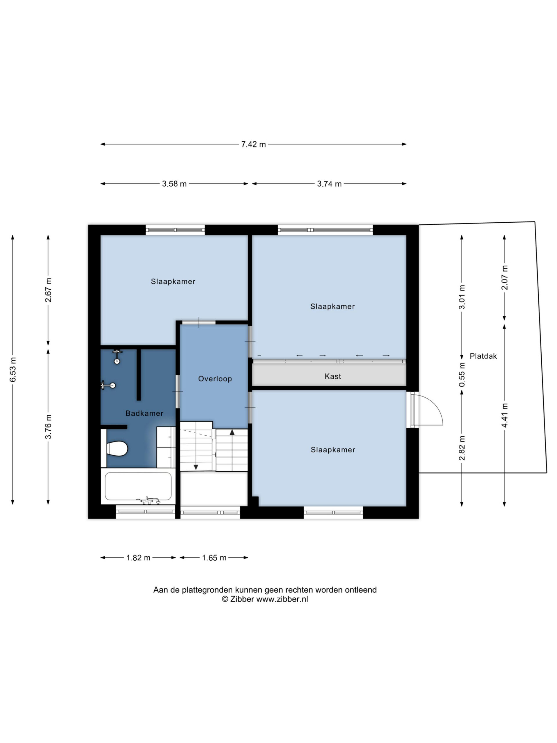
1e Verdieping
Via de bordestrap, afgewerkt met pvc, bereik je de overloop met toegang tot 3 slaapkamers en de royale badkamer. De grootste slaapkamer beschikt over een inbouwkast en heeft uitzicht op de tuin. De overige 2 slaapkamers zijn eveneens ruim van formaat en bieden plaats aan een tweepersoonsbed. 1 van deze slaapkamers, eveneens met uitzicht op de tuin, is voorzien van elektrische vloerverwarming.
De badkamer is stijlvol ingericht met lichte en donkere antracietkleurige tegels in combinatie met houttinten in het meubilair. Je vindt hier een ligbad, een zwevend toilet, een zwevend wastafelmeubel met dubbele kraan en een grote inloopdouche met maar liefst twee douchekoppen en elektrische vloerverwarming.
2e Verdieping
Via de vaste trap, geplaatst in 2025 gecombineerd met de dakkapel en verlegde nok is een volwaardige tweede verdieping gerealiseerd met maar liefst 2 slaapkamers. Voor extra comfort is de verdieping voorzien van airconditioning, zodat het ook in de zomer aangenaam blijft. De verdieping is afgewerkt met een nette laminaatvloer en strak afgewerkte wanden. Op de overloop bevindt zich een grote opbergkast met schuifdeuren, waar tevens de cv-ketel is opgesteld
Tuin
Met een perceel van maar liefst 353 m² biedt deze woning niet alleen veel ruimte binnen, maar ook buiten. De tuin is aangelegd met bestrating, gras en vaste beplanting. Aangrenzend aan de bijkeuken bevindt zich een berging die bereikbaar is via de tuin. Achter in de tuin staat een royale overkapping met glazen wanden en een geïsoleerd dak, waardoor je hier ook in de winter comfortabel kunt vertoeven. In de zomer zet je alles eenvoudig open. Aansluitend is nog een extra berging aanwezig. Tot slot beschikt de woning over een aangebouwde garage aan de zijkant, bereikbaar via de tuin en voorzien van elektra en een kanteldeur.
Bijzonderheden:
* Deze woning heeft energielabel A
* Riant perceel van 353m² vlakbij het centrum van Dronten
* Royale oprit voor meerdere auto’s.
* Deze woning heeft maar liefst 5 slaapkamers
* Uitzicht op openbaar groen
* Aanvaarding in overleg