Let op: genoemde prijs betreft een “bieden vanaf prijs”.
Wonen aan het water, op loopafstand van het centrum van Dronten in een royale gezinswoning met maar liefst 5 slaapkamers en 2 badkamers? Het kan aan dit adres! Deze woning biedt niet alleen volop ruimte, maar ook een zonnige tuin op het zuiden, een moderne keuken, airconditioning én een prachtig uitzicht over de haven van Dronten.
Indeling:
Begane grond:
Lopend langs het water stap je de voortuin in, waar het direct genieten is. Neem plaats, ontspan en kijk uit over de voorbijvarende boten. Je komt binnen in de hal met de meterkast, de trapopgang naar de 1e verdieping, de toegang tot de woonkamer en de toiletruimte, die is betegeld in een...
Let op: genoemde prijs betreft een “bieden vanaf prijs”.
Wonen aan het water, op loopafstand van het centrum van Dronten in een royale gezinswoning met maar liefst 5 slaapkamers en 2 badkamers? Het kan aan dit adres! Deze woning biedt niet alleen volop ruimte, maar ook een zonnige tuin op het zuiden, een moderne keuken, airconditioning én een prachtig uitzicht over de haven van Dronten.
Indeling:
Begane grond:
Lopend langs het water stap je de voortuin in, waar het direct genieten is. Neem plaats, ontspan en kijk uit over de voorbijvarende boten. Je komt binnen in de hal met de meterkast, de trapopgang naar de 1e verdieping, de toegang tot de woonkamer en de toiletruimte, die is betegeld in een rustige kleurstelling en is voorzien van een zwevend toilet en een fonteintje. Bij binnenkomst in de woonkamer is de zonnige ligging aan de achterzijde hetgeen wat meteen opvalt. Wat een daglicht! Dankzij de grote raampartijen voelt de ruimte heerlijk open aan en sta je direct in verbinding met de tuin. Hier heb je voldoende ruimte voor het plaatsen van een comfortabele zithoek en verder tref je hier een airconditioning (2025, kan tevens verwarmen), een praktische trapkast, een deur naar de tuin en een nette laminaatvloer. De eethoek staat in open verbinding met de hoekkeuken, die aan de voorzijde van de woning is gesitueerd. De kleuren van de keuken zijn modern en rustig en de aanwezige inbouwapparatuur betreft een koel-/vriescombinatie, een vaatwasser, een combimagnetron, een 4-pits inductiekookplaat en een RVS afzuigschouw. Wat het geheel écht bijzonder maakt, is het prachtige uitzicht op het water vanuit de keuken.
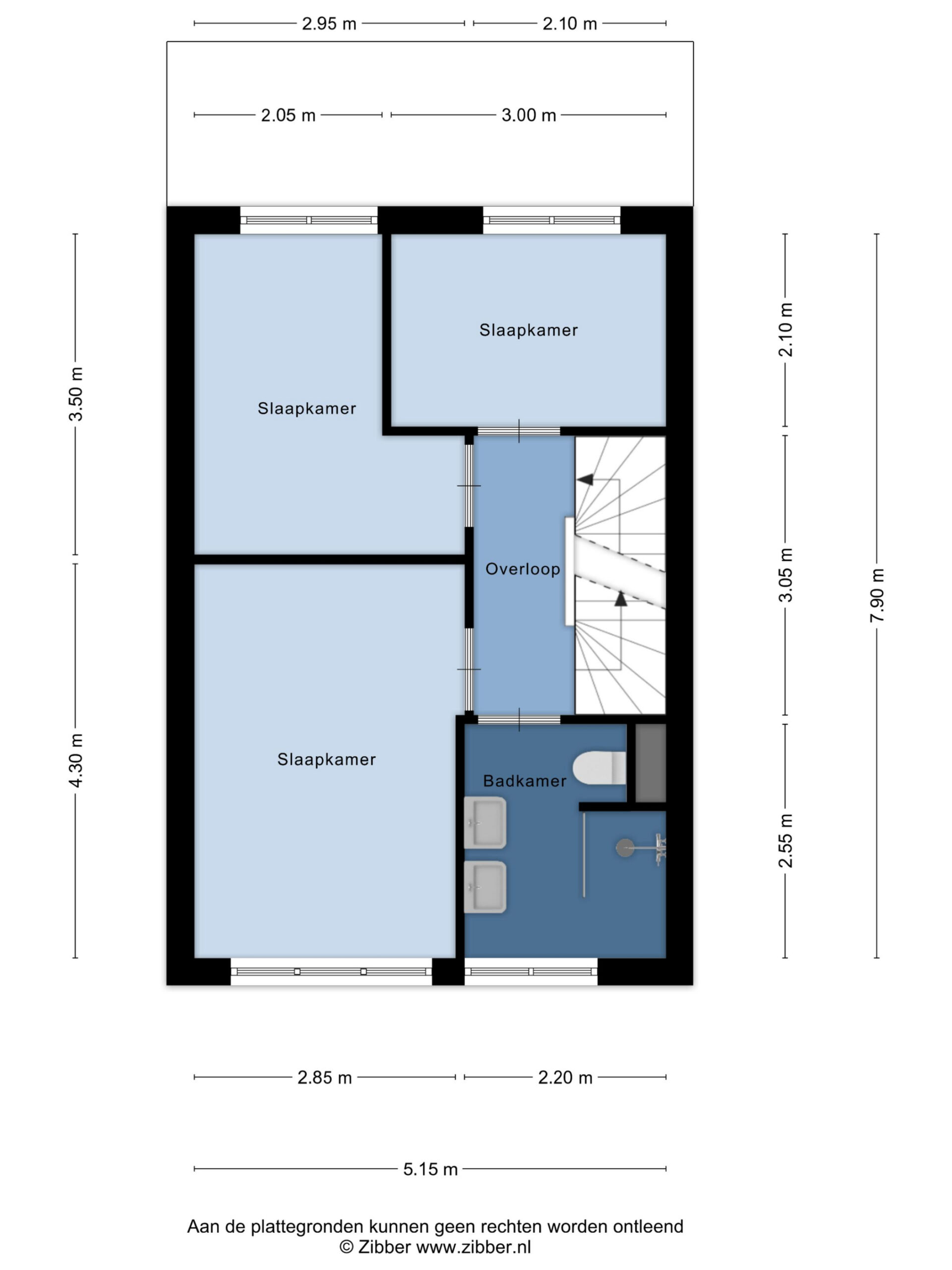
1e Verdieping:
Vanaf de overloop zijn de 3 slaapkamers, de badkamer en de vaste trap naar de 2e verdieping bereikbaar. De slaapkamers kennen allemaal een praktische indeling en beschikken over grote raampartijen. De grootste slaapkamer is aan de voorzijde gelegen. De ramen in deze kamer lopen nagenoeg door tot de grond, waardoor je ook vanuit hier van een prachtig uitzicht geniet. De gehele verdieping is afgewerkt met eenzelfde laminaatvloer, wat het geheel een rustige uitstraling geeft. De badkamer is van vloer tot plafond betegeld in een nette kleurstelling en is ingericht met een inloopdouche met glaswanden, een tweede zwevend toilet, een designradiator, 2 wastafels en planchetten.
2e Verdieping:
Vanaf de overloop op de 2e verdieping heb je toegang tot nog eens 2 slaapkamers en de kast met daarin de opstelling voor de cv-installatie, de aansluitingen voor de was- en droogapparatuur en de mv-unit. Allebei de slaapkamers op deze verdieping zijn, inclusief de overloop, voorzien van vloerbedekking. De slaapkamer die zich aan de voorzijde van de woning bevindt beschikt over een en-suite badkamer, die is ingericht met een inloopdouche, een zwevend toilet en een wastafel. De badkamer is middels melkglaswanden afgeschermd van de kamer. Licht én toch privacy, ideaal!
Tuin:
Vanuit de woonkamer stap je hier zo de zonnige tuin in! Met de ligging op het zuiden kun je al vroeg in het jaar genieten van de lente. Wordt het toch wat te warm? Dan maak je met een druk op de knop gebruik van het elektrische zonnescherm. De tuin is aangelegd met een stukje gras, beplanting en bestrating. De berging (voorzien van elektra) leent zich perfect voor het stallen van de fiets en tuingereedschap. Fijne extra: deze woning beschikt over een afsluitbare achterom. Dankzij de lage, dubbele deuren kan je er hier ook voor kiezen de auto op eigen terrein te parkeren.
Bijzonderheden:
* Deze woning heeft energielabel A
* Keurige, instapklare woning
* Zeer ruim: 5 slaapkamers en 2 badkamers
* Gelegen op een centrale en toch rustige locatie
* Mooi uitzicht over de haven
* Op loopafstand van het centrum van Dronten
* Aanvaarding in overleg