Wijngaard 67

8253 LK Dronten

Omschrijving

Let op: genoemde prijs betreft een “bieden vanaf prijs”.

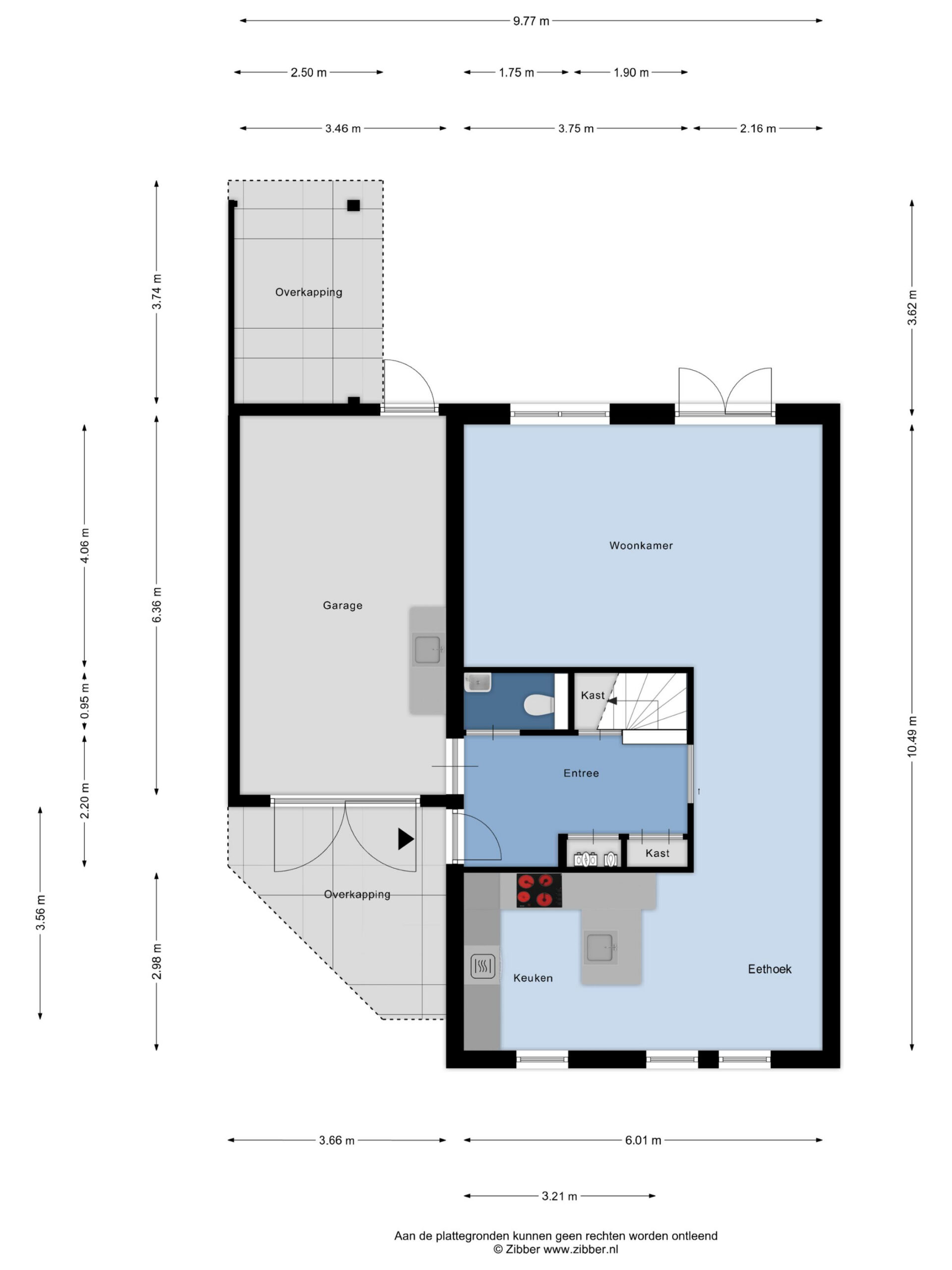
Ben jij op zoek naar een royale gezinswoning? Dan is deze woning echt iets voor jou! Met een woonoppervlak van maar liefst 177 m² kom je hier absoluut geen ruimte tekort. De woning beschikt over een ruime woonkamer, vier slaapkamers, maar liefst twee badkamers en volop opbergruimte. En dat is nog niet alles met energielabel A+, 16 zonnepanelen, vloerverwarming op de begane grond én de eerste verdieping, twee comfortabele airco’s en een vrij uitzicht aan de voorzijde woon je hier heerlijk comfortabel en energiezuinig. Op loopafstand tref je alles wat je nodig hebt: scholen, winkelcentrum West, een gezondheidscentrum en het speeleiland. Plaatje...


Kenmerken

Aanvaarding

Prijs
€589.000 k.k.
Aanvaarding
In overleg
Postcode
8253 LK
Plaats
Dronten
Adres
Wijngaard 67

Bouw

Bouwvorm
Bestaande bouw
Woonhuissoort
Eengezinswoning
Woonhuissoort
Twee-onder-een-kapwoning
Bouwjaar
2012

Oppervlakten en inhoud

Woonoppervlakte
177 m²
Perceeloppervlakte
295 m²

Indeling

Aantal kamers
5
Aantal slaapkamers
4

Energie

Energielabel
A+
Energiedatum
10/10/2035
Verwarming
Cv ketel, Vloerverwarming gedeeltelijk, Warmte terugwininstallatie
Warm water
Cv ketel
CV Brandstof
GAS
CV Bouwjaar
2011
CV Type
Intergas
Isolatie
Dakisolatie, Muurisolatie, Vloerisolatie, Dubbel glas, Volledig geisoleerd, Hr glas

Voorzieningen

Voorzieningen
Airconditioning, Glasvezel kabel, Zonnepanelen
Bijzonderheden
Gedeeltelijk gestoffeerd
Ligging
Aan rustige weg, In woonwijk, Vrij uitzicht

Buitenruimte

Tuin types
Achtertuin, Voortuin, Zonneterras
Hoofdtuin type
Achtertuin
Hoofdtuin oppervlakte
130 m²
Totale tuin oppervlakte
195 m²

Parkeren

Parkeerfaciliteiten
Openbaar parkeren, Op eigen terrein
Garage types
Aangebouwd steen

Plattegronden

Locatie

Wil je meer informatie of een afspraak maken?

Waar woon jij Over 5 jaar?

De Helling 228 - 8251 GH Dronten

KVK-nummer: 84975466