Let op: genoemde prijs betreft een “bieden vanaf prijs”.
Deze nette tussenwoning is in 2014 opgeleverd en is gelegen in de geliefde wijk ‘’De Gilden’’ in Dronten-West. De woning is energiezuinig, beschikt over 4 (slaap)kamers en heeft je een ruim woonoppervlak en een fijne tuin op het zuidoosten te bieden. Parkeren doe je gemakkelijk voor de deur en voorzieningen als supermarkten, scholen en een gezondheidscentrum zijn bereikbaar op korte afstand. Ben jij klaar voor een instapklare woning? Pak dan je kans!
Indeling:
Begane grond:
Binnenkomst in de hal met de meterkast, de garderobe...
Let op: genoemde prijs betreft een “bieden vanaf prijs”.
Deze nette tussenwoning is in 2014 opgeleverd en is gelegen in de geliefde wijk ‘’De Gilden’’ in Dronten-West. De woning is energiezuinig, beschikt over 4 (slaap)kamers en heeft je een ruim woonoppervlak en een fijne tuin op het zuidoosten te bieden. Parkeren doe je gemakkelijk voor de deur en voorzieningen als supermarkten, scholen en een gezondheidscentrum zijn bereikbaar op korte afstand. Ben jij klaar voor een instapklare woning? Pak dan je kans!
Indeling:
Begane grond:
Binnenkomst in de hal met de meterkast, de garderobe en de toegang tot de woonkamer. De woonkamer is aan de voorzijde van de woning gesitueerd en beschikt over veel daglichttoetreding. Verder tref je hier een praktische trapkast en een PVC vloer, die tot in de eethoek en de keuken is doorgelegd. Ter plaatse van de eethoek heb je voldoende ruimte voor het plaatsen van een eettafel, of je nu voor rond, rechthoekig of ovaal kiest. De keuken bevindt zich in een rechte opstelling en is uitgevoerd in een tijdloze kleurstelling. De aanwezige inbouwapparatuur betreft een 4-pits inductiekookplaat, een afzuigschouw, een vaatwasser, een combimagnetron en een koelkast. Aansluitend aan de keuken is de 2e hal bereikbaar, van waaruit de trapopgang naar de 1e verdieping, het toilet en de tuin middels een deur bereikbaar zijn. Het toilet is betegeld in een moderne kleurstelling en is voorzien van een zwevend toilet en een fonteintje.
1e Verdieping:
Vanaf de overloop zijn de 2 slaapkamers, de 2e verdieping middels een vaste trap en de badkamer bereikbaar. Beide slaapkamers zijn zeer ruim te noemen en de slaapkamer die zich aan de voorzijde van de woning bevindt beschikt over een royale trapkast. De badkamer is in dezelfde moderne kleurstelling uitgevoerd als het toilet op de begane grond en is ingericht met een inloopdouche, een tweede zwevend toilet, een breed wastafelmeubel met 2 kranen en een spiegelkast met verlichting. De overloop en de slaapkamers zijn voorzien van een laminaatvloer.
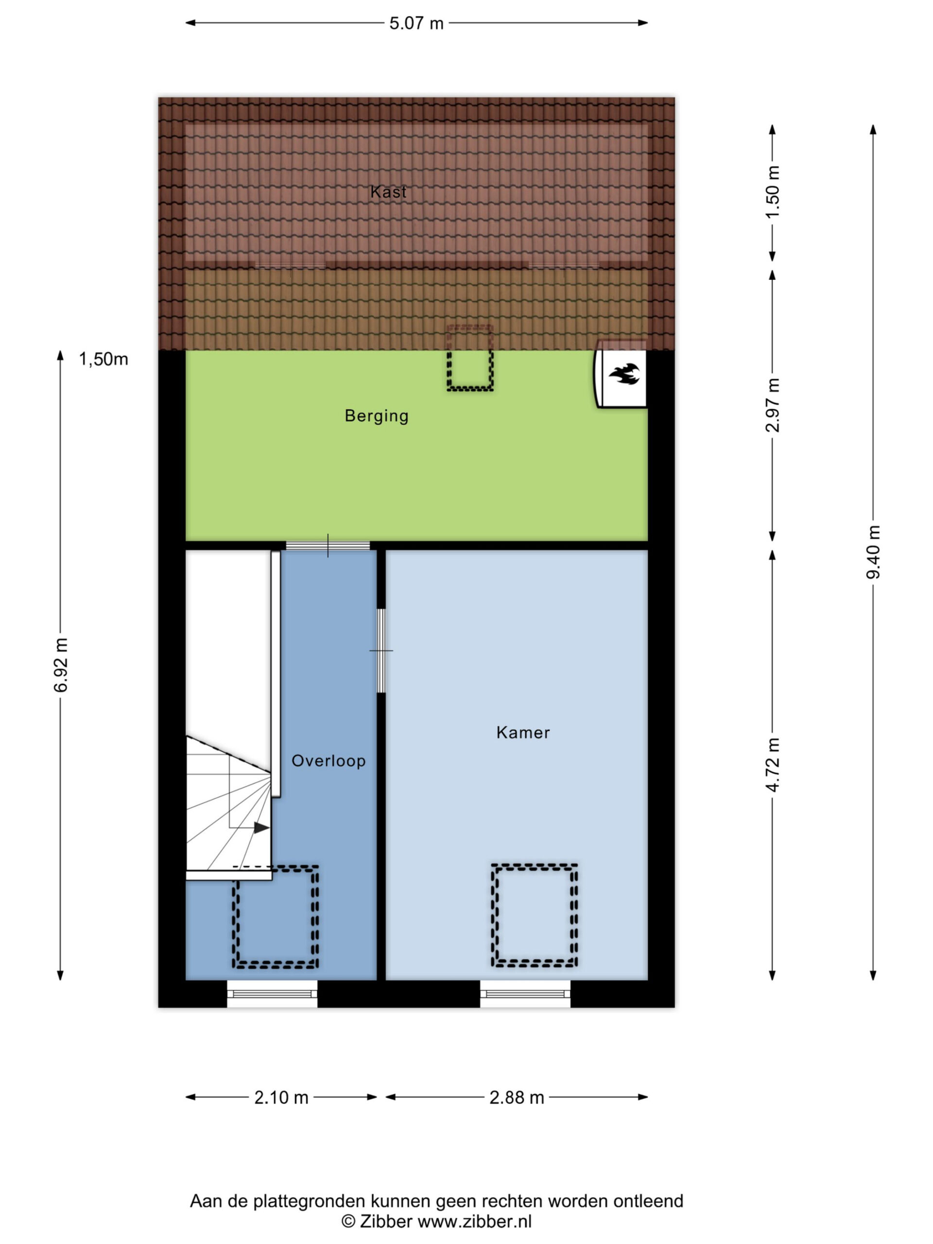
2e Verdieping:
Neem de vaste trap en je bereikt de voorzolder, die meteen speels aanvoelt met het hoge plafond en het vele daglicht. Vanaf deze voorzolder zijn nog eens 2 (slaap)kamers bereikbaar, die zeer ruim van formaat zijn. In 1 van deze kamers tref je het passiefhuistoestel, de WTW-unit en de aansluitingen voor de was- en droogapparatuur. Ook deze ruimte beschikt over een raam, waardoor je hier gemakkelijk nog een werkplek kan realiseren. De andere slaapkamer bevindt zich aan de voorzijde van de woning. Ruimte en licht zijn ook hier weer kenmerken die je direct terug ziet. De gehele verdieping is voorzien van een laminaatvloer.
Tuin:
Met deze tuin kun je alle kanten nog op! Heb je groene vingers? Dan haal je er gemakkelijk een aantal tegels uit en voeg je een portie groen toe. Toch liever wat planten in potten? Ook dat kan gemakkelijk gerealiseerd worden! Qua zonligging zit je hier in ieder geval wel goed, de tuin is namelijk gesitueerd op het zuidoosten. Verder tref je een berging die beschikt over elektra en een afsluitbare achterom.
Bijzonderheden:
* Deze woning heeft energielabel A+
* Voordeel overdrachtsbelasting komt toe aan verkoper
* Nette, instapklare tussenwoning
* Veel ruimte op de verdiepingen
* Nabij het speeleiland gelegen
* Aanvaarding op korte termijn mogelijk