Let op: genoemde prijs betreft een “bieden vanaf prijs”.
Deze gasloze hoekwoning vinkt alle boxen af! Opgeleverd in 2018, voorzien van kunststof kozijnen, een strakke keuken en badkamer, een tuin op het zuiden en voldoende openbare parkeergelegenheid in de straat. Daarnaast is de woning ook nog eens bijzonder energiezuinig: dankzij de 23 zonnepanelen, triple glas en de warmtepompboiler heb je hier nagenoeg geen energiekosten. En de locatie? Ook die is ideaal met het winkelcentrum van Dronten-West op steenworpafstand. Zie jij jezelf hier al helemaal wonen? Dan zien we je graag binnenkort voor een bezichtiging!
Indeling:
Begane grond:
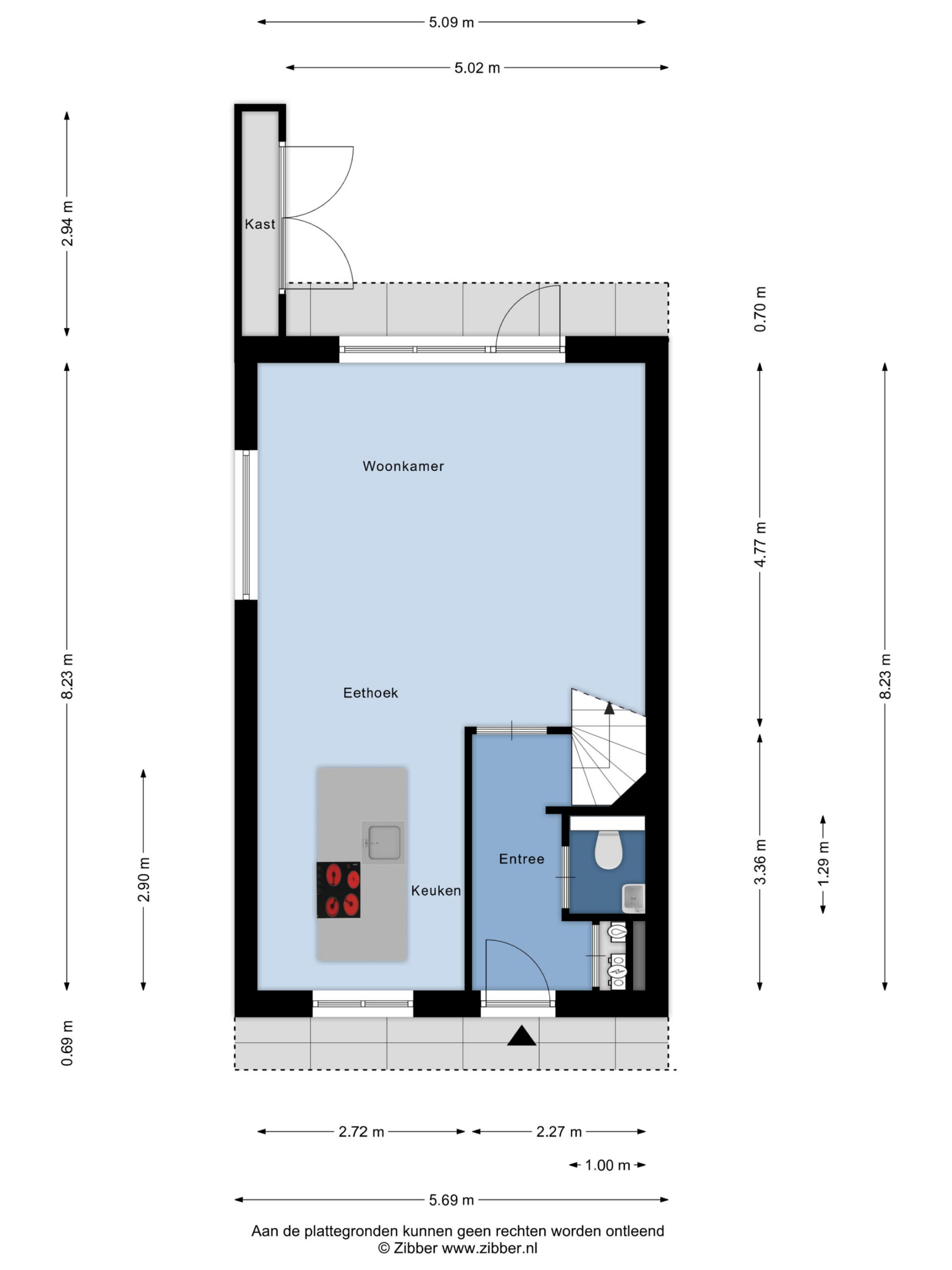
Binnenkomst in de hal met de meterkast,...
Let op: genoemde prijs betreft een “bieden vanaf prijs”.
Deze gasloze hoekwoning vinkt alle boxen af! Opgeleverd in 2018, voorzien van kunststof kozijnen, een strakke keuken en badkamer, een tuin op het zuiden en voldoende openbare parkeergelegenheid in de straat. Daarnaast is de woning ook nog eens bijzonder energiezuinig: dankzij de 23 zonnepanelen, triple glas en de warmtepompboiler heb je hier nagenoeg geen energiekosten. En de locatie? Ook die is ideaal met het winkelcentrum van Dronten-West op steenworpafstand. Zie jij jezelf hier al helemaal wonen? Dan zien we je graag binnenkort voor een bezichtiging!
Indeling:
Begane grond:
Binnenkomst in de hal met de meterkast, de trapopgang naar de 1e verdieping, toegang tot de woonkamer en de toiletruimte, die is betegeld in een moderne kleurstelling en is voorzien van een zwevend toilet en een fonteintje. Bij binnenkomst in de woonkamer vallen de vrije ligging en de sfeervolle open indeling direct op. Dankzij de hoekligging beschik je over een groot raam in de zijgevel. In combinatie met de kamerhoge ramen in de voor- en achtergevel zorgt dit voor een heerlijk lichte ruimte en kijk je vrijuit over de omgeving. Hier voel je je toch meteen thuis? De marmerlookvloer is uitgevoerd in een grote 80x80 tegel en is op de gehele begane grond doorgelegd, wat het geheel een luxe uitstraling geeft. De zithoek is tuingericht en staat in open verbinding met de eethoek en de keuken, die in een stijlvol kookeiland is uitgevoerd. Zo blijf je tijdens het koken altijd gezellig in verbinding met familie en vrienden aan de eettafel! De aanwezige inbouwapparatuur betreft een 4-pits inductiekookplaat, een RVS-afzuigschouw, een koelkast, een vriezer, een combimagnetron en een vaatwasser.
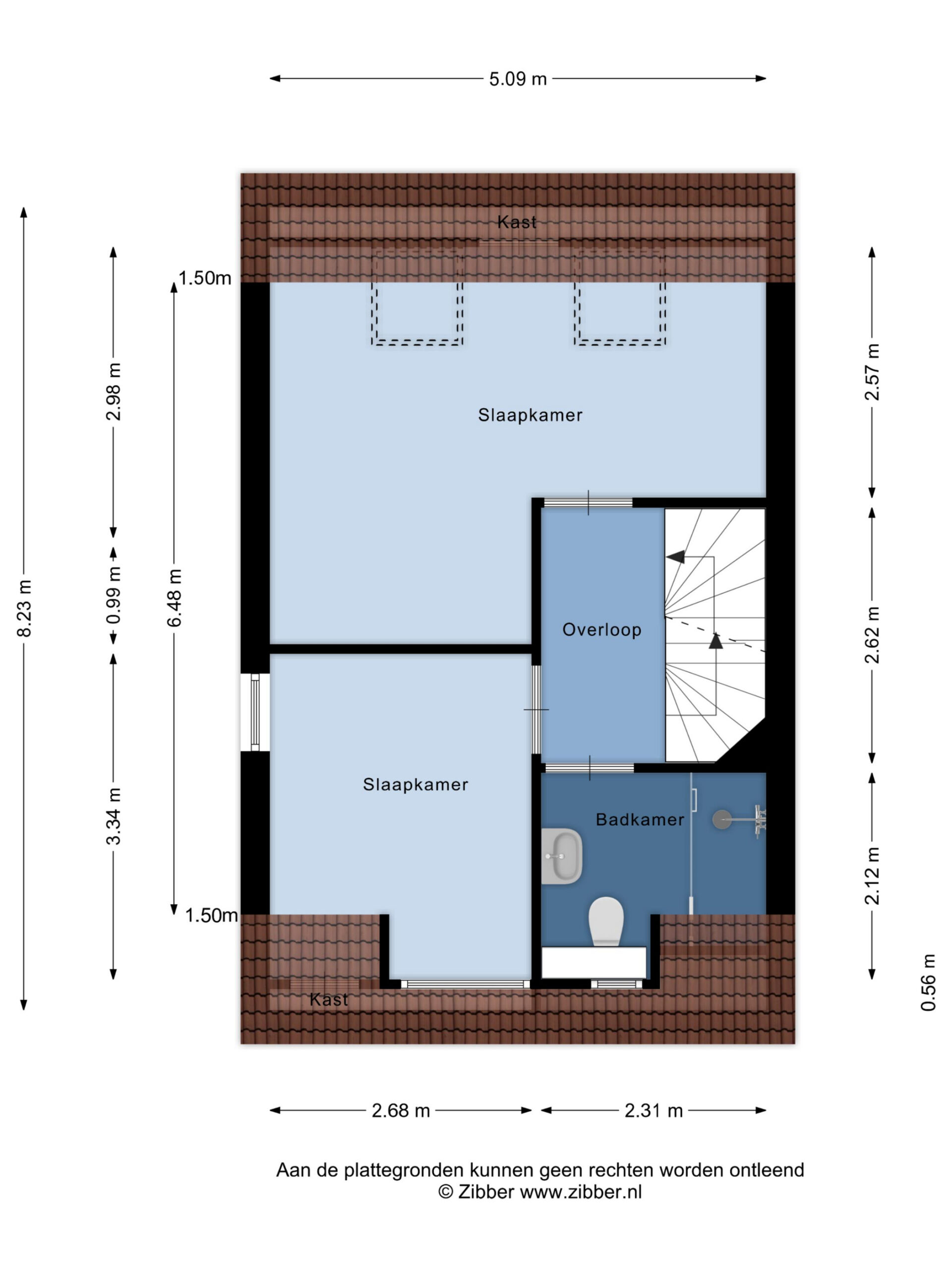
1e Verdieping:
Vanaf de overloop zijn de 2 slaapkamers, de badkamer en de vaste trap naar de zolderverdieping bereikbaar. De slaapkamer aan de voorzijde beschikt over een dakkapel en een zijgevelraam. De slaapkamer aan de achterzijde is over de volle breedte van de woning gelegen (hier zijn eenvoudig 2 kamers te realiseren). De grote dakramen zijn voorzien van zonnescreens en zorgen voor veel daglicht. De kamer biedt alle ruimte voor het plaatsen van een tweepersoonsbed en een kledingkast. De overloop en de slaapkamers zijn voorzien van vloerbedekking.
De badkamer is van vloer tot plafond betegeld in een moderne kleurstelling en is ingericht met een wastafel en spiegel, een elektrische designradiator, een inloopdouche met hand- en regendouche en een tweede zwevend toilet. Ook hier zorgt de dakkapel voor extra licht en ruimte.
2e Verdieping:
Via de vaste trap bereik je de zolderverdieping, die op dit moment is ingericht als één open ruimte. Deze ruimte is, mede dankzij de hoge nok, verrassend groot! Je hebt hier de mogelijkheid om een derde of zelfs vierde slaapkamer te realiseren. Je treft hier de warmtepompboiler, de WTW-unit, de omvormer voor de zonnepanelen en de aansluitingen voor de was- en droogapparatuur. Verder tref je hier nog een extra dakraam. Gebruik je deze ruimte als opslag of als extra werk-/slaapkamer? De keuze is aan jou!
Tuin:
Sla de deur open en het is direct genieten! Dankzij de ligging op het zuiden heb je vrijwel de gehele dag de zon in de tuin. Ook hier biedt de hoekligging je weer een fijne plus: weids zicht én gelegen aan openbaar groen! De tuin is voorzien van bestrating en een praktische tuinkast, die nog verrassend veel bergruimte biedt. In de voortuin tref je een tweede berging, voorzien van elektra, ideaal voor het stallen van de fietsen.
Bijzonderheden:
* Deze woning heeft energielabel A+++
* Zeer lage energielasten
* Gelegen op een mooi hoekperceel met vrij uitzicht
* Aanvaarding in overleg